Haughton Road, Darlington
By Venture Properties
£ 225,000
Reviews
3 out of 5 stars
Venture Properties says ..
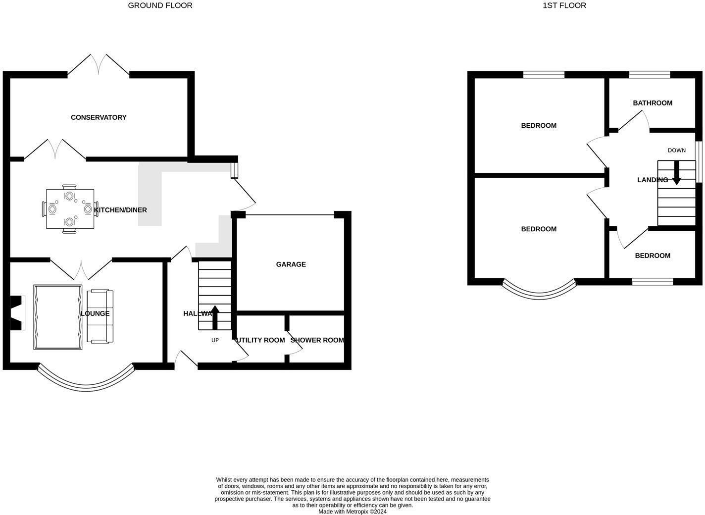
Nestled on Haughton Road in the charming town of Darlington, this beautifully extended and upgraded three-bedroom semi-detached house offers a perfect blend of modern living and comfort. The property has been thoughtfully refurbished, showcasing solid oak internal doors and stylish decor that enh...
Property Oracle says ..
This property is a 3-bedroom semi-detached house located on Haughton Road in Darlington, County Durham. The house benefits from a modern extension to the rear, creating a large kitchen/diner and conservatory area. The interior is presented to a high standard with modern fixtures and fittings. There is also a garage and a well-maintained front garden.
The property is situated in a residential area with good access to local amenities, schools and transport links. Gurney Pease Academy, Beaumont Hill Academy, and Haughton Academy are all within a reasonable distance, offering a range of schooling options. Darlington train station provides convenient access to other parts of the UK.
Based on the images provided, the property appears to be in excellent condition. It has recently been updated and modernised, and is well maintained. The property also benefits from a good sized plot.
Considering the average house price in the area is £132,136 and the average price per square foot is £158, the asking price of £225,000 for this 1,130 sq ft property seems slightly higher than average. However, the modern extension, high-quality finish, and inclusion of a garage justify a premium. The relatively small plot size is a factor to consider.
Therefore, we give this property 7 / 10. *Disclaimer: This is our option and does constitute a recommendation or financial advice. Do your own research. *
- Price
- 7
- Condition
- 9
- Location
- 7
- Land
- 6
- Bedrooms
- 3
- Bathrooms
- 2
- Sqft (est)
- 1,130.00
The heatmap indicates the level of crime in the area. The color of the heatmap indicates the crime severity and recency.
Metrics Year-on-Year
- Average area value
- 113,417.00 £Increased by 1.52 %
- Est sale value
- 226,000.00 £Increased by 15.61 %
- Average area rental value
- 725.00 £/moDecreased by 6.45 %
- Est letting value
- 1,130.00 £/moUnchanged by 0.00 %
- Est rental Yield
- 7.67 %Decreased by 7.81 %
- Crime Rate
- 13.00 %Unchanged by 0.00 %
Agent Activity
Venture Properties created the listing.
Nearby Schools
| Name | Type | Ofsted | Distance |
|---|---|---|---|
| Gurney Pease Academy | Academy Converter | Good | 0.76 KM |
| Haughton Academy | Academy Converter | Requires improvement | 0.90 KM |
| Springfield Academy | Academy Converter | Requires improvement | 0.90 KM |
| Beaumont Hill Academy | Academy Special Converter | Good | 0.90 KM |
| Haughton Children'S Centre | Children's Centre | 0.90 KM |
Images
Nearby Streets
| Name | Average Price | Average Sqft | Distance |
|---|---|---|---|
| Avery Gardens | £ 0 | 0 | 0.00 KM |
| Dunstan Grove | £ 0 | 0 | 0.00 KM |
| Kingfisher Way | £ 220,000 | 0 | 0.00 KM |
| Burnet Drive | £ 240,000 | 0 | 0.00 KM |
| Huntingdon Close | £ 0 | 0 | 0.00 KM |
Nearby Transport
| Name | NLC | TLC | Distance |
|---|---|---|---|
| Darlington | 7877 | DAR | 2.22 KM |
| North Road (Darlington) | 7895 | NRD | 2.32 KM |
| Dinsdale | 7897 | DND | 7.62 KM |
| Heighington | 7887 | HEI | 8.79 KM |
Nearby Listings
| Address | Price | Type | Score | Distance |
|---|---|---|---|---|
| Haughton Road, Darlington | £ 225,000 | BUY | 7 / 10 | 0.00 KM |
| Haughton Road, Darlington | £ 225,000 | BUY | 6 / 10 | 0.00 KM |
| Cornwall Avenue, Darlington | £ 175,000 | BUY | 6 / 10 | 0.10 KM |
| Essex Way, Darlington | £ 180,000 | BUY | 7 / 10 | 0.12 KM |
| Throstlenest Avenue, Darlington, Durham, DL1 | £ 50,000 | BUY | 6 / 10 | 0.13 KM |
Nearby Properties
| Address | Price | Distance |
|---|---|---|
| 20 Throstlenest Avenue | £ 50,000 | 0.12 KM |
| 44 Throstlenest Avenue | £ 75,998 | 0.12 KM |
| 28 Throstlenest Avenue | £ 67,336 | 0.12 KM |
| 19 Throstlenest Avenue | £ 97,255 | 0.12 KM |
| 34 Throstlenest Avenue | £ 50,000 | 0.12 KM |