Canterbury Close, Lawn, Swindon, SN1
EW

Canterbury Close, Lawn, Swindon, SN1

By EweMove

£ 725,000

Reviews

4 out of 5 stars

EweMove says ..

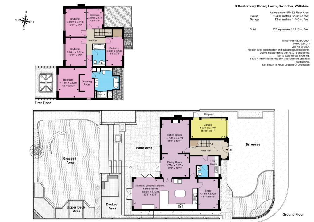
Set within the prestigious and sought-after Lawns area of Swindon, this stunning five-bedroom detached home has been thoughtfully redesigned and modernised to create an exquisite blend of contemporary elegance and family-friendly living. Boasting over 2,200 sq. ft. of beautifully appoint...

Property Oracle says ..

This property is a 5 bedroom detached house located in Swindon, Wiltshire. The property benefits from a large garden, a modern kitchen and bathrooms. There is also a hot tub in the garden. The property is located close to several schools and a train station. The average house price in the area is £452,128 and the average price per sqft is £397. This property is listed at £725,000. Given the size and condition of the property, and the location, this price seems reasonable.

Therefore, we give this property 8 / 10. *Disclaimer: This is our option and does constitute a recommendation or financial advice. Do your own research. *

Price
7
Condition
9
Location
8
Land
9
Bedrooms
5
Bathrooms
2

The heatmap indicates the level of crime in the area. The color of the heatmap indicates the crime severity and recency.

Metrics Year-on-Year

Average area value
481,967.00 £
Increased by 28.07 %
from 376,332.00 £
Average area rental value
1,254.00 £/mo
Increased by 10.97 %
from 1,130.00 £/mo
Est rental Yield
3.12 %
Decreased by 13.33 %
from 3.60 %
Crime Rate
0.00 %
from 0.00 %

Agent Activity

  • EweMove created the listing.

Nearby Schools

NameTypeOfstedDistance
Lawn PrimaryCommunity SchoolGood0.27 KM
Lawn Manor AcademyAcademy ConverterRequires improvement1.12 KM
New College SwindonFurther Education1.36 KM
Oaktree Nursery And Primary SchoolCommunity SchoolGood1.42 KM
Lainesmead Primary School And NurseryCommunity SchoolRequires improvement1.61 KM

Images

Garden1_8 Front1_1 Kitchen1_3 1258425 (4) Kitchen1_1 Kitchen1_2 1258425 (23) 1258425 (21) 1258425 (24) Lrg_1258425 (3) v2.0 1258425 (14) 1258425 (6) Ensuite1_1 Ensuite1_2 Ensuite1_3 1258425 (15) Bedroom5_1 1258425 (8) Garden1_00010 Garden1_00013 Garden1_3 Garden1_7 SP3594 3 Canterbury Close, Lawn, Wiltshire, SN3 1H Bedroom4_1 Bathroom1_1 Garden1_1 Garden1_5 Garden1_9 Garden1_00012

Nearby Streets

NameAverage PriceAverage SqftDistance
Caernarvon Walk £ 520,00000.00 KM
Guildford Avenue £ 000.00 KM
Cambridge Close £ 000.00 KM
Balmoral Close £ 000.00 KM
Berrington Road £ 245,00000.00 KM

Nearby Transport

NameNLCTLCDistance
Swindon (Wilts)3333SWI3.63 KM

Nearby Listings

AddressPriceTypeScoreDistance
Canterbury Close, Lawn, Swindon, SN1 £ 725,000BUY8 / 100.00 KM
Caernarvon Walk, Swindon, Wiltshire, SN3 £ 520,000BUY6 / 100.07 KM
Caernarvon Walk, Lawn, Swindon, Wiltshire, SN3 £ 520,000BUY6 / 100.08 KM
Sandringham Road, Lawns, Swindon, Wiltshire, SN3 £ 490,000BUY7 / 100.17 KM
Cleeve Lawns, Lawn, Swindon, SN3 £ 550,000BUY7 / 100.20 KM

Nearby Properties

AddressPriceDistance
15 Canterbury Close £ 330,0000.04 KM
1 Canterbury Close £ 159,9500.04 KM
2 Canterbury Close £ 430,0000.06 KM
11 Canterbury Close £ 498,0000.06 KM
18 Canterbury Close £ 277,5000.06 KM