Lodge Lane, Nettleham, LN2
By Newton Fallowell
£ 600,000
Reviews
3 out of 5 stars
Newton Fallowell says ..
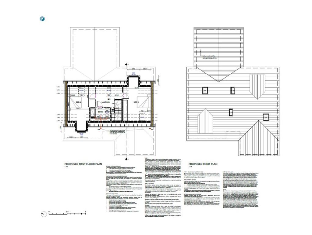
Stunning individual build with open views across countryside. Currently under construction and being finished to a very high specification this detached five bedroom property offers flexible living with a 35ft kitchen/living/diner with bi fold doors onto the garden, high quality Nolte with Sie...
Property Oracle says ..
This is a detached property located on Lodge Lane, Nettleham. It features 5 bedrooms and 3 bathrooms, with a square footage of 1,320.00 SQFT. The property is listed for £600,000. The house is in good condition and appears to be a modern build. There are several schools in the area. Lincoln train station is 8.13 KM away. The average price in the area is £453,313, making this property more expensive than average.
Therefore, we give this property 7 / 10. *Disclaimer: This is our option and does constitute a recommendation or financial advice. Do your own research. *
- Price
- 6
- Condition
- 9
- Location
- 7
- Land
- 7
- Bedrooms
- 5
- Bathrooms
- 3
- Sqft (est)
- 1,320.00
The heatmap indicates the level of crime in the area. The color of the heatmap indicates the crime severity and recency.
Metrics Year-on-Year
- Average area value
- 453,313.00 £Increased by 28.82 %
- Est sale value
- 475,200.00 £Increased by 23.29 %
- Average area rental value
- 1,400.00 £/moIncreased by 47.37 %
- Est letting value
- 1,320.00 £/mo
- Est rental Yield
- 3.71 %Increased by 14.51 %
- Crime Rate
- 20.00 %Unchanged by 0.00 %
Agent Activity
Newton Fallowell created the listing.
Nearby Schools
| Name | Type | Ofsted | Distance |
|---|---|---|---|
| The Nettleham Church Of England Voluntary Aided Junior School | Voluntary Aided School | Good | 1.36 KM |
| The Nettleham Infant And Nursery School | Academy Converter | 1.79 KM | |
| The Priory Pembroke Academy | Academy Sponsor Led | 2.67 KM | |
| Lincoln Carlton Academy | Academy Sponsor Led | Outstanding | 3.15 KM |
| Cherry Willingham | Children's Centre Linked Site | 3.38 KM |
Images
Nearby Streets
| Name | Average Price | Average Sqft | Distance |
|---|---|---|---|
| The Oaks | £ 0 | 0 | 0.00 KM |
| The Hawthorns | £ 0 | 0 | 0.00 KM |
| Daldery Drive | £ 524,980 | 0 | 0.00 KM |
| North Court | £ 350,000 | 0 | 0.00 KM |
| Watermill Lane | £ 380,000 | 0 | 0.00 KM |
Nearby Transport
| Name | NLC | TLC | Distance |
|---|---|---|---|
| Lincoln | 6340 | LCN | 8.13 KM |
Nearby Listings
| Address | Price | Type | Score | Distance |
|---|---|---|---|---|
| Lodge Lane, Nettleham, LN2 | £ 600,000 | BUY | 7 / 10 | 0.00 KM |
| Lodge Lane, Nettleham, Lincoln | £ 295,000 | BUY | Unknown | 0.00 KM |
| Lodge Lane, Nettleham | £ 449,950 | BUY | 7 / 10 | 0.00 KM |
| Weldon Drive, Nettleham, LN2 | £ 315,000 | BUY | 7 / 10 | 0.10 KM |
| Arnage Court, Nettleham, LN2 | £ 290,000 | BUY | 8 / 10 | 0.12 KM |
Nearby Properties
| Address | Price | Distance |
|---|---|---|
| 34 Lodge Lane | £ 270,000 | 0.00 KM |
| 36 Lodge Lane | £ 215,000 | 0.00 KM |
| 39 Lodge Lane | £ 460,000 | 0.00 KM |
| 17 Lodge Lane | £ 255,000 | 0.00 KM |
| 29 Lodge Lane | £ 192,000 | 0.00 KM |