Elliot Close, Kibworth, LE8
By Adore Fine Homes Limited
£ 285,000
Reviews
3 out of 5 stars
Adore Fine Homes Limited says ..
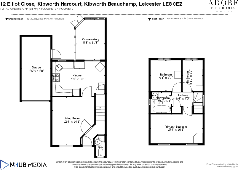
Nicely proportioned (870 sq ft) three bedroom semi detached family home in prime centre of village location tucked just of School Road benefitting from a spacious kitchen/diner, conservatory leading to a raised terrace, garage and super sized family gardens to rear. No forward chain.
Property Oracle says ..
The semi-detached property is located on Elliot Close in Kibworth, Harborough, Leicestershire. The house has three bedrooms and one bathroom, with a total square footage of 870. The average price per square foot in the area is £530. The property is listed at £285,000, which equates to approximately £328 per square foot. This is significantly lower than the area average. The property is located near Kibworth Church of England Primary School and Kibworth Mead Academy. From the images, the interior of the property appears dated and would benefit from modernisation. The walls are painted in bold colours, and the bathroom and kitchen appear original. The property has a garden.
Therefore, we give this property 6 / 10. *Disclaimer: This is our option and does constitute a recommendation or financial advice. Do your own research. *
- Price
- 8
- Condition
- 5
- Location
- 7
- Land
- 7
- Bedrooms
- 3
- Bathrooms
- 1
- Sqft (est)
- 870.00
The heatmap indicates the level of crime in the area. The color of the heatmap indicates the crime severity and recency.
Metrics Year-on-Year
- Average area value
- 933,929.00 £Increased by 71.28 %
- Est sale value
- 461,100.00 £Increased by 76.08 %
- Average area rental value
- 1,223.00 £/moIncreased by 13.24 %
- Est letting value
- 0.00 £/mo
- Est rental Yield
- 1.57 %Decreased by 34.03 %
- Crime Rate
- 29.00 %Unchanged by 0.00 %
Agent Activity
Adore Fine Homes Limited created the listing.
Nearby Schools
| Name | Type | Ofsted | Distance |
|---|---|---|---|
| Kibworth Church Of England Primary School | Academy Converter | 0.29 KM | |
| Kibworth Mead Academy | Academy Converter | Requires improvement | 0.51 KM |
| Stoneygate School | Other Independent School | 4.05 KM | |
| The Lady Byron School | Other Independent Special School | 5.11 KM | |
| Fleckney Sure Start Children'S Centre | Children's Centre | 5.22 KM |
Images
Nearby Streets
| Name | Average Price | Average Sqft | Distance |
|---|---|---|---|
| Paget Court | £ 0 | 0 | 0.00 KM |
| Newtown Close | £ 895,000 | 0 | 0.00 KM |
| Buller Street | £ 585,000 | 0 | 0.00 KM |
| Church Road | £ 680,000 | 0 | 0.00 KM |
| Prospect Road | £ 377,857 | 0 | 0.00 KM |
Nearby Listings
| Address | Price | Type | Score | Distance |
|---|---|---|---|---|
| Elliot Close, Kibworth, LE8 | £ 285,000 | BUY | 6 / 10 | 0.00 KM |
| Elliot Close, Kibworth, LE8 | £ 295,000 | BUY | 7 / 10 | 0.00 KM |
| Elliot Close, Kibworth Beauchamp, Leicester | £ 325,000 | BUY | 6 / 10 | 0.01 KM |
| Elliot Close, Kibworth Beauchamp, LE8 0EZ | £ 319,950 | BUY | 6 / 10 | 0.01 KM |
| Churchill Avenue, Kibworth Beauchamp, Leicestershire, LE8 0UT | £ 440,000 | BUY | 7 / 10 | 0.07 KM |
Nearby Properties
| Address | Price | Distance |
|---|---|---|
| 33 Elliot Close | £ 184,000 | 0.00 KM |
| 24 Elliot Close | £ 116,000 | 0.00 KM |
| 13 Elliot Close | £ 212,500 | 0.00 KM |
| 1 Elliot Close | £ 242,500 | 0.00 KM |
| 14 Elliot Close | £ 240,000 | 0.00 KM |