Waterman House says ..
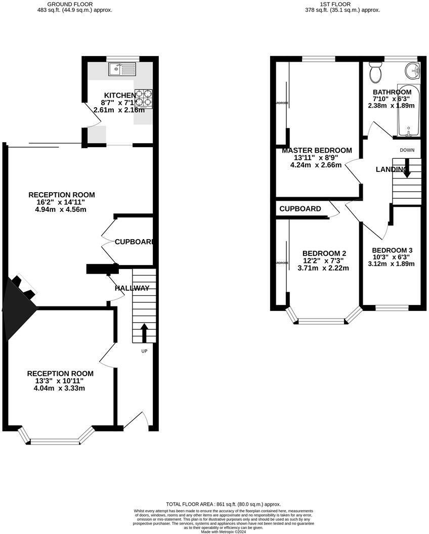
We are pleased to bring to the market this 3 BEDROOM TERRACED HOUSE. The downstairs comprises of 2 LARGE RECEPTION ROOMS plus the kitchen. Upstairs there are 2 DOUBLE BEDROOMS with built in wardrobes, plus a good sized 3rd bedroom. The family bathroom is also upstairs. To the rear of the property...
Property Oracle says ..
This three-bedroom terraced house in Chatham, Kent, presents a mixed bag of attributes. The location is favorable, situated near well-regarded schools and with good access to railway stations in Chatham, Rochester, Strood, and Gillingham. These transport links improve the property’s appeal to commuters. The house is structurally sound but requires cosmetic upgrades and improvements to bring it to a higher standard of modern living. The kitchen, in particular, appears dated. The interior rooms display different styles of decor which might appeal to some buyers but could also reflect a lack of cohesive style throughout the house. The presence of a garden, although small, adds value compared to properties without outdoor space. While the listed price of £260,000 might seem reasonable compared to similar properties in the area, a more comprehensive comparison, including price per square foot data from similar properties that are in a similar condition is needed to make a definitive statement on value. Potential buyers should factor in the cost of updating and modernizing the property and factor that into their decision making. Overall, the property represents a considerable investment with a solid basis in location, that however requires some work to fully reach its potential.
Therefore, we give this property 5 / 10. *Disclaimer: This is our option and does constitute a recommendation or financial advice. Do your own research. *
- Price
- 7
- Condition
- 5
- Location
- 6
- Land
- 4
- Bedrooms
- 3
- Bathrooms
- 1
- Sqft (est)
- 861.00
The heatmap indicates the level of crime in the area. The color of the heatmap indicates the crime severity and recency.
Metrics Year-on-Year
- Average area value
- 394,944.00 £Increased by 20.71 %
- Est sale value
- 441,693.00 £Increased by 36.07 %
- Average area rental value
- 1,293.00 £/moDecreased by 22.11 %
- Est letting value
- 861.00 £/moUnchanged by 0.00 %
- Est rental Yield
- 3.93 %Decreased by 35.47 %
- Crime Rate
- 2.00 %Unchanged by 0.00 %
Agent Activity
Waterman House marked this listing as sold.
Waterman House created the listing.
Nearby Schools
| Name | Type | Ofsted | Distance |
|---|---|---|---|
| Balfour Junior School | Academy Converter | Good | 0.43 KM |
| Blue Skies School | Other Independent Special School | Requires improvement | 0.48 KM |
| Balfour Infant School | Community School | Good | 0.49 KM |
| Holcombe Grammar School | Academy Converter | Good | 0.51 KM |
| New Horizons Children'S Academy | Academy Sponsor Led | Good | 0.75 KM |
Images
Nearby Streets
| Name | Average Price | Average Sqft | Distance |
|---|---|---|---|
| Mozart Court | £ 0 | 0 | 0.00 KM |
| Downer Court | £ 0 | 0 | 0.00 KM |
| St Alban's Walk | £ 0 | 0 | 0.00 KM |
| Thorndike Close | £ 0 | 0 | 0.00 KM |
| Glencoe Road | £ 0 | 0 | 0.00 KM |
Nearby Transport
| Name | NLC | TLC | Distance |
|---|---|---|---|
| Chatham | 5199 | CTM | 1.12 KM |
| Rochester | 5203 | RTR | 1.87 KM |
| Strood (Kent) | 5191 | SOO | 3.50 KM |
| Gillingham (Kent) | 5169 | GLM | 3.91 KM |
| Cuxton | 5201 | CUX | 6.27 KM |
Nearby Listings
| Address | Price | Type | Score | Distance |
|---|---|---|---|---|
| Wyles Road, Chatham | £ 260,000 | BUY | 5 / 10 | 0.00 KM |
| Wyles Road, Chatham, ME4 | £ 550,000 | BUY | 7 / 10 | 0.02 KM |
| Dale Street, Chatham, ME4 | £ 230,000 | BUY | 6 / 10 | 0.07 KM |
| Elm Avenue, Chatham, Kent, ME4 | £ 325,000 | BUY | 6 / 10 | 0.14 KM |
| Elm Avenue, Chatham, Kent, ME4 | £ 280,000 | BUY | 6 / 10 | 0.15 KM |
Nearby Properties
| Address | Price | Distance |
|---|---|---|
| 44 Wyles Road | £ 250,000 | 0.04 KM |
| 38 Wyles Road | £ 149,000 | 0.04 KM |
| 32 Wyles Road | £ 245,000 | 0.04 KM |
| 37 Wyles Road | £ 95,000 | 0.04 KM |
| 25 Wyles Road | £ 130,000 | 0.04 KM |