Millers Croft, Copmanthorpe, YO23
By Wishart Estate Agents
£ 600,000
Reviews
4 out of 5 stars
Wishart Estate Agents says ..
Positioned within the highly sought-after village of Copmanthorpe, this impressive four-bedroom detached home offers an exceptional blend of space, style, and practicality. Set back from the street and adjacent to an open grassed area, the property enjoys a sense of privacy while benefiting from ...
Property Oracle says ..
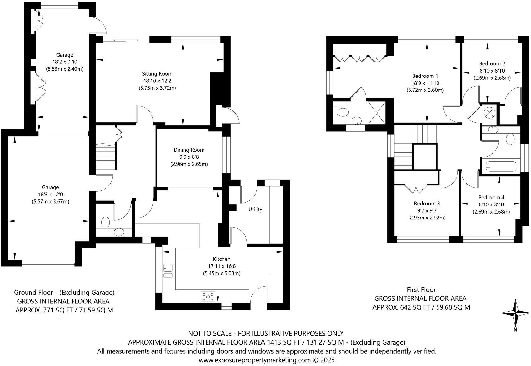
Copmanthorpe is a desirable village location close to York. The property benefits from being within easy reach of Copmanthorpe Primary School, which has a good Ofsted rating. The proximity to York provides access to more amenities and transport links, including train stations with connections to London and other major cities. Based on the images, the property appears to be well-maintained and recently updated, with a modern kitchen and bathrooms. There is evidence of recent renovations or modernisation throughout. The property has a good-sized garden. Considering the average price per square foot in the area is £308, and the property is listed at £600,000 with 1,412.98 sqft, the price per sqft is approximately £425. This is significantly higher than the average for the area. However, the property’s location in Copmanthorpe, its size, and apparent recent renovations could justify a higher price per square foot compared to the average for the broader York area. Nearby comparable properties support this higher price point, although the lack of sqft data for these properties makes a precise comparison difficult. The list price seems reasonable given the location and condition, but it’s at the higher end of the market.
Therefore, we give this property 8 / 10. *Disclaimer: This is our option and does constitute a recommendation or financial advice. Do your own research. *
- Price
- 7
- Condition
- 9
- Location
- 9
- Land
- 7
- Bedrooms
- 4
- Bathrooms
- 2
- Sqft (est)
- 1,412.98
The heatmap indicates the level of crime in the area. The color of the heatmap indicates the crime severity and recency.
Metrics Year-on-Year
- Average area value
- 591,875.00 £Increased by 5.13 %
- Est sale value
- 673,991.46 £Decreased by 6.47 %
- Average area rental value
- 1,194.00 £/moDecreased by 3.63 %
- Est letting value
- 0.00 £/moDecreased by 100.00 %
- Est rental Yield
- 2.42 %Decreased by 8.33 %
- Crime Rate
- 3.00 %Unchanged by 0.00 %
Agent Activity
Wishart Estate Agents created the listing.
Nearby Schools
| Name | Type | Ofsted | Distance |
|---|---|---|---|
| Copmanthorpe Primary School | Community School | Good | 0.28 KM |
| Woodthorpe Primary School | Academy Converter | 2.35 KM | |
| Askham Bryan College | Further Education | Good | 2.48 KM |
| Westfield Primary Community School | Community School | Good | 3.52 KM |
| York College | Further Education | Outstanding | 3.52 KM |
Images
Nearby Streets
| Name | Average Price | Average Sqft | Distance |
|---|---|---|---|
| Church Street | £ 425,000 | 0 | 0.00 KM |
| Saint Giles Way | £ 290,000 | 0 | 0.00 KM |
| Saint Nicholas Crescent | £ 425,000 | 0 | 0.00 KM |
| Station Road | £ 325,000 | 0 | 0.00 KM |
| Fletcher's Croft | £ 0 | 0 | 0.00 KM |
Nearby Transport
| Name | NLC | TLC | Distance |
|---|---|---|---|
| Poppleton | 8254 | POP | 6.49 KM |
| York | 8263 | YRK | 6.73 KM |
Nearby Listings
| Address | Price | Type | Score | Distance |
|---|---|---|---|---|
| Millers Croft, Copmanthorpe, YO23 | £ 600,000 | BUY | 8 / 10 | 0.00 KM |
| Millers Croft, Copmanthorpe, YO23 | £ 500,000 | BUY | Unknown | 0.03 KM |
| Millers Croft, Copmanthorpe, YO23 | £ 500,000 | BUY | 7 / 10 | 0.05 KM |
| Millers Croft, Copmanthorpe, York | £ 465,000 | BUY | 6 / 10 | 0.06 KM |
| Merchant Way, Copmanthorpe, York | £ 749,000 | BUY | Unknown | 0.16 KM |
Nearby Properties
| Address | Price | Distance |
|---|---|---|
| 4 Sutor Close | £ 235,000 | 0.03 KM |
| 10 Sutor Close | £ 376,000 | 0.03 KM |
| 5 Sutor Close | £ 310,000 | 0.03 KM |
| 12 Millers Croft | £ 107,500 | 0.06 KM |
| 8 Millers Croft | £ 355,000 | 0.06 KM |