Clarence Road, Bridlington, YO15 2QX
By Auction House
£ 78,000
Reviews
2 out of 5 stars
Auction House says ..
FOR SALE by ONLINE AUCTION on TUESDAY 12TH AUGUST 2025, at 1:00 pm - GUIDE PRICE £78,000A five bedroom mid-terrace house in need of some TLC.
Property Oracle says ..
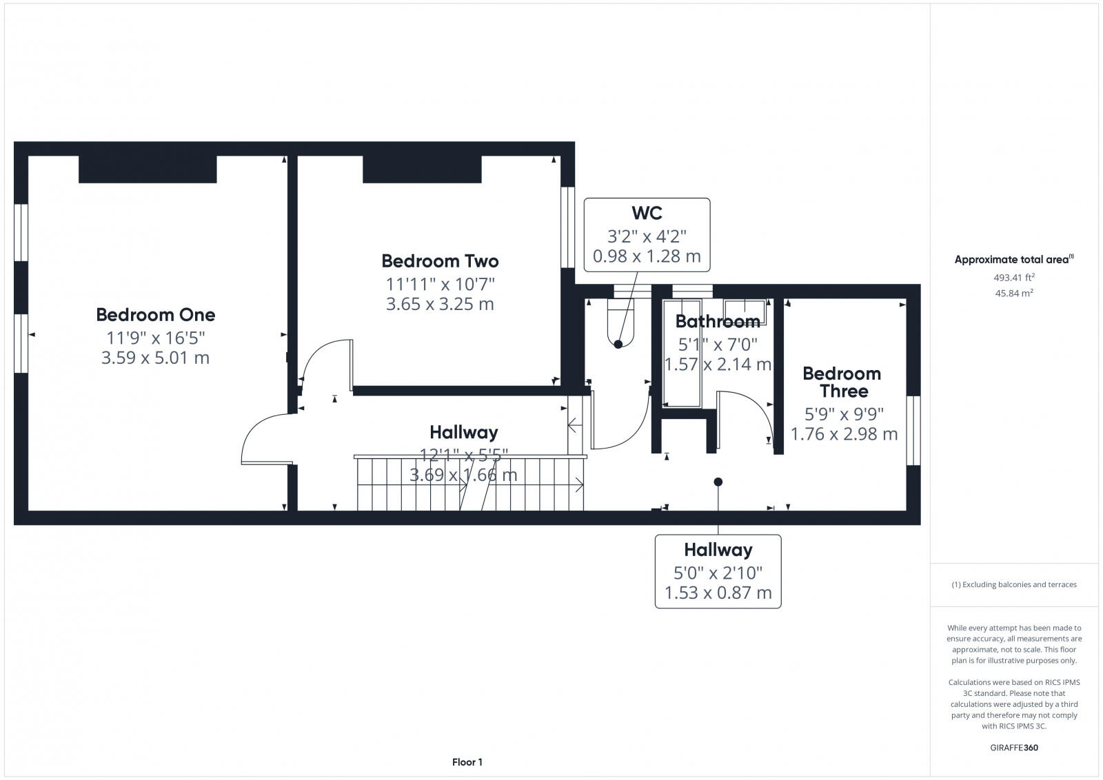
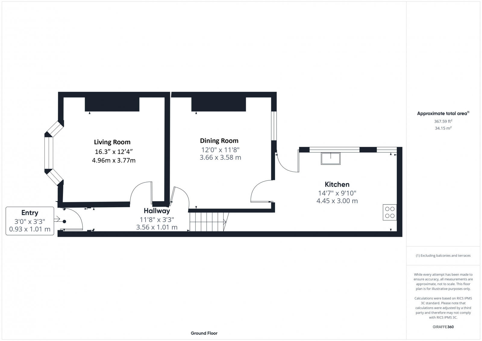
This terraced property is located on Clarence Road in Bridlington South, East Riding of Yorkshire. It features 5 bedrooms and 1 bathroom within its 1,377.95 sqft. Based on the images, the property appears to require renovation. There is evidence of exposed plaster, dated wallpaper, and general wear and tear throughout the house. The exterior also shows signs of peeling paint and weathering. The property is located 1.02 KM from Bridlington train station and 4.89 KM from Bempton train station. There are also several schools within a reasonable distance, including Quay Academy (0.94 KM) which has a ‘Good’ Ofsted rating, and Bridlington Nursery School (1.17 KM) with an ‘Outstanding’ rating. The average price per sqft in the area is £369. With the property being listed at £78,000 and having 1,377.95 sqft, the price per sqft works out at approximately £57. This is significantly below the average for the area. The average property price in the area is £221,364. The property does have a small yard.
Therefore, we give this property 5 / 10. *Disclaimer: This is our option and does constitute a recommendation or financial advice. Do your own research. *
- Price
- 9
- Condition
- 3
- Location
- 7
- Land
- 3
- Bedrooms
- 5
- Bathrooms
- 1
- Sqft (est)
- 1,377.95
The heatmap indicates the level of crime in the area. The color of the heatmap indicates the crime severity and recency.
Metrics Year-on-Year
- Average area value
- 221,364.00 £Increased by 1.09 %
- Est sale value
- 508,463.55 £Increased by 107.30 %
- Average area rental value
- 586.00 £/moDecreased by 14.08 %
- Est letting value
- 0.00 £/mo
- Est rental Yield
- 3.18 %Decreased by 14.97 %
- Crime Rate
- 51.00 %Unchanged by 0.00 %
Agent Activity
Auction House created the listing.
Nearby Schools
| Name | Type | Ofsted | Distance |
|---|---|---|---|
| Quay Academy | Academy Sponsor Led | Good | 0.94 KM |
| Bridlington Nursery School | Local Authority Nursery School | Outstanding | 1.17 KM |
| Bay Primary School | Community School | Requires improvement | 1.22 KM |
| Sure Start Children'S Centre Bridlington One | Children's Centre | 1.27 KM | |
| Martongate Primary School | Community School | Requires improvement | 1.65 KM |
Images
Nearby Streets
| Name | Average Price | Average Sqft | Distance |
|---|---|---|---|
| Rope Walk | £ 0 | 0 | 0.00 KM |
| Princess Street | £ 0 | 0 | 0.00 KM |
| Chapel Street | £ 0 | 0 | 0.00 KM |
| King Street | £ 0 | 0 | 0.00 KM |
| Providence Place | £ 144,475 | 0 | 0.00 KM |
Nearby Transport
| Name | NLC | TLC | Distance |
|---|---|---|---|
| Bridlington | 8049 | BDT | 1.02 KM |
| Bempton | 8047 | BEM | 4.89 KM |
Nearby Listings
| Address | Price | Type | Score | Distance |
|---|---|---|---|---|
| Clarence Road, Bridlington, YO15 2QX | £ 78,000 | BUY | 5 / 10 | 0.00 KM |
| Clarence Road, Bridlington | £ 310,000 | BUY | 5 / 10 | 0.04 KM |
| Clarence Road, Bridlington, East Riding of Yorkshire, YO15 | £ 129,950 | BUY | 5 / 10 | 0.06 KM |
| Clarence Road, Brdilington | £ 129,950 | BUY | Unknown | 0.06 KM |
| Princess Street, Bridlington | £ 230,000 | BUY | Unknown | 0.07 KM |
Nearby Properties
| Address | Price | Distance |
|---|---|---|
| 29 Clarence Road | £ 101,000 | 0.00 KM |
| 27 Clarence Road | £ 57,000 | 0.00 KM |
| 43c Clarence Road | £ 69,950 | 0.00 KM |
| 10 Clarence Road | £ 88,000 | 0.00 KM |
| 43 Clarence Road | £ 51,000 | 0.00 KM |