Abercorn Crescent, HARROW
DA

Abercorn Crescent, HARROW

By Daniels

£ 525,000

Reviews

3 out of 5 stars

Daniels says ..

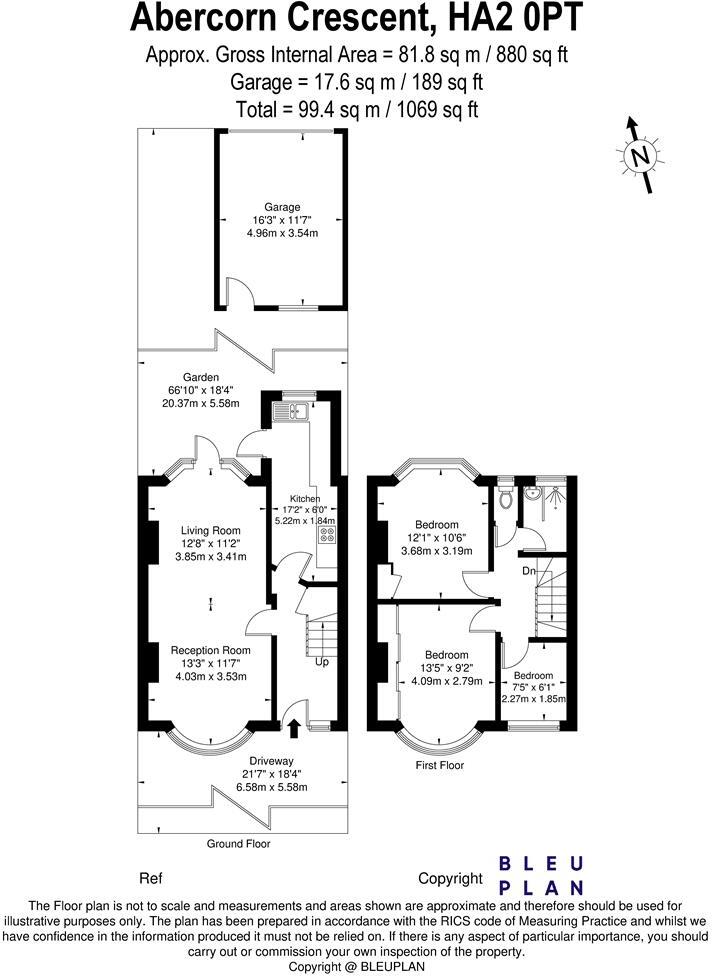
Daniels are delighted to offer to the market this well presented three bedroom mid-terrace property located on one of South Harrow's most coveted Roads. To the front there is off street parking for two cars, to the rear a 66ft garden with a double garage accessed via a service road. Thi...

Property Oracle says ..

This is a three-bedroom terraced house in Harrow On The Hill, offered by Daniels. The property is in a good location, close to schools and transport links. While the house is in reasonable condition, it would benefit from some modernisation, particularly in the kitchen. It features a garden. The asking price of £525,000 appears fair considering the location, property type, and condition.

Therefore, we give this property 6 / 10. *Disclaimer: This is our option and does constitute a recommendation or financial advice. Do your own research. *

Price
7
Condition
6
Location
7
Land
6
Bedrooms
3
Bathrooms
1

The heatmap indicates the level of crime in the area. The color of the heatmap indicates the crime severity and recency.

Metrics Year-on-Year

Average area value
619,994.00 £
Increased by 17.76 %
from 526,507.00 £
Average area rental value
2,235.00 £/mo
Increased by 14.67 %
from 1,949.00 £/mo
Est rental Yield
4.33 %
Decreased by 2.48 %
from 4.44 %
Crime Rate
3.00 %
Unchanged by 0.00 %
from 3.00 %

Agent Activity

  • Daniels created the listing.

Nearby Schools

NameTypeOfstedDistance
Grange Primary SchoolCommunity SchoolRequires improvement0.34 KM
GrangeChildren's Centre Linked Site0.50 KM
Whitmore High SchoolCommunity SchoolOutstanding0.54 KM
Rayners Lane Children'S CentreChildren's Centre Linked Site0.80 KM
The Welldon Park AcademyAcademy Sponsor Led0.94 KM

Images

22 Abercorn Crescent - bfHZtKrfLjg0Mr0Rl2OC.jpg 22 Abercorn Crescent - mn82XEwBWZpDmxzIcM9m.jpg 22 Abercorn Crescent - WWZgcCiwiCCNtgYgjFj6.jpg 22 Abercorn Crescent - 93bZCHRe50BLPpV4jNcM.jpg 22 Abercorn Crescent - LXenwHzUexwHydzsI1tr.jpg 22 Abercorn Crescent - PiO9KO3nA7PKTv6NQHse.jpg 22 Abercorn Crescent - ZQN9pLQenvK81c0yIweR.jpg 22 Abercorn Crescent - Jbushj4EDz67GfrbwCGj.jpg 22 Abercorn Crescent - 12GiVLop90YKooutO4dA.jpg 22 Abercorn Crescent - 8P5CfgnCGxR88JkJVBJc.jpg 22 Abercorn Crescent - Rr94LNk4mdd9WgW62jln.jpg

Nearby Streets

NameAverage PriceAverage SqftDistance
The Arches £ 400,00000.00 KM
Rooks Corner £ 000.00 KM
Wesley Close £ 000.00 KM
Grange Farm Close £ 82,50000.00 KM
Beechwood Gardens £ 000.00 KM

Nearby Transport

NameNLCTLCDistance
Northolt Park1478NLT1.40 KM
Harrow-On-The-Hill598HOH2.40 KM
Sudbury Hill Harrow1484SDH2.65 KM
Greenford3136GFD3.30 KM
Harrow And Wealdstone1397HRW3.50 KM

Nearby Listings

AddressPriceTypeScoreDistance
Abercorn Crescent, HARROW £ 525,000BUY6 / 100.00 KM
Lodgehill Park Close, Harrow £ 245,000BUY5 / 100.07 KM
Southdown Crescent, Harrow £ 575,000BUY6 / 100.10 KM
Harrow, Greater London, HA2 £ 190,000BUY6 / 100.11 KM
Abercorn Crescent, Harrow £ 425,000BUY7 / 100.11 KM

Nearby Properties

AddressPriceDistance
8 Abercorn Crescent £ 235,0000.03 KM
20 Abercorn Crescent £ 250,0000.03 KM
26 Abercorn Crescent £ 286,0000.03 KM
12 Abercorn Crescent £ 232,0000.03 KM
36 Abercorn Crescent £ 285,0000.03 KM