Carlton Crescent, Cheam, Sutton, SM3
GO

Carlton Crescent, Cheam, Sutton, SM3

By Goodfellows

£ 575,000

Reviews

3 out of 5 stars

Goodfellows says ..

Occupying a desirable corner plot on a sought-after residential road, this semi-detached home is ideally positioned within the catchment area for highly regarded local schools. It also benefits from being within close proximity to both Cheam Village and North Cheam Parade, offering excellent acce...

Property Oracle says ..

This is a three-bedroom semi-detached house located in Carlton Crescent, Cheam, Sutton. The property is in a popular residential area, close to local schools and amenities. The house is in need of some modernisation, but offers good potential for improvement. The property features a decent-sized garden. The house is listed for sale with Goodfellows for £575,000.

Therefore, we give this property 6 / 10. *Disclaimer: This is our option and does constitute a recommendation or financial advice. Do your own research. *

Price
7
Condition
5
Location
7
Land
6
Bedrooms
3
Bathrooms
1
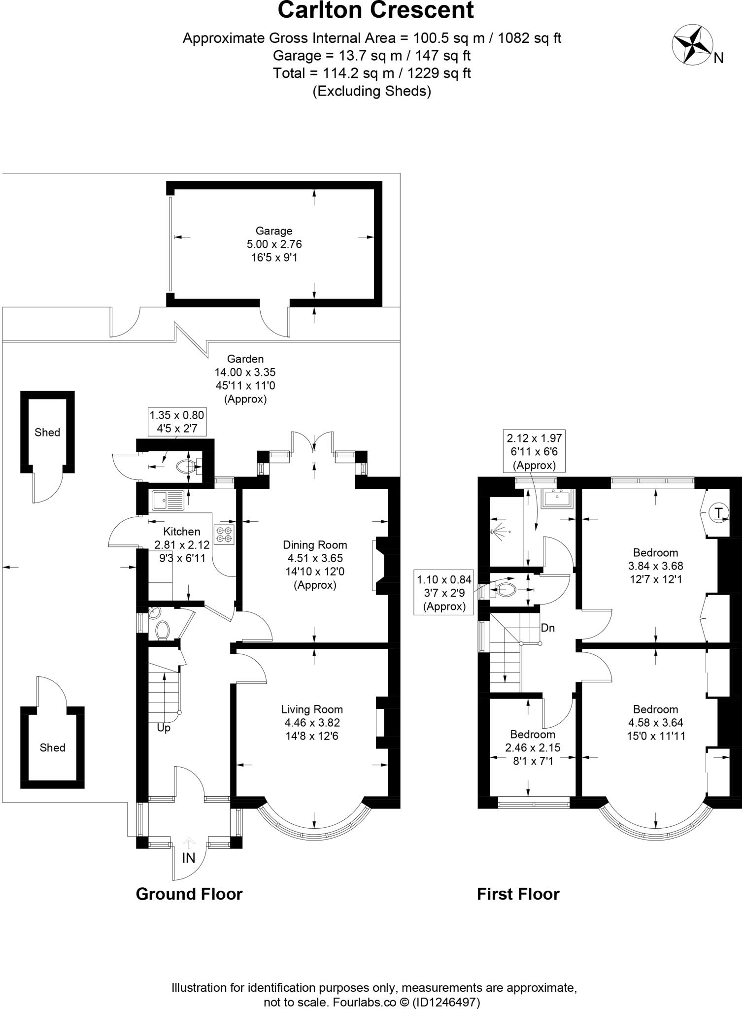
Sqft (est)
1,081.77

The heatmap indicates the level of crime in the area. The color of the heatmap indicates the crime severity and recency.

Metrics Year-on-Year

Average area value
610,625.00 £
Decreased by 19.30 %
from 756,651.00 £
Est sale value
638,244.30 £
Increased by 18.24 %
from 539,803.23 £
Average area rental value
1,920.00 £/mo
Decreased by 32.77 %
from 2,856.00 £/mo
Est letting value
1,081.77 £/mo
Unchanged by 0.00 %
from 1,081.77 £/mo
Est rental Yield
3.77 %
Decreased by 16.78 %
from 4.53 %
Crime Rate
7.00 %
Unchanged by 0.00 %
from 7.00 %

Agent Activity

  • Goodfellows created the listing.

Nearby Schools

NameTypeOfstedDistance
Cheam High SchoolAcademy ConverterOutstanding0.33 KM
Cheam Fields Primary AcademyAcademy ConverterGood0.55 KM
Cheam Park Farm Primary AcademyAcademy ConverterOutstanding0.69 KM
Brookways SchoolOther Independent Special SchoolGood0.92 KM
Green Oak Children'S Centre (Formally Nonsuch And Cheam Sure Start Children'S Centre)Children's Centre1.01 KM

Images

Picture No. 03 Picture No. 05 Picture No. 27 Picture No. 07 Picture No. 22 Picture No. 23 Picture No. 09 Picture No. 11 Picture No. 13 Picture No. 16 Picture No. 19 Picture No. 20 Picture No. 18 Picture No. 25 Picture No. 28 Picture No. 30 Picture No. 04 Picture No. 02 Picture No. 06 Picture No. 12 Picture No. 14 Picture No. 21 Picture No. 24 Picture No. 26 Picture No. 29

Nearby Streets

NameAverage PriceAverage SqftDistance
Esher Avenue £ 587,50000.00 KM
The Meads £ 000.00 KM
Westfield Close £ 000.00 KM
Church Farm Road £ 000.00 KM
London Road £ 239,00000.00 KM

Nearby Transport

NameNLCTLCDistance
West Sutton5293WSU1.39 KM
Cheam5352CHE1.57 KM
Sutton Common5436SUC2.40 KM
Sutton5385SUO3.08 KM
St Helier5290SIH3.08 KM

Nearby Listings

AddressPriceTypeScoreDistance
Carlton Crescent, Cheam, Sutton, SM3 £ 775,000BUY7 / 100.00 KM
Carlton Crescent, Cheam, Sutton, SM3 £ 575,000BUY6 / 100.00 KM
CARLTON CRESCENT, CHEAM, SUTTON, SM3 £ 800,000BUY8 / 100.00 KM
Carlton Crescent, Cheam, Sutton, SM3 £ 580,000BUY6 / 100.01 KM
Carlton Crescent, Cheam £ 800,000BUYUnknown0.05 KM

Nearby Properties

AddressPriceDistance
26 Carlton Crescent £ 315,0000.01 KM
27 Carlton Crescent £ 480,0000.01 KM
24 Carlton Crescent £ 269,9500.01 KM
41 Carlton Crescent £ 580,0000.01 KM
29 Carlton Crescent £ 670,0000.01 KM