Evington Drive, Evington, Leicester
By Knightsbridge Estate Agents & Valuers
£ 475,000
Reviews
3 out of 5 stars
Knightsbridge Estate Agents & Valuers says ..
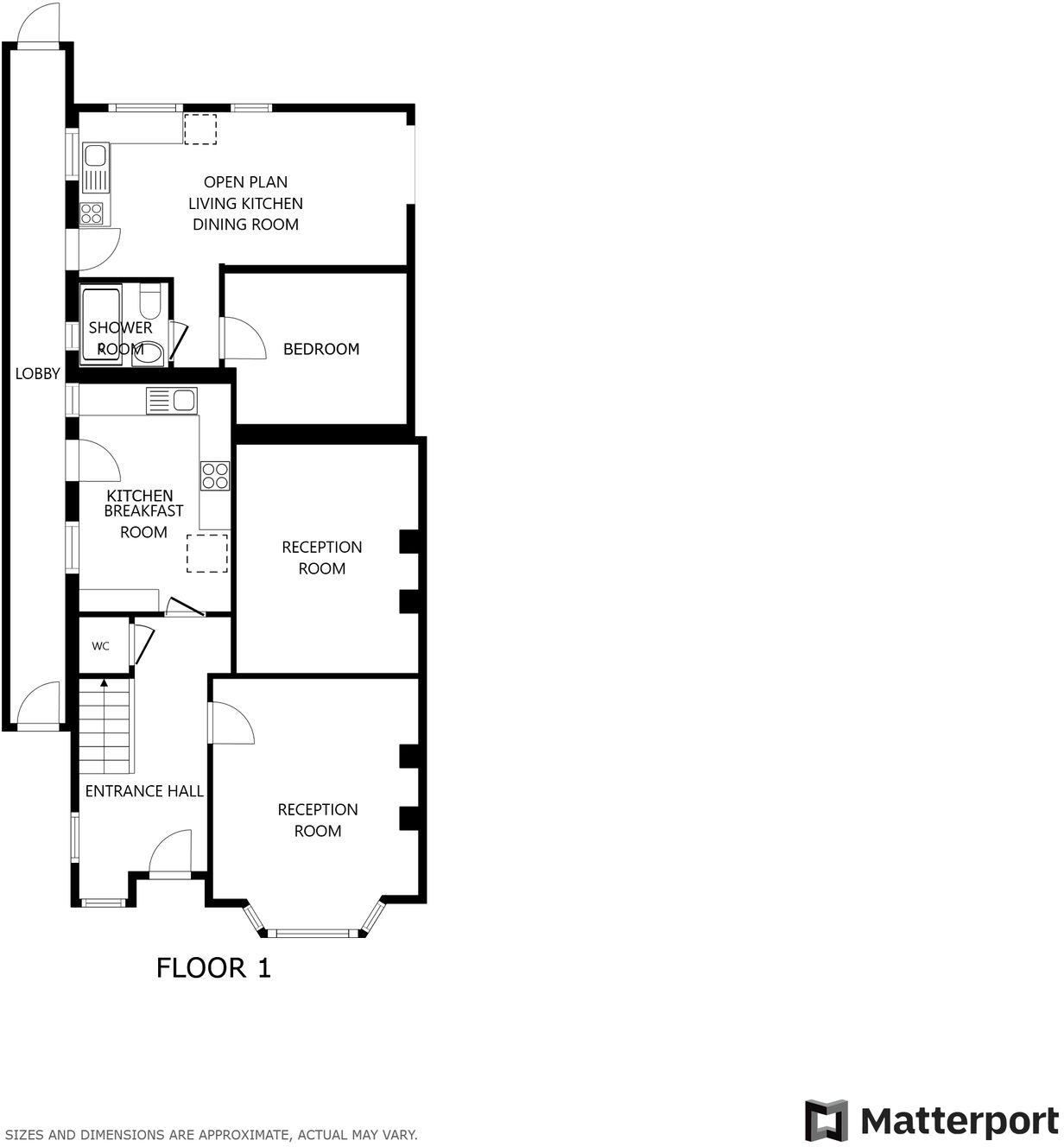
A FOUR BEDROOM traditional semi-detached property having SEPARATE ANNEXE to the rear providing SEPARATE LIVING. The property has two reception rooms and a modern style kitchen breakfast room.
Property Oracle says ..
This property is a 4-bedroom, 2-bathroom semi-detached house located in the Stoneygate area of Leicester. The property benefits from being close to well-regarded schools such as Land Of Learning Primary School and Evington Valley Primary School, both rated as ‘Good’ by Ofsted. Leicester train station is also within a reasonable distance, providing convenient access to other parts of the country. The house itself appears to be in good condition, with a modern kitchen and bathrooms. There is a garden, and the property is well-maintained. However, the plot size is listed as 0.00 sqft, which may need clarification. The list price of £475,000 is significantly higher than the average price for the area (£305,921), and the average price per sqft is £299. While the property is larger than average, this price difference warrants further investigation. More information on the actual plot size and the specifics of the property’s features would help to determine the overall value.
Therefore, we give this property 7 / 10. *Disclaimer: This is our option and does constitute a recommendation or financial advice. Do your own research. *
- Price
- 5
- Condition
- 8
- Location
- 9
- Land
- 6
- Bedrooms
- 4
- Bathrooms
- 2
- Sqft (est)
- 845.00
The heatmap indicates the level of crime in the area. The color of the heatmap indicates the crime severity and recency.
Metrics Year-on-Year
- Average area value
- 300,000.00 £Decreased by 8.89 %
- Est sale value
- 352,365.00 £Increased by 38.54 %
- Average area rental value
- 871.00 £/moDecreased by 7.24 %
- Est letting value
- 845.00 £/mo
- Est rental Yield
- 3.48 %Increased by 1.75 %
- Crime Rate
- 4.00 %Unchanged by 0.00 %
Agent Activity
Knightsbridge Estate Agents & Valuers created the listing.
Nearby Schools
| Name | Type | Ofsted | Distance |
|---|---|---|---|
| Land Of Learning Primary School | Other Independent School | Good | 0.10 KM |
| Evington Valley Primary School | Community School | Good | 0.14 KM |
| Madani Boys School | Voluntary Aided School | Good | 0.39 KM |
| Madani Girls' School | Voluntary Aided School | Good | 0.39 KM |
| North Evington Sure Start Children'S Centre | Children's Centre Linked Site | 0.85 KM |
Images
Nearby Streets
| Name | Average Price | Average Sqft | Distance |
|---|---|---|---|
| Chesterfield Road | £ 0 | 0 | 0.00 KM |
| Aber Walk | £ 475,000 | 0 | 0.00 KM |
| Francis Walk | £ 0 | 0 | 0.00 KM |
| Suffolk Street | £ 0 | 0 | 0.00 KM |
| Oakfield Road | £ 0 | 0 | 0.00 KM |
Nearby Transport
| Name | NLC | TLC | Distance |
|---|---|---|---|
| Leicester | 1947 | LEI | 2.88 KM |
| South Wigston | 1949 | SWS | 6.03 KM |
| Syston | 1900 | SYS | 7.99 KM |
Nearby Listings
| Address | Price | Type | Score | Distance |
|---|---|---|---|---|
| Evington Drive, Evington, Leicester | £ 475,000 | BUY | 7 / 10 | 0.00 KM |
| Evington Drive, Leicester, Leicestershire, LE5 | £ 429,500 | BUY | Unknown | 0.02 KM |
| Evington Drive, Leicester, Leicestershire | £ 495,000 | BUY | 5 / 10 | 0.09 KM |
| Evington Drive, Evington, Leicester | £ 449,950 | BUY | 5 / 10 | 0.09 KM |
| Evington Drive, Leicester, Leicestershire, LE5 5PB | £ 495,000 | BUY | Unknown | 0.09 KM |
Nearby Properties
| Address | Price | Distance |
|---|---|---|
| 43 Evington Drive | £ 171,000 | 0.03 KM |
| 19 Evington Drive | £ 59,000 | 0.03 KM |
| 25 Evington Drive | £ 240,000 | 0.03 KM |
| 27 Evington Drive | £ 160,000 | 0.03 KM |
| 8 Evington Lane | £ 250,000 | 0.04 KM |