St. Swithins Road, Whitstable
CH

St. Swithins Road, Whitstable

By Christopher Hodgson

£ 675,000

Reviews

3 out of 5 stars

Christopher Hodgson says ..

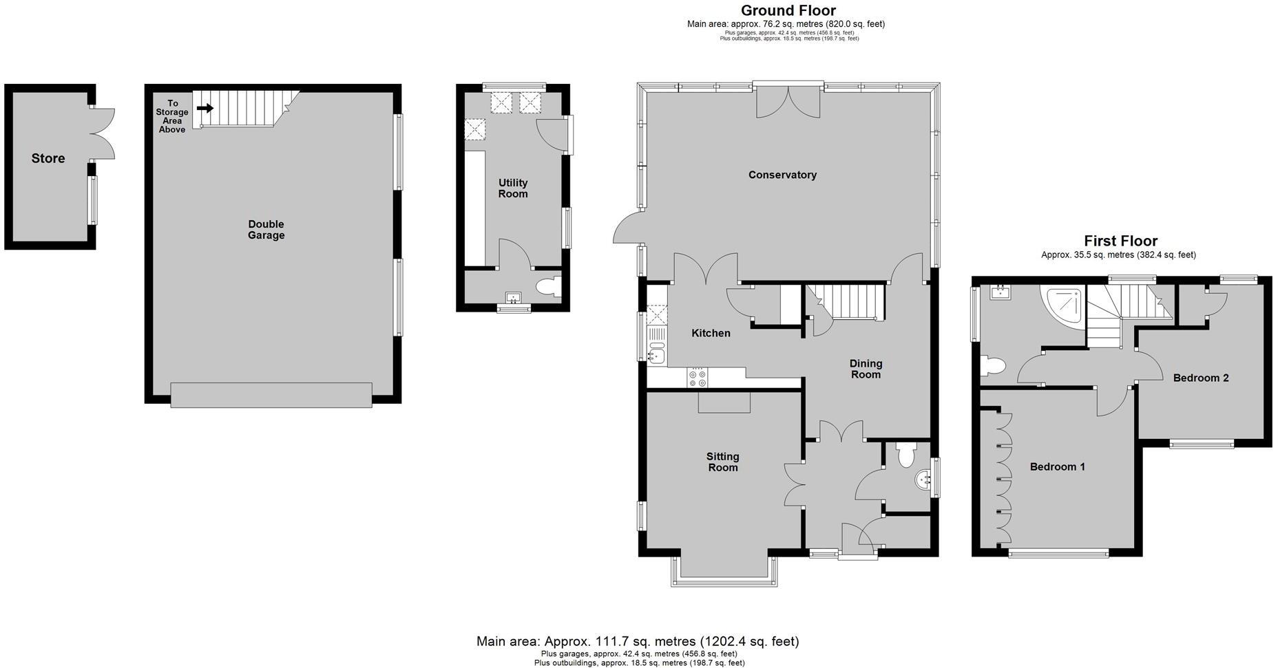
A significantly extended detached house occupying a generous plot, ideally situated in a highly desirable location less than 200 metres from Tankerton slopes and seafront, and within close proximity of shops, cafés, restaurants, bus routes, and Whitstable station (1.2 miles). The bright,...

Property Oracle says ..

Therefore, we give this property 6 / 10. *Disclaimer: This is our option and does constitute a recommendation or financial advice. Do your own research. *

Price
5
Condition
8
Location
7
Land
7
Bedrooms
2
Bathrooms
1
Sqft (est)
1,441.29

The heatmap indicates the level of crime in the area. The color of the heatmap indicates the crime severity and recency.

Metrics Year-on-Year

Average area value
277,995.00 £
Increased by 12.95 %
from 246,113.00 £
Est sale value
364,646.37 £
Decreased by 3.44 %
from 377,617.98 £
Average area rental value
1,080.00 £/mo
Decreased by 3.91 %
from 1,124.00 £/mo
Est letting value
0.00 £/mo
Decreased by 100.00 %
from 1,441.29 £/mo
Est rental Yield
4.66 %
Decreased by 14.96 %
from 5.48 %
Crime Rate
0.00 %
from 0.00 %

Agent Activity

  • Christopher Hodgson created the listing.

Nearby Schools

NameTypeOfstedDistance
Swalecliffe Children'S CentreChildren's Centre Linked Site0.46 KM
Swalecliffe Community Primary SchoolFoundation SchoolGood0.49 KM
St Mary'S Catholic Primary School, WhitstableAcademy ConverterGood1.93 KM
The Whitstable SchoolAcademy Converter2.41 KM
Westmeads Community Infant SchoolCommunity SchoolOutstanding2.90 KM

Images

St. Swithins Road, Tankerton, Whitstable St. Swithins Road, Tankerton, Whitstable St. Swithins Road, Tankerton, Whitstable St. Swithins Road, Tankerton, Whitstable St. Swithins Road, Tankerton, Whitstable St. Swithins Road, Tankerton, Whitstable St. Swithins Road, Tankerton, Whitstable St. Swithins Road, Tankerton, Whitstable St. Swithins Road, Tankerton, Whitstable St. Swithins Road, Tankerton, Whitstable St. Swithins Road, Tankerton, Whitstable St. Swithins Road, Tankerton, Whitstable St. Swithins Road, Tankerton, Whitstable St. Swithins Road, Tankerton, Whitstable St. Swithins Road, Tankerton, Whitstable St. Swithins Road, Tankerton, Whitstable St. Swithins Road, Tankerton, Whitstable St. Swithins Road, Tankerton, Whitstable St. Swithins Road, Tankerton, Whitstable St. Swithins Road, Tankerton, Whitstable St. Swithins Road, Tankerton, Whitstable

Nearby Streets

NameAverage PriceAverage SqftDistance
Newton Road £ 499,95000.00 KM
Palace Close £ 000.00 KM
Harvey Drive £ 450,00000.00 KM
Nasella Gardens £ 000.00 KM
Darnel Avenue £ 000.00 KM

Nearby Transport

NameNLCTLCDistance
Chestfield And Swalecliffe5200CSW1.34 KM
Whitstable5196WHI2.57 KM
Herne Bay5174HNB6.88 KM
Canterbury West5007CBW9.16 KM

Nearby Listings

AddressPriceTypeScoreDistance
St. Swithins Road, Whitstable £ 675,000BUY6 / 100.00 KM
St. Swithins Road, Whitstable £ 400,000BUYUnknown0.06 KM
St. Swithins Road, Tankerton, Whitstable £ 375,000BUY7 / 100.07 KM
St. Swithins Road, Whitstable, Kent £ 730,000BUY6 / 100.09 KM
Tankerton West, Tankerton, Whitstable, CT5 £ 55,000BUYUnknown0.13 KM

Nearby Properties

AddressPriceDistance
7 St Swithins Road £ 410,0000.07 KM
12 St Swithins Road £ 350,0000.07 KM
10 St Swithins Road £ 72,0000.07 KM
3 St Swithins Road £ 278,0000.07 KM
11 Herne Bay Road £ 585,0000.07 KM