eXp UK says ..
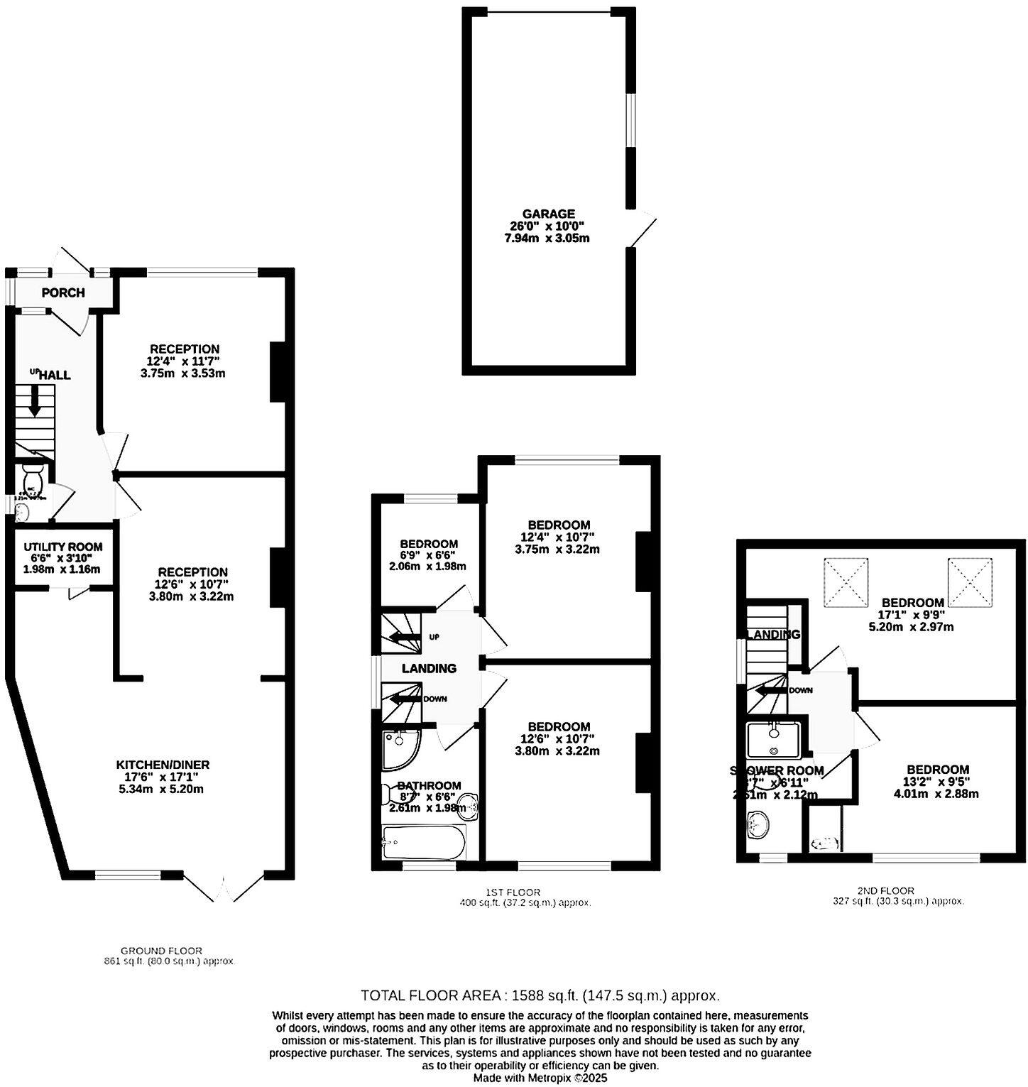
This superb five-bedroom semi-detached family home, ideally located in Stanmore and close to Belmont Circle, has been thoughtfully extended to provide spacious and modern living throughout. The property boasts a generous rear extension, creating a spacious open-plan kitchen and dining a...
Property Oracle says ..
Therefore, we give this property 7 / 10. *Disclaimer: This is our option and does constitute a recommendation or financial advice. Do your own research. *
- Price
- 8
- Condition
- 7
- Location
- 8
- Land
- 7
- Bedrooms
- 5
- Bathrooms
- 2
- Sqft (est)
- 1,437.79
The heatmap indicates the level of crime in the area. The color of the heatmap indicates the crime severity and recency.
Metrics Year-on-Year
- Average area value
- 426,436.00 £Decreased by 1.59 %
- Est sale value
- 691,576.99 £Increased by 21.77 %
- Average area rental value
- 1,587.00 £/moDecreased by 7.46 %
- Est letting value
- 1,437.79 £/moUnchanged by 0.00 %
- Est rental Yield
- 4.47 %Decreased by 5.89 %
- Crime Rate
- 4.00 %Unchanged by 0.00 %
from 433,305.00 £
from 567,927.05 £
from 1,715.00 £/mo
from 1,437.79 £/mo
from 4.75 %
from 4.00 %
Agent Activity
eXp UK created the listing.
Nearby Schools
| Name | Type | Ofsted | Distance |
|---|---|---|---|
| Priestmead Primary School And Nursery | Academy Converter | 0.49 KM | |
| Stanburn Primary School | Community School | Good | 0.91 KM |
| St Joseph'S Catholic Primary School | Academy Converter | 0.97 KM | |
| Park High School | Academy Converter | Outstanding | 1.11 KM |
| Whitchurch Primary School & Nursery | Community School | Good | 1.38 KM |
Images
Nearby Streets
| Name | Average Price | Average Sqft | Distance |
|---|---|---|---|
| Clifton Avenue | £ 0 | 0 | 0.00 KM |
| Belmont Trail | £ 0 | 0 | 0.00 KM |
| Kenton Lane | £ 0 | 0 | 0.00 KM |
| Alcuin Court | £ 0 | 0 | 0.00 KM |
| Greenacres Drive | £ 0 | 0 | 0.00 KM |
Nearby Transport
| Name | NLC | TLC | Distance |
|---|---|---|---|
| Kenton | 1399 | KNT | 1.99 KM |
| Harrow And Wealdstone | 1397 | HRW | 2.59 KM |
| South Kenton | 1453 | SOK | 3.23 KM |
| Harrow-On-The-Hill | 598 | HOH | 3.54 KM |
| North Wembley | 1422 | NWB | 4.16 KM |
Nearby Listings
| Address | Price | Type | Score | Distance |
|---|---|---|---|---|
| Grange Avenue, Stanmore, HA7 | £ 695,000 | BUY | 7 / 10 | 0.00 KM |
| Clifton Avenue, Stanmore | £ 675,000 | BUY | 7 / 10 | 0.11 KM |
| Kenton Lane, Kenton, HA3 8RJ | £ 785,000 | BUY | 7 / 10 | 0.15 KM |
| Uppingham Avenue, Stanmore | £ 550,000 | BUY | 6 / 10 | 0.18 KM |
| Kenton Lane, HARROW, HA3 | £ 294,950 | BUY | 6 / 10 | 0.19 KM |
Nearby Properties
| Address | Price | Distance |
|---|---|---|
| 30 Grange Avenue | £ 127,000 | 0.01 KM |
| 34 Grange Avenue | £ 345,000 | 0.01 KM |
| 38 Grange Avenue | £ 690,000 | 0.01 KM |
| 22 Grange Avenue | £ 208,000 | 0.01 KM |
| 36 Grange Avenue | £ 345,000 | 0.01 KM |