Normandy Way, Fordingbridge, SP6
By Carter & May
£ 665,000
Reviews
4 out of 5 stars
Carter & May says ..
Carter and May are delighted to offer this large spacious home situated in the sought after area of Fordingbridge. The property offers space both inside and out of the property with great flexibility for growing families and multi generations. The current vendors have tastefully decorated and upd...
Property Oracle says ..
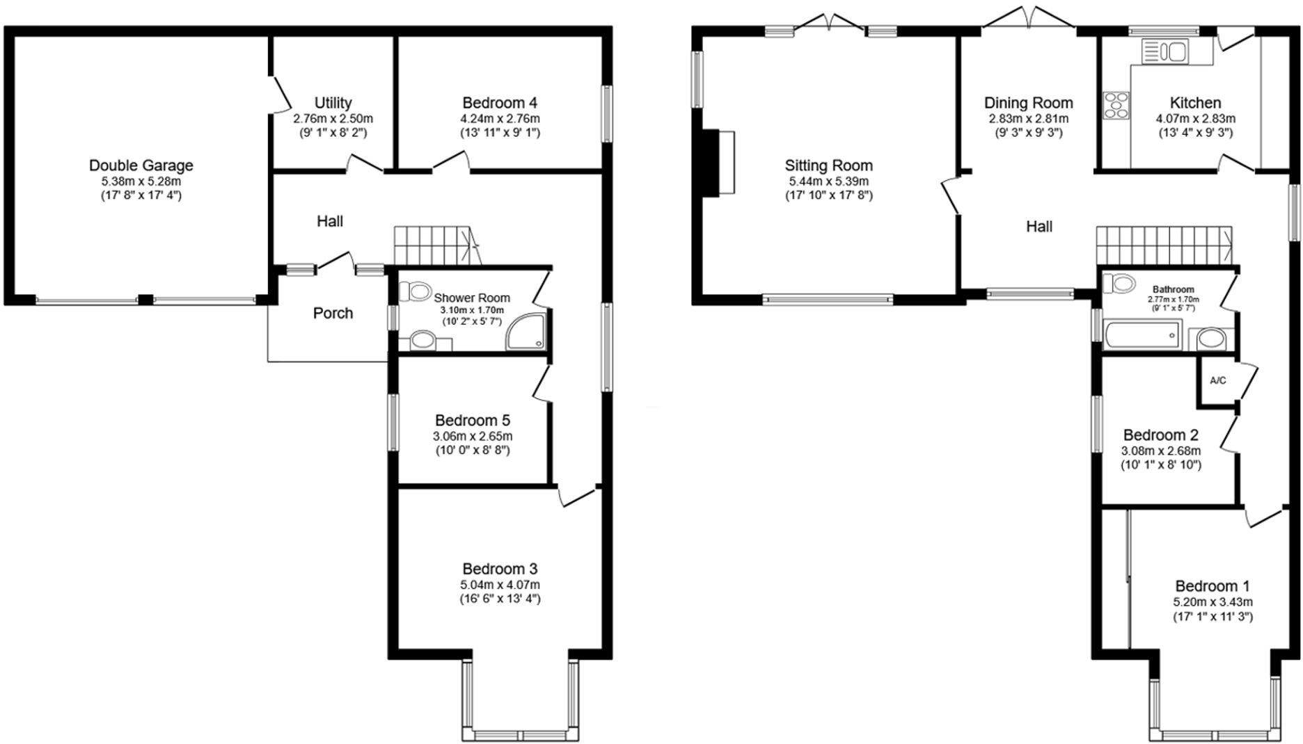
Fordingbridge is a desirable town located in the New Forest National Park, known for its picturesque setting and proximity to open countryside. The property is within reasonable distance of local schools, including Fordingbridge Junior School and The Burgate School and Sixth Form, both rated ‘Good’ by Ofsted. The availability of good schools adds to the desirability of the area. However, information on nearby transportation links is missing, which could impact the overall location score. The property appears to be in excellent condition based on the provided images. The interior is modern, well-maintained, and tastefully decorated. There are no visible signs of wear and tear or the need for renovation. The kitchen and bathrooms are contemporary and updated. The property boasts a substantial garden, which is well-landscaped and tiered. The size of the plot is not specified, but the images clearly show a significant amount of outdoor space. This is a considerable asset, particularly in a desirable location like Fordingbridge. The list price of £665,000 is significantly higher than the average price of £394,494 for properties in the area. However, the property is substantially larger than the average at 1,725.89 sqft compared to the average of 922 sqft. The average price per sqft in the area is £427. This property is considerably larger and in better condition than the average property in the area. While the price is above average, considering the size, condition, and desirable location, it may represent reasonable value for money. Further analysis of comparable properties in the immediate vicinity would be beneficial to more accurately assess the price.
Therefore, we give this property 8 / 10. *Disclaimer: This is our option and does constitute a recommendation or financial advice. Do your own research. *
- Price
- 7
- Condition
- 10
- Location
- 8
- Land
- 8
- Bedrooms
- 5
- Bathrooms
- 2
- Sqft (est)
- 1,725.89
The heatmap indicates the level of crime in the area. The color of the heatmap indicates the crime severity and recency.
Metrics Year-on-Year
- Average area value
- 471,111.00 £Increased by 12.11 %
- Est sale value
- 930,254.71 £Increased by 34.75 %
- Average area rental value
- 1,283.00 £/moDecreased by 19.91 %
- Est letting value
- 1,725.89 £/moUnchanged by 0.00 %
- Est rental Yield
- 3.27 %Decreased by 28.45 %
- Crime Rate
- 12.00 %Unchanged by 0.00 %
Agent Activity
Carter & May created the listing.
Nearby Schools
| Name | Type | Ofsted | Distance |
|---|---|---|---|
| The Bridges And Pathways Children'S Centre | Children's Centre | 1.15 KM | |
| Fordingbridge Junior School | Community School | Good | 1.18 KM |
| Fordingbridge Infant School | Community School | Good | 1.18 KM |
| Forres Sandle Manor School | Other Independent School | 1.26 KM | |
| The Burgate School And Sixth Form | Academy Converter | Good | 1.47 KM |
Images
Nearby Streets
| Name | Average Price | Average Sqft | Distance |
|---|---|---|---|
| Mill Court | £ 0 | 0 | 0.00 KM |
| Parsonage Close | £ 0 | 0 | 0.00 KM |
| Brook Terrace | £ 0 | 0 | 0.00 KM |
| Kings Yard | £ 0 | 0 | 0.00 KM |
| Frog Lane | £ 0 | 0 | 0.00 KM |
Nearby Listings
| Address | Price | Type | Score | Distance |
|---|---|---|---|---|
| Normandy Way, Fordingbridge, SP6 | £ 665,000 | BUY | 8 / 10 | 0.00 KM |
| Normandy Way, Fordingbridge, SP6 | £ 525,000 | BUY | 7 / 10 | 0.11 KM |
| Vimoutiers Court, Fordingbridge | £ 575,000 | BUY | 7 / 10 | 0.12 KM |
| Fordingbridge | £ 525,000 | BUY | 6 / 10 | 0.13 KM |
| Normandy Way, Fordingbridge | £ 475,000 | BUY | 6 / 10 | 0.13 KM |
Nearby Properties
| Address | Price | Distance |
|---|---|---|
| 4 Vimoutiers Court | £ 518,000 | 0.10 KM |
| 12 Vimoutiers Court | £ 330,000 | 0.10 KM |
| 6 Vimoutiers Court | £ 397,500 | 0.10 KM |
| 6 Normandy Way | £ 435,000 | 0.10 KM |
| 39 Normandy Way | £ 430,000 | 0.10 KM |