Winkworth says ..
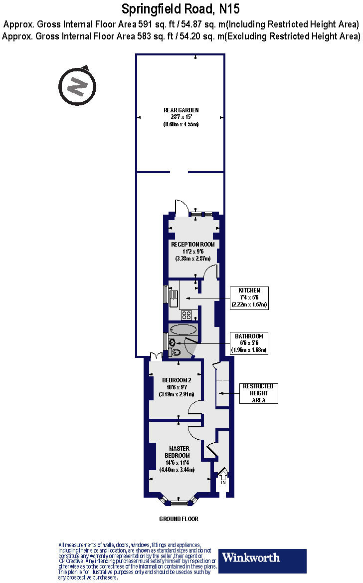
This well-presented, two-bedroom ground floor, bay fronted Victorian conversion and a approx. 30 ft. back garden can be found on a quiet street in Seven Siters N15 Chain Free.
Property Oracle says ..
This two-bedroom property located on Springfield Road in Tottenham Green, London, presents a decent opportunity for buyers seeking a home in a reasonably convenient area. The property’s location offers good access to public transport via Tottenham Hale and several Overground stations, making commutes to other parts of London relatively straightforward. The presence of several well-rated schools nearby is another positive aspect, potentially making the property attractive to families.
The property itself is presented well in the photographs, appearing clean and habitable. However, some minor cosmetic updates might enhance its appeal and increase its overall market value. The kitchen and bathroom appear functional and well-maintained. The garden, while present, is relatively small, offering some outdoor space but not extensive grounds.
The listing price of £450,000 is within the range of comparable properties in the area, though a precise comparison is hampered by the lack of square footage information for nearby listings. Overall, this property represents a solid option for those looking for a reasonably priced two-bedroom home in a well-connected London neighbourhood; however potential buyers should carefully assess the property’s condition and determine if they’re prepared to make any necessary upgrades. Further information, such as a survey, should be sought before committing to a purchase.
Therefore, we give this property 6 / 10. *Disclaimer: This is our option and does constitute a recommendation or financial advice. Do your own research. *
- Price
- 7
- Condition
- 6
- Location
- 7
- Land
- 4
- Bedrooms
- 2
- Bathrooms
- 1
- Sqft (est)
- 590.62
The heatmap indicates the level of crime in the area. The color of the heatmap indicates the crime severity and recency.
Metrics Year-on-Year
- Average area value
- 789,000.00 £Increased by 13.27 %
- Est sale value
- 686,300.44 £Increased by 105.66 %
- Average area rental value
- 2,233.00 £/moIncreased by 4.05 %
- Est letting value
- 1,771.86 £/moIncreased by 200.00 %
- Est rental Yield
- 3.40 %Decreased by 8.11 %
- Crime Rate
- 7.00 %Unchanged by 0.00 %
Agent Activity
Winkworth created the listing.
Nearby Schools
| Name | Type | Ofsted | Distance |
|---|---|---|---|
| Welbourne Children'S Centre | Children's Centre | 0.19 KM | |
| Ada National College For Digital Skills | Further Education | Good | 0.20 KM |
| Welbourne Primary School | Community School | Good | 0.31 KM |
| Earlsmead Children'S Centre | Children's Centre | 0.55 KM | |
| Earlsmead Primary School | Community School | Good | 0.55 KM |
Images
Nearby Streets
| Name | Average Price | Average Sqft | Distance |
|---|---|---|---|
| Bramble Close | £ 0 | 0 | 0.00 KM |
| Tamar Way | £ 0 | 0 | 0.00 KM |
| Greenway Close | £ 0 | 0 | 0.00 KM |
| Monument Way | £ 0 | 0 | 0.00 KM |
| Brook Street | £ 0 | 0 | 0.00 KM |
Nearby Transport
| Name | NLC | TLC | Distance |
|---|---|---|---|
| Tottenham Hale | 6951 | TOM | 0.55 KM |
| Bruce Grove | 6958 | BCV | 0.96 KM |
| South Tottenham | 7404 | STO | 1.10 KM |
| Seven Sisters | 6931 | SVS | 1.28 KM |
| Stamford Hill | 6968 | SMH | 1.92 KM |
Nearby Listings
| Address | Price | Type | Score | Distance |
|---|---|---|---|---|
| Springfield Road, London, N15 | £ 450,000 | BUY | 6 / 10 | 0.00 KM |
| Antill Road, London, N15 4FR | £ 300,000 | BUY | 6 / 10 | 0.08 KM |
| Broad Lane, London, N15 | £ 675,000 | BUY | Unknown | 0.09 KM |
| Antill Road, London, N15 | £ 385,000 | BUY | 6 / 10 | 0.09 KM |
| Antill Road, London, N15 | £ 425,000 | BUY | 7 / 10 | 0.10 KM |
Nearby Properties
| Address | Price | Distance |
|---|---|---|
| 179a Broad Lane | £ 112,500 | 0.08 KM |
| 163 Broad Lane | £ 212,500 | 0.08 KM |
| 165 Broad Lane | £ 210,000 | 0.08 KM |
| 171 Broad Lane | £ 169,000 | 0.08 KM |
| 117 Antill Road | £ 520,000 | 0.09 KM |