TH
Bath Road, Slough, Berkshire, SL1
By The Frost Partnership
£ 265,000
Reviews
3 out of 5 stars
The Frost Partnership says ..
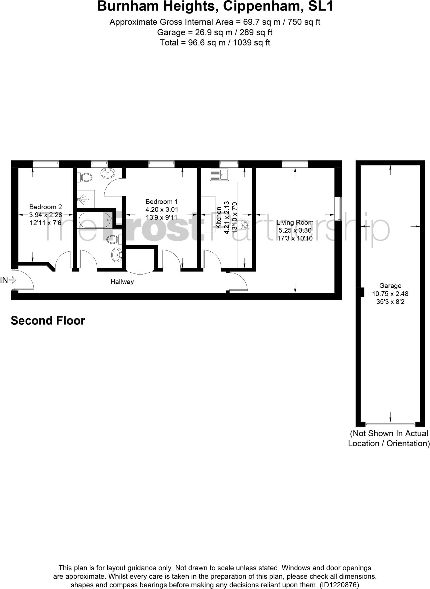
A freshly redecorated second floor apartment found in a most sought after gated development that benefits from having over 900 years left remaining on its lease as well as being sold with no further chain. This delightful two bedroom two bathroom apartment enjoys spacious accommodation and also h...
Property Oracle says ..
Therefore, we give this property 7 / 10. *Disclaimer: This is our option and does constitute a recommendation or financial advice. Do your own research. *
- Price
- 7
- Condition
- 8
- Location
- 7
- Land
- 6
- Bedrooms
- 2
- Bathrooms
- 2
- Sqft (est)
- 852.77
The heatmap indicates the level of crime in the area. The color of the heatmap indicates the crime severity and recency.
Metrics Year-on-Year
- Average area value
- 736,250.00 £Increased by 72.69 %
- Est sale value
- 481,815.05 £Increased by 17.71 %
- Average area rental value
- 1,963.00 £/moIncreased by 6.51 %
- Est letting value
- 852.77 £/moDecreased by 50.00 %
- Est rental Yield
- 3.20 %Decreased by 38.34 %
- Crime Rate
- 5.00 %Unchanged by 0.00 %
from 426,349.00 £
from 409,329.60 £
from 1,843.00 £/mo
from 1,705.54 £/mo
from 5.19 %
from 5.00 %
Agent Activity
The Frost Partnership created the listing.
Nearby Schools
| Name | Type | Ofsted | Distance |
|---|---|---|---|
| Al-Madani Independent Grammar School | Other Independent School | Good | 0.50 KM |
| Huntercombe Hospital School Maidenhead | Other Independent Special School | Good | 0.60 KM |
| St. Andrew'S Way Children'S Centre | Children's Centre | 0.67 KM | |
| Cippenham Nursery School | Local Authority Nursery School | Good | 0.71 KM |
| Our Lady Of Peace Catholic Primary And Nursery School | Voluntary Aided School | Good | 0.71 KM |
Images
Nearby Streets
| Name | Average Price | Average Sqft | Distance |
|---|---|---|---|
| Bosworth court | £ 0 | 0 | 0.00 KM |
| Wyeth Close | £ 600,000 | 0 | 0.00 KM |
| Huntercombe Spur | £ 600,000 | 0 | 0.00 KM |
| St.Georges Crescent | £ 375,000 | 0 | 0.00 KM |
| Saint Andrews Way | £ 427,475 | 0 | 0.00 KM |
Nearby Transport
| Name | NLC | TLC | Distance |
|---|---|---|---|
| Burnham | 3176 | BNM | 0.98 KM |
| Taplow | 3151 | TAP | 2.96 KM |
| Windsor And Eton Central | 3175 | WNC | 6.42 KM |
| Windsor And Eton Riverside | 5672 | WNR | 6.60 KM |
| Slough | 3172 | SLO | 7.06 KM |
Nearby Listings
| Address | Price | Type | Score | Distance |
|---|---|---|---|---|
| Bath Road, Slough, Berkshire, SL1 | £ 265,000 | BUY | 7 / 10 | 0.00 KM |
| Slough, Berkshire, SL1 | £ 450,000 | BUY | Unknown | 0.06 KM |
| Burnham Heights | £ 254,950 | BUY | 5 / 10 | 0.08 KM |
| Bath Road, Cippenham, Berkshire, SL1 | £ 210,000 | BUY | 6 / 10 | 0.09 KM |
| Bath Road, Slough, Berkshire, SL1 | £ 195,000 | BUY | Unknown | 0.09 KM |
Nearby Properties
| Address | Price | Distance |
|---|---|---|
| 8 Goldsworthy Way | £ 198,000 | 0.11 KM |
| 42 Goldsworthy Way | £ 210,000 | 0.11 KM |
| 32 Goldsworthy Way | £ 362,500 | 0.11 KM |
| 40 Goldsworthy Way | £ 345,000 | 0.11 KM |
| 53 Goldsworthy Way | £ 220,000 | 0.14 KM |