Cowdenhill Road, Knightswood, Glasgow, G13 2RF
By Clyde Property
£ 130,000
Reviews
3 out of 5 stars
Clyde Property says ..
Located in a leafy pocket of Knightswood, this three bedroom mid terraced villa offers bright and spacious accommodation and has the added benefit of off-street parking.
Property Oracle says ..
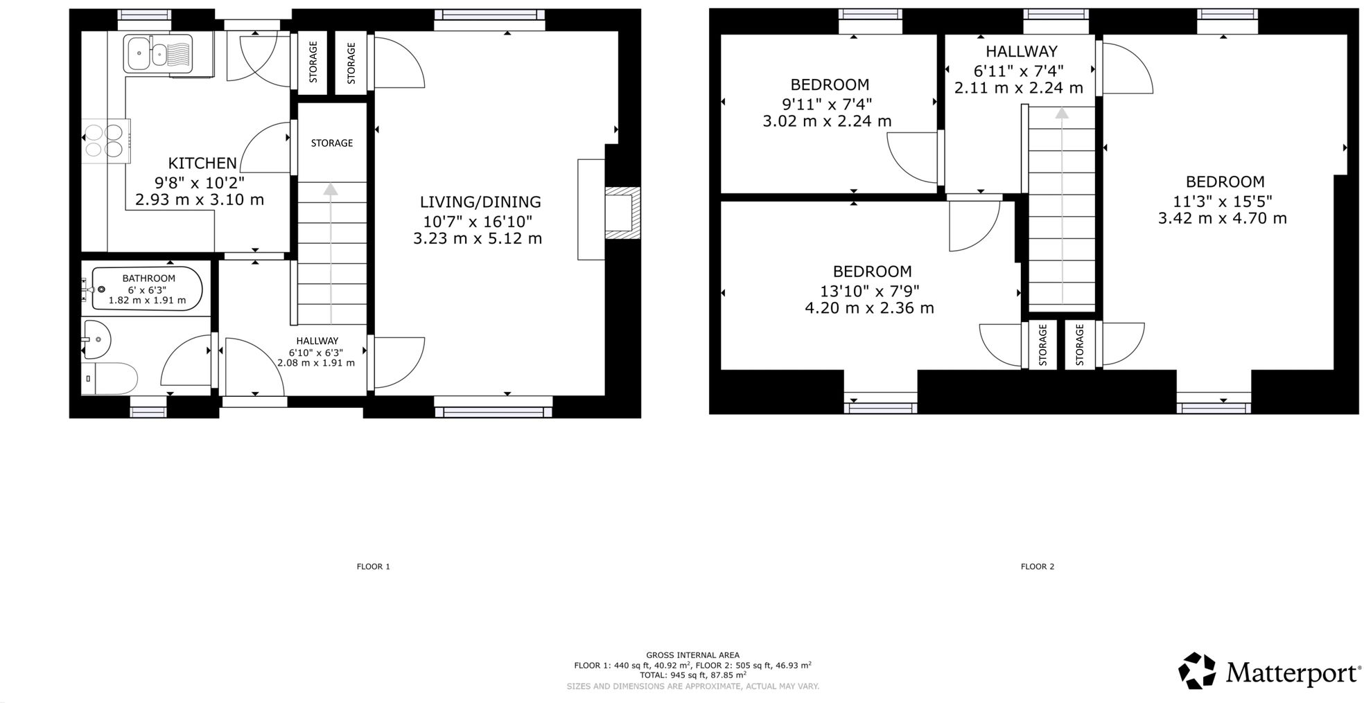
This is a three-bedroom house in Knightswood, Glasgow. The property requires some renovation but offers a good-sized garden and is located in a convenient area with good transport links. The property is listed below the average price for the area, making it an attractive opportunity for first-time buyers or investors looking to add value through renovation.
Therefore, we give this property 6 / 10. *Disclaimer: This is our option and does constitute a recommendation or financial advice. Do your own research. *
- Price
- 8
- Condition
- 5
- Location
- 7
- Land
- 7
- Bedrooms
- 3
- Bathrooms
- 1
- Sqft (est)
- 3,782.44
The heatmap indicates the level of crime in the area. The color of the heatmap indicates the crime severity and recency.
Metrics Year-on-Year
- Average area value
- 157,714.00 £Decreased by 8.91 %
- Est sale value
- 964,522.20 £Increased by 25.62 %
- Average area rental value
- 950.00 £/moDecreased by 1.35 %
- Est letting value
- 3,782.44 £/moUnchanged by 0.00 %
- Est rental Yield
- 7.23 %Increased by 8.40 %
- Crime Rate
- 0.00 %
Agent Activity
Clyde Property created the listing.
Images
Nearby Streets
| Name | Average Price | Average Sqft | Distance |
|---|---|---|---|
| Wamba Avenue | £ 0 | 0 | 0.00 KM |
| Friarscourt Lane | £ 0 | 0 | 0.00 KM |
| Templar Avenue | £ 0 | 0 | 0.00 KM |
| Rowena Avenue | £ 0 | 0 | 0.00 KM |
| Wyvil Avenue | £ 135,000 | 0 | 0.00 KM |
Nearby Transport
| Name | NLC | TLC | Distance |
|---|---|---|---|
| Westerton | 9998 | WES | 0.67 KM |
| Anniesland | 9972 | ANL | 2.05 KM |
| Bearsden | 9966 | BRN | 2.07 KM |
| Jordanhill | 9995 | JOR | 2.32 KM |
| Scotstounhill | 9996 | SCH | 2.32 KM |
Nearby Listings
| Address | Price | Type | Score | Distance |
|---|---|---|---|---|
| Cowdenhill Road, Knightswood, Glasgow, G13 2RF | £ 130,000 | BUY | 6 / 10 | 0.00 KM |
| Cowdenhill Road, Glasgow, G13 | £ 175,000 | BUY | 6 / 10 | 0.03 KM |
| 83 Cowdenhill Circus, Knightswood, G13 2RD | £ 125,000 | BUY | 7 / 10 | 0.04 KM |
| 56 Cowdenhill Circus | £ 190,000 | BUY | 5 / 10 | 0.08 KM |
| Trinley Road, Knightwood, G13 | £ 195,000 | BUY | Unknown | 0.18 KM |