Parkend Crescent, Shieldhill, FK1
By Clyde Property
£ 177,000
Reviews
3 out of 5 stars
Clyde Property says ..
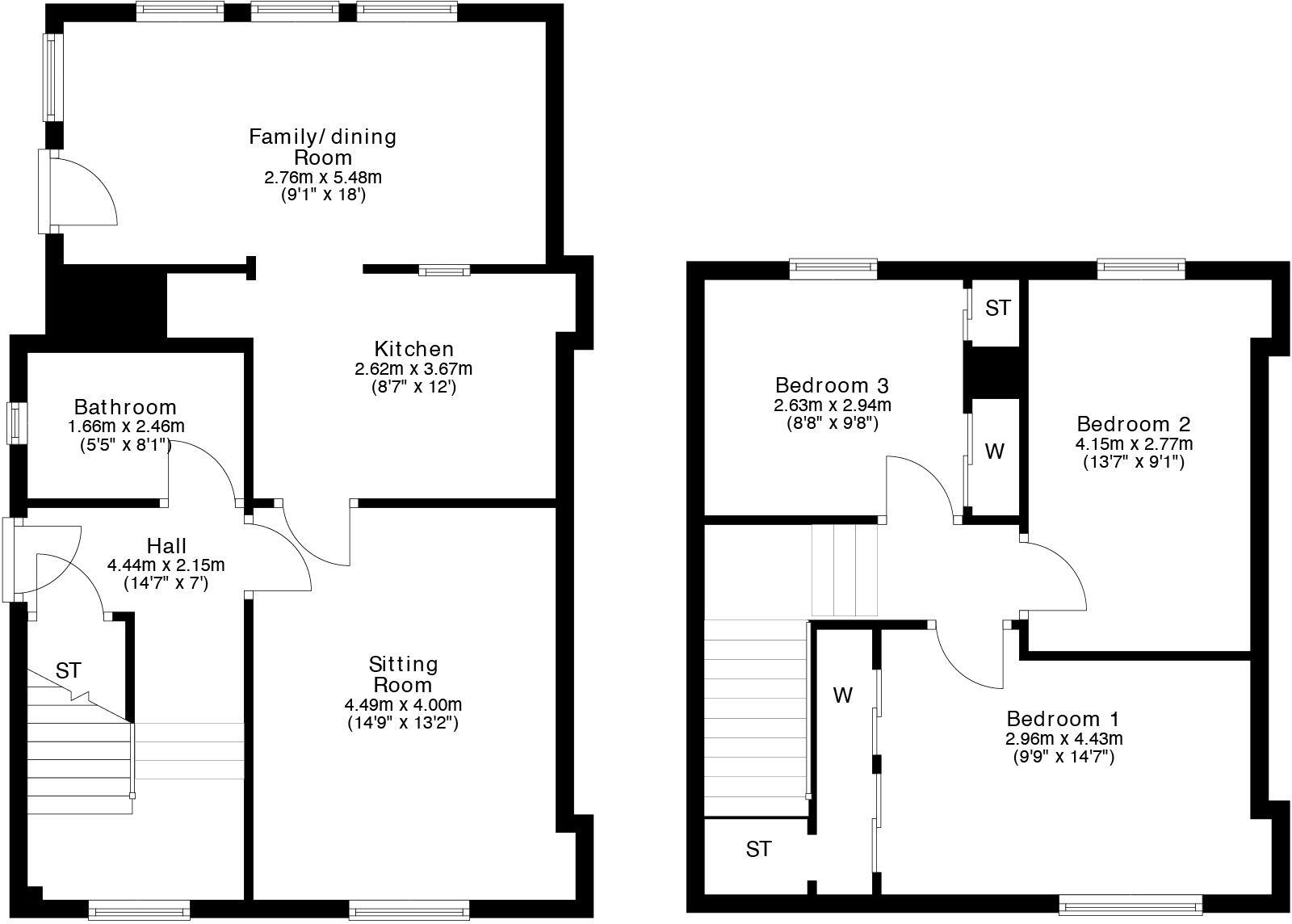
Extended semi detached villa occupying a prime corner plot. The subjects are situated centrally within the popular village of Shieldhill and lie within walking distance of local convenience shopping.
Property Oracle says ..
This is a semi-detached property in Shieldhill, Falkirk, presented by Clyde Property. The house offers three bedrooms and one bathroom. While some areas have been modernized, other parts of the property require renovation. The property benefits from a garden and is located within a reasonable distance of local amenities and transportation links. The asking price appears fair when compared to other properties in the area, making it a potentially attractive option for buyers looking to put their own stamp on a home.
Therefore, we give this property 6 / 10. *Disclaimer: This is our option and does constitute a recommendation or financial advice. Do your own research. *
- Price
- 7
- Condition
- 5
- Location
- 6
- Land
- 6
- Bedrooms
- 3
- Bathrooms
- 1
- Sqft (est)
- 276.74
The heatmap indicates the level of crime in the area. The color of the heatmap indicates the crime severity and recency.
Metrics Year-on-Year
- Average area value
- 490,000.00 £Decreased by 5.86 %
- Est sale value
- 125,086.48 £Increased by 75.88 %
- Average area rental value
- 1,975.00 £/moIncreased by 83.72 %
- Est letting value
- 276.74 £/mo
- Est rental Yield
- 4.84 %Increased by 95.16 %
- Crime Rate
- 0.00 %
Agent Activity
Clyde Property created the listing.
Nearby Schools
| Name | Type | Ofsted | Distance |
|---|---|---|---|
| Oakwood School | Offshore Schools | 3.37 KM |
Images
Nearby Streets
| Name | Average Price | Average Sqft | Distance |
|---|---|---|---|
| Greencraig Avenue | £ 0 | 0 | 0.00 KM |
| Mavisbank Avenue | £ 0 | 0 | 0.00 KM |
| Pirleyhill Drive | £ 0 | 0 | 0.00 KM |
| Vorlich Drive | £ 175,000 | 0 | 0.00 KM |
| Rannock Place | £ 0 | 0 | 0.00 KM |
Nearby Transport
| Name | NLC | TLC | Distance |
|---|---|---|---|
| Falkirk High | 9931 | FKK | 3.06 KM |
| Falkirk Grahamston | 9930 | FKG | 3.63 KM |
| Camelon | 9878 | CMO | 6.23 KM |
| Polmont | 9936 | PMT | 6.52 KM |
| Larbert | 9876 | LBT | 8.51 KM |
Nearby Listings
| Address | Price | Type | Score | Distance |
|---|---|---|---|---|
| Parkend Crescent, Shieldhill, FK1 | £ 177,000 | BUY | 6 / 10 | 0.00 KM |
| Parkend Crescent, Shieldhill, FK1 | £ 160,000 | BUY | 7 / 10 | 0.07 KM |
| Cross Brae, Shieldhill, FK1 | £ 145,000 | BUY | 6 / 10 | 0.21 KM |
| Easton Drive, Shieldhill, FK1 | £ 135,000 | BUY | 7 / 10 | 0.22 KM |
| Main Street,Shieldhill,Falkirk,FK1 2HE | £ 120,000 | BUY | 7 / 10 | 0.24 KM |