Hebble House, Bradford Road, Huddersfield
By Simon Blyth
£ 280,000
Reviews
2 out of 5 stars
Simon Blyth says ..
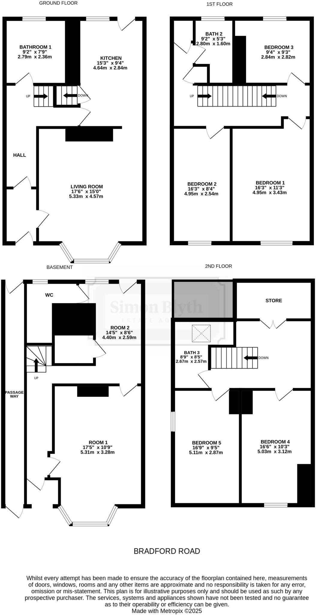
Hebble House: Victorian end terrace with stone carvings, arched windows, Maple leaf ironwork. Grade II listed, former office now residential. Gas heating, 7 bedrooms, garden, workshop, close to amenities.
Property Oracle says ..
Hebble House is an end-of-terrace property located on Bradford Road in Huddersfield. The property features five bedrooms and three bathrooms, making it suitable for a large family or those needing extra space. The location offers good access to local amenities, schools, and transportation links, with Huddersfield train station nearby. While the interior has some modern updates, the property requires further renovation and landscaping. The exterior also shows signs of wear and tear. The asking price of £280,000 appears reasonable given the property’s size, location, and the average property prices in the area.
Therefore, we give this property 5 / 10. *Disclaimer: This is our option and does constitute a recommendation or financial advice. Do your own research. *
- Price
- 7
- Condition
- 5
- Location
- 7
- Land
- 4
- Bedrooms
- 5
- Bathrooms
- 3
The heatmap indicates the level of crime in the area. The color of the heatmap indicates the crime severity and recency.
Metrics Year-on-Year
- Average area value
- 235,309.00 £Increased by 10.69 %
- Average area rental value
- 740.00 £/moDecreased by 3.14 %
- Est rental Yield
- 3.77 %Decreased by 12.53 %
- Crime Rate
- 3.00 %Unchanged by 0.00 %
Agent Activity
Simon Blyth created the listing.
Nearby Schools
| Name | Type | Ofsted | Distance |
|---|---|---|---|
| Birkby Junior School | Community School | Good | 0.48 KM |
| Annie Smith Sure Start Birkby Children'S Centre | Children's Centre | 0.54 KM | |
| Huddersfield Central Children'S Centre | Children's Centre Linked Site | 0.90 KM | |
| Brambles Primary Academy | Free Schools | 1.08 KM | |
| Birkby Infant And Nursery School | Community School | Outstanding | 1.08 KM |
Images
Nearby Streets
| Name | Average Price | Average Sqft | Distance |
|---|---|---|---|
| Birkby Bradley Greenway | £ 0 | 0 | 0.00 KM |
| Lea Street | £ 150,000 | 0 | 0.00 KM |
| Clare Hill | £ 0 | 0 | 0.00 KM |
| Castlegate | £ 0 | 0 | 0.00 KM |
| Tomlinson's Yard | £ 0 | 0 | 0.00 KM |
Nearby Transport
| Name | NLC | TLC | Distance |
|---|---|---|---|
| Huddersfield | 8437 | HUD | 0.76 KM |
| Lockwood | 8443 | LCK | 3.02 KM |
| Deighton | 8441 | DHN | 3.71 KM |
| Berry Brow | 8431 | BBW | 3.96 KM |
| Brighouse | 8514 | BGH | 4.82 KM |
Nearby Listings
| Address | Price | Type | Score | Distance |
|---|---|---|---|---|
| Hebble House, Bradford Road, Huddersfield | £ 280,000 | BUY | 5 / 10 | 0.00 KM |
| Bradford Road, Huddersfield | £ 85,950 | BUY | 6 / 10 | 0.08 KM |
| Hebble Street, Fartown, Huddersfield, HD1 | £ 170,000 | BUY | Unknown | 0.17 KM |
| Viaduct Works, Ray Street, West Yorkshire, HD1 6BB | £ 2,575,000 | BUY | 4 / 10 | 0.27 KM |
| Eleanor Street, Fartown, Huddersfield, West Yorkshire, HD1 | £ 200,000 | BUY | 5 / 10 | 0.30 KM |
Nearby Properties
| Address | Price | Distance |
|---|---|---|
| 113 Bradford Road | £ 90,000 | 0.07 KM |
| 85 Bradford Road | £ 130,000 | 0.07 KM |
| 87 Bradford Road | £ 192,000 | 0.07 KM |
| 83 Bradford Road | £ 162,000 | 0.07 KM |
| 107a Bradford Road | £ 75,000 | 0.07 KM |