Carp Close, Larkfield, Aylesford, Kent, ME20
By Your Move
£ 600,000
Reviews
3 out of 5 stars
Your Move says ..
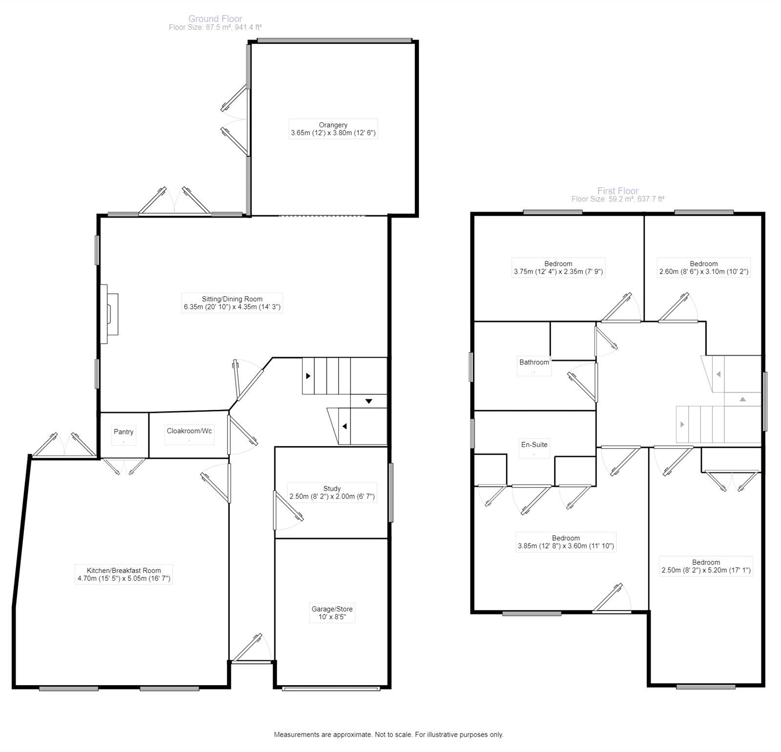
This immaculate detached property offers four double bedrooms, a modern kitchen, and a peaceful location surrounded by green spaces, making it the perfect family home. EPC grade C.
Property Oracle says ..
This property is a 4 bedroom, 2 bathroom detached house located in Larkfield, Aylesford, Kent. The property is well presented and benefits from a modern kitchen and conservatory extension. There is also a good sized garden. The location is convenient for local amenities and transport links. Based on comparable properties in the area, the asking price seems reasonable.
Therefore, we give this property 7 / 10. *Disclaimer: This is our option and does constitute a recommendation or financial advice. Do your own research. *
- Price
- 7
- Condition
- 9
- Location
- 8
- Land
- 7
- Bedrooms
- 4
- Bathrooms
- 2
- Sqft (est)
- 1,307.88
- Lot (est)
- 941.40
The heatmap indicates the level of crime in the area. The color of the heatmap indicates the crime severity and recency.
Metrics Year-on-Year
- Average area value
- 439,222.00 £Increased by 18.60 %
- Est sale value
- 648,708.48 £Increased by 16.43 %
- Average area rental value
- 1,450.00 £/moIncreased by 20.83 %
- Est letting value
- 1,307.88 £/moUnchanged by 0.00 %
- Est rental Yield
- 3.96 %Increased by 1.80 %
- Crime Rate
- 2.00 %Unchanged by 0.00 %
Agent Activity
Your Move created the listing.
Nearby Schools
| Name | Type | Ofsted | Distance |
|---|---|---|---|
| Brookfield Junior School | Community School | Good | 1.23 KM |
| Lunsford Primary School | Community School | Good | 1.29 KM |
| Brookfield Infant School | Community School | Outstanding | 1.33 KM |
| Snodland Youth And Children'S Centre | Children's Centre | 1.35 KM | |
| The Holmesdale School | Foundation School | Requires improvement | 1.40 KM |
Images
Nearby Streets
| Name | Average Price | Average Sqft | Distance |
|---|---|---|---|
| Bream Close | £ 0 | 0 | 0.00 KM |
| River Way | £ 467,500 | 0 | 0.00 KM |
| Johnson Walk | £ 0 | 0 | 0.00 KM |
| Masefield Road | £ 325,000 | 0 | 0.00 KM |
| Chesterton Road | £ 0 | 0 | 0.00 KM |
Nearby Transport
| Name | NLC | TLC | Distance |
|---|---|---|---|
| New Hythe | 5238 | NHE | 1.15 KM |
| Snodland | 5189 | SDA | 2.00 KM |
| Aylesford | 5162 | AYL | 2.71 KM |
| East Malling | 5134 | EML | 3.04 KM |
| West Malling | 5129 | WMA | 3.67 KM |
Nearby Listings
| Address | Price | Type | Score | Distance |
|---|---|---|---|---|
| Carp Close, Larkfield, Aylesford, Kent, ME20 | £ 600,000 | BUY | 7 / 10 | 0.00 KM |
| The Lakes, Larkfield, Aylesford | £ 260,000 | BUY | 6 / 10 | 0.06 KM |
| The Lakes, Larkfield, Kent | £ 327,000 | BUY | 6 / 10 | 0.10 KM |
| The Lakes, Larkfield, Kent | £ 495,000 | BUY | 6 / 10 | 0.10 KM |
| The Lakes, Aylesford | £ 230,000 | BUY | 5 / 10 | 0.10 KM |
Nearby Properties
| Address | Price | Distance |
|---|---|---|
| 5 Carp Close | £ 620,000 | 0.01 KM |
| 4 Carp Close | £ 515,000 | 0.01 KM |
| 3 Carp Close | £ 272,000 | 0.01 KM |
| 1 Carp Close | £ 347,500 | 0.01 KM |
| 2 Carp Close | £ 330,000 | 0.01 KM |