Waterfords says ..
Built in 2007 by George Wimpey / Laing Homes, this beautifully presented mid-terrace townhouse combines modern design, versatile living spaces, and low-maintenance outdoor areas.
Property Oracle says ..
Therefore, we give this property 7 / 10. *Disclaimer: This is our option and does constitute a recommendation or financial advice. Do your own research. *
- Price
- 7
- Condition
- 8
- Location
- 7
- Land
- 7
- Bedrooms
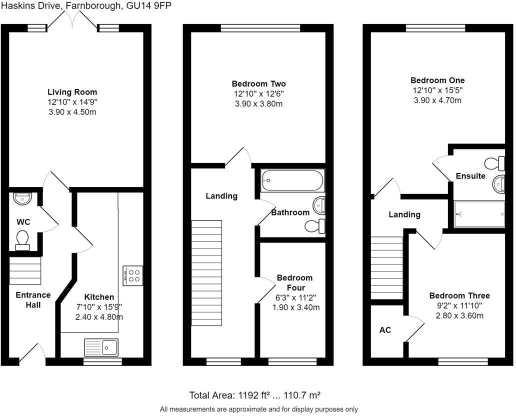
- 4
- Bathrooms
- 3
- Sqft (est)
- 1,192.00
The heatmap indicates the level of crime in the area. The color of the heatmap indicates the crime severity and recency.
Metrics Year-on-Year
- Average area value
- 384,737.00 £Decreased by 1.20 %
- Est sale value
- 485,144.00 £Increased by 15.95 %
- Average area rental value
- 1,963.00 £/moIncreased by 39.81 %
- Est letting value
- 2,384.00 £/moIncreased by 100.00 %
- Est rental Yield
- 6.12 %Increased by 41.34 %
- Crime Rate
- 8.00 %Unchanged by 0.00 %
from 389,410.00 £
from 418,392.00 £
from 1,404.00 £/mo
from 1,192.00 £/mo
from 4.33 %
from 8.00 %
Agent Activity
Waterfords created the listing.
Nearby Schools
| Name | Type | Ofsted | Distance |
|---|---|---|---|
| Parsonage Farm Nursery And Infant School | Community School | Outstanding | 0.45 KM |
| Southwood Infant School | Community School | Good | 0.73 KM |
| Cove School | Foundation School | Good | 0.86 KM |
| Guillemont Junior School | Community School | Good | 0.97 KM |
| Cove Infant School | Community School | Requires improvement | 0.99 KM |
Images
Nearby Streets
| Name | Average Price | Average Sqft | Distance |
|---|---|---|---|
| Rhine Banks | £ 0 | 0 | 0.00 KM |
| Jubilee Close | £ 0 | 0 | 0.00 KM |
| Apollo Rise | £ 407,500 | 0 | 0.00 KM |
| Church Lane | £ 675,000 | 0 | 0.00 KM |
| Nihtjar Close | £ 219,950 | 0 | 0.00 KM |
Nearby Transport
| Name | NLC | TLC | Distance |
|---|---|---|---|
| Farnborough (Main) | 5521 | FNB | 3.50 KM |
| Blackwater | 5625 | BAW | 3.96 KM |
| Frimley | 5683 | FML | 4.74 KM |
| Fleet | 5522 | FLE | 4.87 KM |
| Farnborough North | 5688 | FNN | 4.93 KM |
Nearby Listings
| Address | Price | Type | Score | Distance |
|---|---|---|---|---|
| Haskins Drive, Farnborough | £ 475,000 | BUY | 7 / 10 | 0.00 KM |
| Haskins Drive, Farnborough, Hampshire, GU14 | £ 175,000 | BUY | 6 / 10 | 0.06 KM |
| Haskins Drive, Farnborough, Hampshire | £ 450,000 | BUY | 7 / 10 | 0.06 KM |
| Haskins Drive, Farnborough | £ 475,000 | BUY | 6 / 10 | 0.06 KM |
| Haskins Drive, Farnborough, Hampshire | £ 650,000 | BUY | 7 / 10 | 0.06 KM |
Nearby Properties
| Address | Price | Distance |
|---|---|---|
| 30 Haskins Drive | £ 147,500 | 0.05 KM |
| 1 Haskins Drive | £ 370,000 | 0.05 KM |
| 12 Haskins Drive | £ 389,000 | 0.05 KM |
| 5 Haskins Drive | £ 330,000 | 0.05 KM |
| 14 Haskins Drive | £ 450,000 | 0.05 KM |