Hurst Road, Bedworth, Warwickshire, CV12
RE

Hurst Road, Bedworth, Warwickshire, CV12

By Reeds Rains

£ 280,000

Reviews

3 out of 5 stars

Reeds Rains says ..

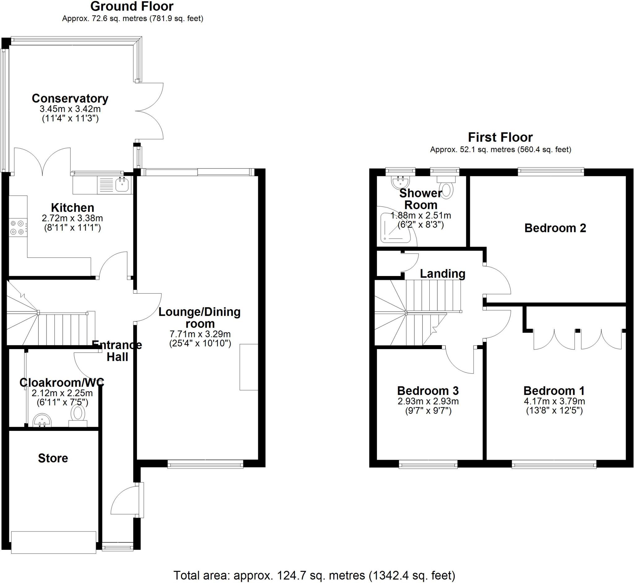
A very nicely presented semi detached family home situated with easy access to Bedworth town centre and train station. The property has been vastly improved by the current owner during their ownership with the spacious accommodation in brief comprising: Entrance hallway, cloakroom/WC, good sized ...

Property Oracle says ..

The property is a 3-bedroom semi-detached house located on Hurst Road in Bedworth, Warwickshire. It benefits from being close to several schools with good Ofsted ratings and is conveniently located near Bedworth train station. The property appears well-maintained and in good condition, featuring a modern kitchen and bathroom. A substantial garden with a patio, lawn, pond, raised vegetable beds, and a shed adds considerable value. While the list price is below the area average, a precise evaluation of value for money is challenging without knowing the property’s square footage. However, considering its condition, garden, and location, the price may represent good value compared to other nearby properties.

Therefore, we give this property 7 / 10. *Disclaimer: This is our option and does constitute a recommendation or financial advice. Do your own research. *

Price
7
Condition
8
Location
7
Land
8
Bedrooms
3
Bathrooms
1
Sqft (est)
1,031.72
Lot (est)
1,342.26

The heatmap indicates the level of crime in the area. The color of the heatmap indicates the crime severity and recency.

Metrics Year-on-Year

Average area value
411,094.00 £
Increased by 15.33 %
from 356,462.00 £
Est sale value
334,277.28 £
Decreased by 10.99 %
from 375,546.08 £
Average area rental value
1,035.00 £/mo
Decreased by 6.76 %
from 1,110.00 £/mo
Est letting value
0.00 £/mo
Decreased by 100.00 %
from 1,031.72 £/mo
Est rental Yield
3.02 %
Decreased by 19.25 %
from 3.74 %
Crime Rate
3.00 %
Unchanged by 0.00 %
from 3.00 %

Agent Activity

  • Reeds Rains created the listing.

Nearby Schools

NameTypeOfstedDistance
Race Leys Infant SchoolCommunity SchoolGood0.08 KM
Race Leys Junior SchoolAcademy Sponsor LedGood0.23 KM
The Canons C Of E Primary SchoolVoluntary Aided SchoolOutstanding0.67 KM
St Francis Catholic AcademyAcademy ConverterGood0.67 KM
All Saints Bedworth Cofe AcademyAcademy Converter1.43 KM

Images

Front Lounge/Dining Room Conservatory Kitchen Lounge/Dining Room Bedroom 2 Bedroom 1 Shower Room Rear Aspect Lounge/Dining Room Lounge/Dining Room Cloakroom/Wc Hallway Hallway Hallway Kitchen Kitchen Conservatory Landing Landing Bedroom 1 Bedroom 3 Rear Garden Rear Garden Rear Aspect Front Front Birds-Eye Rear View Birds-Eye

Nearby Streets

NameAverage PriceAverage SqftDistance
Hurst Road £ 000.00 KM
Leicester Road £ 000.00 KM
Roadway Close £ 000.00 KM
The Mews £ 000.00 KM
Jubilee Terrace £ 000.00 KM

Nearby Transport

NameNLCTLCDistance
Bedworth1165BEH1.04 KM
Bermuda Park6543BEP2.08 KM
Coventry Arena7416CAA4.42 KM
Nuneaton1077NUN5.00 KM

Nearby Listings

AddressPriceTypeScoreDistance
Hurst Road, Bedworth, Warwickshire, CV12 £ 280,000BUY7 / 100.00 KM
Oakwood Gardens, Margaret Avenue, Bedworth, CV12 8FB £ 115,000BUY7 / 100.10 KM
Mayfield Close, Bedworth, Warwickshire, CV12 £ 191,250BUY6 / 100.10 KM
Mayfield Close, Bedworth, Warwickshire, CV12 £ 280,000BUY8 / 100.12 KM
Mayfield Close, Bedworth, CV12 8ES £ 280,000BUY7 / 100.12 KM

Nearby Properties

AddressPriceDistance
6 Hurst Road £ 256,2000.07 KM
18 Hurst Road £ 159,5000.07 KM
8 Hurst Road £ 174,9500.07 KM
16 Hurst Road £ 177,9500.07 KM
4 Mayfield Close £ 216,6500.12 KM