Station Road, Haddenham, Buckinghamshire.
By W Humphries
£ 700,000
Reviews
2 out of 5 stars
W Humphries says ..
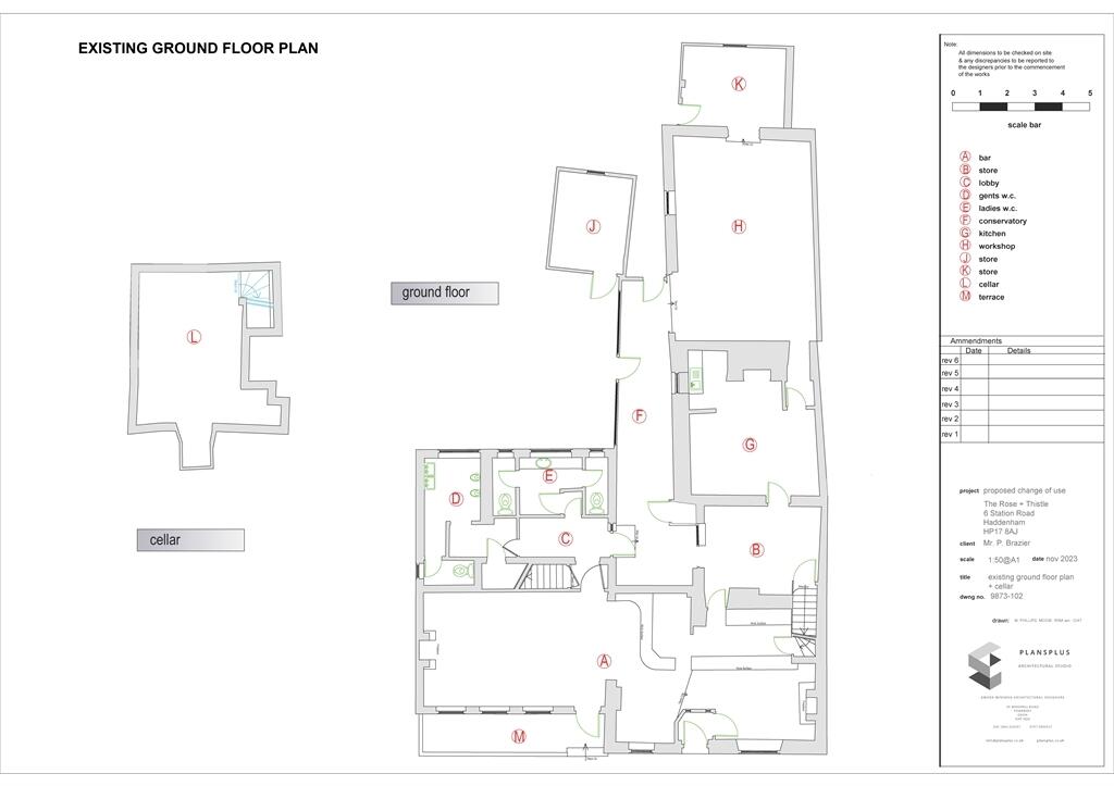
FOR REFURBISHMENT OR POSSIBLY DEVELOPMENT (SUBJECT TO FURTHER CONSENT). A FORMER COACHING INN ON A THIRD OF AN ACRE PLOT WITH PLANNING PERMISSION TO CONVERT INTO A RESIDENTIAL DWELLING OF 2357 SQ FT (219 SQ M). SUPERB LOCATION IN OLD HADDENHAM OFF THE VILLAGE GREEN AND 1 MILE AWAY FROM THE STATION
Property Oracle says ..
The Rose & Thistle is a property located on Station Road in Haddenham, Buckinghamshire. It is a detached property with 5 bedrooms and 2 bathrooms, and a total area of 2,212 square feet. The property sits on a plot of 1,184 square feet. The list price is £700,000. The average price for properties in the area is £679,905, with an average price per square foot of £499. The property is situated close to Haddenham & Thame Parkway train station (1.60 KM), and several well-regarded schools, including Haddenham St Mary’s Church of England School (0.48 KM), Haddenham Community Infant School (1.02 KM), and Haddenham Community Junior School (1.02 KM). The property appears to be in need of renovation, as evidenced by the provided photographs. The images show some exterior wear and tear and the property may require significant work. The plot size is relatively small, considering the size of the property. While the list price is slightly above the average for the area, the need for renovation and the smaller plot size may justify the higher price per square foot compared to the area average. However, a comprehensive survey and professional valuation are recommended to determine the true market value.
Therefore, we give this property 5 / 10. *Disclaimer: This is our option and does constitute a recommendation or financial advice. Do your own research. *
- Price
- 6
- Condition
- 4
- Location
- 8
- Land
- 3
- Bedrooms
- 5
- Bathrooms
- 2
- Sqft (est)
- 2,212.00
- Lot (est)
- 1,184.00
The heatmap indicates the level of crime in the area. The color of the heatmap indicates the crime severity and recency.
Metrics Year-on-Year
- Average area value
- 940,714.00 £Increased by 35.41 %
- Est sale value
- 1,172,360.00 £Increased by 169.04 %
- Average area rental value
- 1,688.00 £/moIncreased by 15.78 %
- Est letting value
- 0.00 £/mo
- Est rental Yield
- 2.15 %Decreased by 14.68 %
- Crime Rate
- 13.00 %Unchanged by 0.00 %
Agent Activity
W Humphries created the listing.
Nearby Schools
| Name | Type | Ofsted | Distance |
|---|---|---|---|
| Haddenham St Mary'S Church Of England School | Voluntary Controlled School | Good | 0.48 KM |
| Haddenham Community Infant School | Community School | Outstanding | 1.02 KM |
| Haddenham Community Junior School | Community School | Good | 1.02 KM |
| Cuddington And Dinton Cofe School | Voluntary Aided School | Good | 3.09 KM |
| Barley Hill Primary School | Community School | Good | 5.33 KM |
Images
Nearby Streets
| Name | Average Price | Average Sqft | Distance |
|---|---|---|---|
| Dragon Tail | £ 550,000 | 0 | 0.00 KM |
| The Paddocks | £ 0 | 0 | 0.00 KM |
| Whitecross Road | £ 0 | 0 | 0.00 KM |
| Tacks Lane | £ 1,190,000 | 0 | 0.00 KM |
| Nicholson Road | £ 0 | 0 | 0.00 KM |
Nearby Transport
| Name | NLC | TLC | Distance |
|---|---|---|---|
| Haddenham And Thame Parkway | 3053 | HDM | 1.60 KM |
Nearby Listings
| Address | Price | Type | Score | Distance |
|---|---|---|---|---|
| Station Road, Haddenham, Buckinghamshire. | £ 700,000 | BUY | 5 / 10 | 0.00 KM |
| Station Road, Haddenham, Aylesbury, Buckinghamshire, HP17 | £ 1,000,000 | BUY | Unknown | 0.01 KM |
| Swiss Cottage, Station Road, Haddenham, HP17 8AJ | £ 975,000 | BUY | 7 / 10 | 0.03 KM |
| Gibson Lane, Haddenham | £ 845,000 | BUY | 7 / 10 | 0.07 KM |
| Church End, Haddenham | £ 895,000 | BUY | Unknown | 0.08 KM |
Nearby Properties
| Address | Price | Distance |
|---|---|---|
| Landfall House | £ 280,000 | 0.09 KM |
| 19 Gibson Lane | £ 191,000 | 0.09 KM |
| 21 Gibson Lane | £ 540,000 | 0.09 KM |
| 15 Gibson Lane | £ 340,000 | 0.09 KM |
| 25 Gibson Lane | £ 491,000 | 0.09 KM |