Tay Street, Burnley, Lancashire, BB11
By Reeds Rains
£ 105,000
Reviews
2 out of 5 stars
Reeds Rains says ..
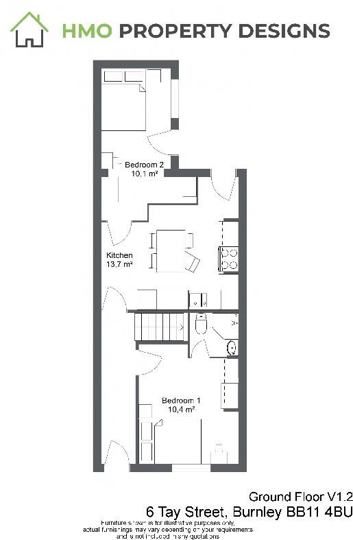
ATTENTION INVESTORS HMO WITH A GOOD RENTAL YIELD. FOUR ROOMS, 2 WITH EN SUITE SHOWER ROOMS, COMMUNAL SHOWER ROOM, COMMUNAL DINING KITCHEN. SITUATED CLOSE TO M65 MOTORWAY LINK AND NORTHERN RAILWAY NETWORK. LONG STANDING TENANTS IN SITU. CALL REEDS RAINS ON TO ENQUIRE AND ARRANGE A VIE...
Property Oracle says ..
The property at Tay Street, Burnley is a 4-bedroom, 3-bathroom house listed at £105,000. Based on the provided information and my knowledge of the UK housing market, here’s an analysis: Location: The property is situated in the Trinity area of Burnley, Lancashire. The proximity to Sure Start South West Burnley Children’s Centre and several schools (Taywood Nursery, Coal Clough Academy, The Rose School, and Burnley Holy Trinity Church of England Primary School) makes it potentially attractive to families. The presence of nearby train stations (Burnley Barracks, Burnley Manchester Road, and Burnley Central) improves its accessibility. However, without further details on the quality of local amenities and the overall character of the neighborhood, a definitive assessment of location quality is difficult. Condition: The provided photographs suggest the property is in reasonably good condition. The kitchen and bathrooms appear recently renovated or updated, showing modern fixtures and finishes. The bedrooms are presented in a clean and functional state, though the overall aesthetic is simple. There’s no visible evidence of significant disrepair or the need for major renovations. Land: The property’s plot size is listed as 0.00 SQFT, indicating a lack of garden space. This is a significant drawback for many buyers, particularly families. Price: The list price of £105,000 needs to be considered in relation to comparable properties in the area. Nearby listings on Tay Street itself show a range of prices (£35,000-£75,000), although the square footage of these properties is not provided, making direct comparison difficult. Other nearby properties listed have varying prices and descriptions. The absence of average price per square foot data for Tay Street itself and the limited information on comparable properties prevents a conclusive determination of whether the £105,000 asking price is reasonable. Further market research is needed to ascertain if this price is reflective of the current market value, considering the property’s size, condition, and lack of land.
Therefore, we give this property 5 / 10. *Disclaimer: This is our option and does constitute a recommendation or financial advice. Do your own research. *
- Price
- 5
- Condition
- 8
- Location
- 6
- Land
- 1
- Bedrooms
- 4
- Bathrooms
- 3
- Sqft (est)
- 368.13
The heatmap indicates the level of crime in the area. The color of the heatmap indicates the crime severity and recency.
Metrics Year-on-Year
- Average area value
- 446,826.00 £Increased by 0.22 %
- Est sale value
- 153,142.08 £Increased by 9.19 %
- Average area rental value
- 1,514.00 £/moDecreased by 8.57 %
- Est letting value
- 368.13 £/moUnchanged by 0.00 %
- Est rental Yield
- 4.07 %Decreased by 8.74 %
- Crime Rate
- 24.00 %Unchanged by 0.00 %
Agent Activity
Reeds Rains created the listing.
Nearby Schools
| Name | Type | Ofsted | Distance |
|---|---|---|---|
| Sure Start South West Burnley Children'S Centre | Children's Centre | 0.02 KM | |
| Taywood Nursery | Local Authority Nursery School | Outstanding | 0.08 KM |
| Coal Clough Academy | Academy Alternative Provision Sponsor Led | Good | 0.29 KM |
| The Rose School | Community Special School | Good | 0.59 KM |
| Burnley Holy Trinity Church Of England Primary School | Voluntary Aided School | Good | 0.80 KM |
Images
Nearby Streets
| Name | Average Price | Average Sqft | Distance |
|---|---|---|---|
| B6239 | £ 0 | 0 | 0.00 KM |
| Clare Street | £ 0 | 0 | 0.00 KM |
| Fern Road | £ 0 | 0 | 0.00 KM |
| Claremont Street | £ 85,000 | 0 | 0.00 KM |
| Western Avenue | £ 0 | 0 | 0.00 KM |
Nearby Transport
| Name | NLC | TLC | Distance |
|---|---|---|---|
| Burnley Barracks | 2743 | BUB | 0.68 KM |
| Burnley Manchester Road | 2549 | BYM | 1.55 KM |
| Burnley Central | 2550 | BNC | 2.10 KM |
| Rose Grove | 2722 | RSG | 2.21 KM |
| Brierfield | 2554 | BRF | 5.04 KM |
Nearby Listings
| Address | Price | Type | Score | Distance |
|---|---|---|---|---|
| Tay Street, Burnley, Lancashire, BB11 | £ 105,000 | BUY | 5 / 10 | 0.00 KM |
| Tay Street, Burnley, Lancashire, BB11 | £ 160,000 | BUY | 7 / 10 | 0.01 KM |
| Arran Street, Burnley, Lancashire, BB11 | £ 50,000 | BUY | Unknown | 0.08 KM |
| Arran Street, Burnley, Lancashire, BB11 | £ 59,995 | BUY | 6 / 10 | 0.08 KM |
| Elmwood Street, Burnley, Lancashire, BB11 | £ 59,995 | BUY | 4 / 10 | 0.09 KM |
Nearby Properties
| Address | Price | Distance |
|---|---|---|
| 22 Tay Street | £ 42,950 | 0.03 KM |
| 4 Tay Street | £ 73,000 | 0.03 KM |
| 20 Tay Street | £ 44,000 | 0.03 KM |
| 2 Tay Street | £ 35,000 | 0.03 KM |
| 18 Tay Street | £ 42,000 | 0.03 KM |