Finest says ..
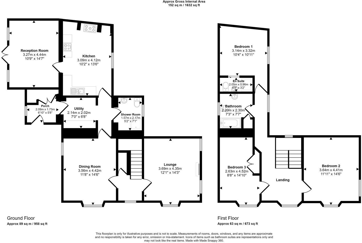
This beautifully presented semi detached house is situated in the sought after village of St. Florence, just a 10 minute drive from Tenby Town. The accommodation comprises on the ground floor; kitchen fitted with a range of modern units and a central island, dining room, living room, playroom/fou...
Property Oracle says ..
This property is a 4-bedroom, 2-bathroom semi-detached house located in St Florence, Tenby, Pembrokeshire. It benefits from being close to St Florence V.C. School (0.09 KM) and has several other schools within a reasonable distance. The property appears to be in good condition, well-maintained, and has a small garden. While the plot size is not specified, the images show a manageable outdoor space. The list price of £375,000 is slightly higher than the average price for the area (£290,250), but considering its size (1,636.11 sqft) and apparent condition, it may be considered reasonable. The average price per sqft in the area is £288, and while the sqft data for comparable properties is missing, the price seems relatively in line with other properties in the area, some of which are listed at higher prices.
Therefore, we give this property 6 / 10. *Disclaimer: This is our option and does constitute a recommendation or financial advice. Do your own research. *
- Price
- 7
- Condition
- 8
- Location
- 7
- Land
- 4
- Bedrooms
- 4
- Bathrooms
- 2
- Sqft (est)
- 1,636.11
The heatmap indicates the level of crime in the area. The color of the heatmap indicates the crime severity and recency.
Metrics Year-on-Year
- Average area value
- 278,905.00 £Increased by 2.67 %
- Est sale value
- 449,930.25 £Increased by 50.27 %
- Average area rental value
- 800.00 £/moDecreased by 34.53 %
- Est letting value
- 0.00 £/mo
- Est rental Yield
- 3.44 %Decreased by 36.30 %
- Crime Rate
- 220.00 %Unchanged by 0.00 %
Agent Activity
Finest created the listing.
Nearby Schools
| Name | Type | Ofsted | Distance |
|---|---|---|---|
| St Florence V.C. School | Welsh Establishment | 0.09 KM | |
| Manorbier V.C.P. School | Welsh Establishment | 3.02 KM | |
| Sageston C.P. School | Welsh Establishment | 4.94 KM | |
| St Oswalds Ciw Voluntary Aided School | Welsh Establishment | 5.86 KM | |
| The Greenhill School | Welsh Establishment | 6.97 KM |
Images
Nearby Streets
| Name | Average Price | Average Sqft | Distance |
|---|---|---|---|
| The Ridgeway View | £ 428,000 | 0 | 0.00 KM |
| Green Hayes Avenue | £ 422,490 | 0 | 0.00 KM |
| Ridgeway View | £ 0 | 0 | 0.00 KM |
| St | £ 0 | 0 | 0.00 KM |
| Saint Florence Cottages | £ 575,000 | 0 | 0.00 KM |
Nearby Transport
| Name | NLC | TLC | Distance |
|---|---|---|---|
| Manorbier | 4094 | MRB | 2.49 KM |
| Penally | 4129 | PNA | 6.29 KM |
| Tenby | 4110 | TEN | 7.70 KM |
| Saundersfoot | 4108 | SDF | 8.32 KM |
| Kilgetty | 4083 | KGT | 9.16 KM |
Nearby Listings
| Address | Price | Type | Score | Distance |
|---|---|---|---|---|
| St Florence, Tenby | £ 375,000 | BUY | 6 / 10 | 0.00 KM |
| St. Florence, Tenby, Pembrokeshire, SA70 | £ 450,000 | BUY | 7 / 10 | 0.01 KM |
| St. Florence, Tenby, SA70 | £ 450,000 | BUY | Unknown | 0.01 KM |
| 10 Grove Court | £ 339,950 | BUY | 6 / 10 | 0.01 KM |
| Grove Court, St Florence | £ 250,000 | BUY | 7 / 10 | 0.05 KM |
Nearby Properties
| Address | Price | Distance |
|---|---|---|
| 8 Grove Court | £ 69,950 | 0.01 KM |
| 10 Grove Court | £ 185,000 | 0.01 KM |
| 5 Grove Court | £ 203,700 | 0.01 KM |
| Clover Cottage | £ 210,000 | 0.08 KM |
| Primrose Cottage | £ 312,500 | 0.08 KM |