Chancellors says ..
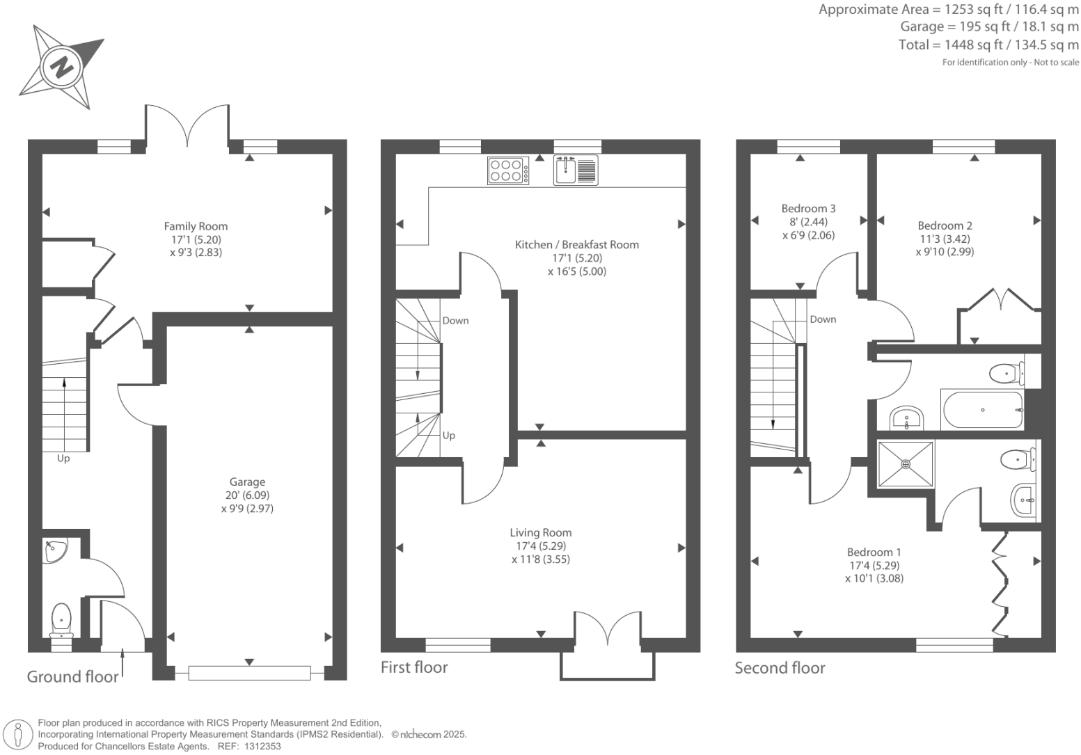
A Three/Four bedroom semi detached townhouse offering flexible living space with integral garage and driveway parking set in cul de sac location within a mile to good rated schools.
Property Oracle says ..
Therefore, we give this property 7 / 10. *Disclaimer: This is our option and does constitute a recommendation or financial advice. Do your own research. *
- Price
- 8
- Condition
- 8
- Location
- 7
- Land
- 7
- Bedrooms
- 4
- Bathrooms
- 0
- Sqft (est)
- 1,448.00
- Lot (est)
- 1,448.00
The heatmap indicates the level of crime in the area. The color of the heatmap indicates the crime severity and recency.
Metrics Year-on-Year
- Average area value
- 1,258,750.00 £Increased by 38.62 %
- Est sale value
- 852,872.00 £Decreased by 3.12 %
- Average area rental value
- 2,017.00 £/moDecreased by 42.17 %
- Est letting value
- 0.00 £/moDecreased by 100.00 %
- Est rental Yield
- 1.92 %Decreased by 58.35 %
- Crime Rate
- 16.00 %Unchanged by 0.00 %
from 908,045.00 £
from 880,384.00 £
from 3,488.00 £/mo
from 2,896.00 £/mo
from 4.61 %
from 16.00 %
Agent Activity
Chancellors created the listing.
Nearby Schools
| Name | Type | Ofsted | Distance |
|---|---|---|---|
| Manor Field Infant School | Community School | Good | 0.63 KM |
| Manor Field Junior School | Community School | Good | 0.63 KM |
| Hatch Warren Infant School | Community School | Good | 0.64 KM |
| Brighton Hill Community School | Community School | Good | 0.64 KM |
| Buttercups And Bunnies Children'S Centre | Children's Centre | 0.70 KM |
Images
Nearby Streets
| Name | Average Price | Average Sqft | Distance |
|---|---|---|---|
| Brighton Hill | £ 325,000 | 0 | 0.00 KM |
| Ellington Drive | £ 0 | 0 | 0.00 KM |
| Winchester Road | £ 375,000 | 0 | 0.00 KM |
| Mitchell Gardens | £ 320,000 | 0 | 0.00 KM |
| Hatchwarren Lane | £ 0 | 0 | 0.00 KM |
Nearby Transport
| Name | NLC | TLC | Distance |
|---|---|---|---|
| Basingstoke | 5520 | BSK | 4.45 KM |
Nearby Listings
| Address | Price | Type | Score | Distance |
|---|---|---|---|---|
| Basingstoke, Hampshire, RG22 | £ 450,000 | BUY | 7 / 10 | 0.00 KM |
| Barber Road, Basingstoke, RG22 | £ 200,000 | BUY | 5 / 10 | 0.04 KM |
| Barber Road, Brighton Hill | £ 220,000 | BUY | 6 / 10 | 0.04 KM |
| Barber Road, Basingstoke, Hampshire | £ 165,000 | BUY | 6 / 10 | 0.09 KM |
| Newman Court, Barber Road | £ 149,500 | BUY | 7 / 10 | 0.10 KM |
Nearby Properties
| Address | Price | Distance |
|---|---|---|
| 134 Barber Road | £ 262,995 | 0.09 KM |
| 76 Barber Road | £ 300,000 | 0.11 KM |
| 87 Barber Road | £ 295,000 | 0.11 KM |
| 121 Barber Road | £ 207,500 | 0.11 KM |
| 99 Barber Road | £ 207,000 | 0.11 KM |