Michelle & Co says ..
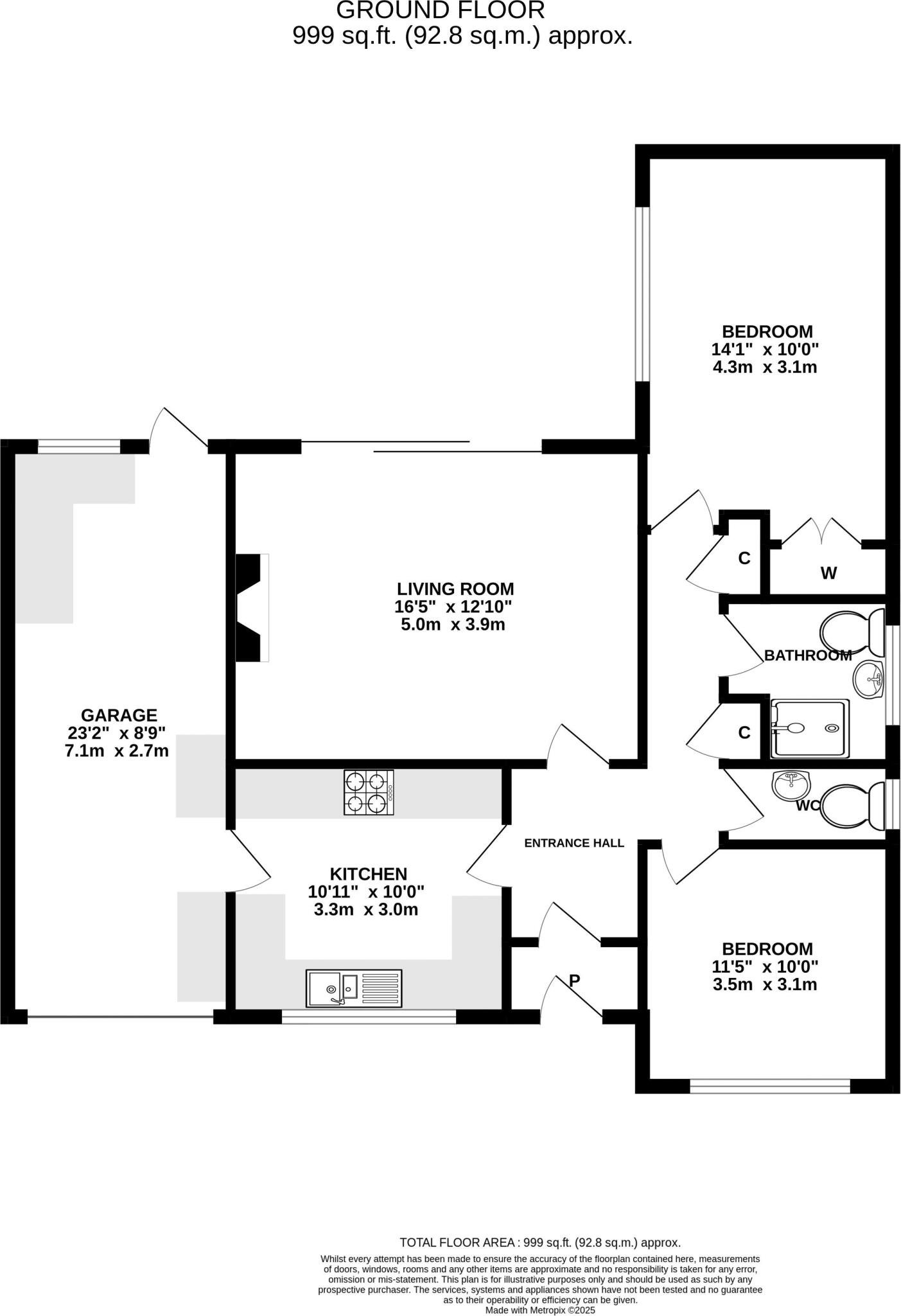
A well maintained 2 bedroom bungalow with driveway & garage, coming to the market with no onward chain located in Harborne. Accommodation in brief: Entrance porch, hallway, kitchen, living room, bedroom 1 with built in wardrobes, bedroom 2, house shower room, guest WC, garage, driveway, privat...
Property Oracle says ..
Therefore, we give this property 6 / 10. *Disclaimer: This is our option and does constitute a recommendation or financial advice. Do your own research. *
- Price
- 5
- Condition
- 6
- Location
- 7
- Land
- 7
- Bedrooms
- 2
- Bathrooms
- 1
- Sqft (est)
- 999.00
The heatmap indicates the level of crime in the area. The color of the heatmap indicates the crime severity and recency.
Metrics Year-on-Year
- Average area value
- 343,500.00 £Decreased by 10.23 %
- Est sale value
- 300,699.00 £Increased by 62.70 %
- Average area rental value
- 1,207.00 £/moDecreased by 5.18 %
- Est letting value
- 999.00 £/mo
- Est rental Yield
- 4.22 %Increased by 5.76 %
- Crime Rate
- 1.00 %Unchanged by 0.00 %
from 382,656.00 £
from 184,815.00 £
from 1,273.00 £/mo
from 0.00 £/mo
from 3.99 %
from 1.00 %
Agent Activity
Michelle & Co created the listing.
Nearby Schools
| Name | Type | Ofsted | Distance |
|---|---|---|---|
| Queen Alexandra College | Special Post 16 Institution | Good | 0.42 KM |
| Baskerville School | Foundation Special School | Good | 0.57 KM |
| Our Lady Of Fatima Catholic Primary School | Academy Converter | 0.94 KM | |
| Lordswood Girls' School And Sixth Form Centre | Academy Converter | 0.98 KM | |
| Keystone Children'S Centre | Children's Centre | 1.10 KM |
Images
Nearby Streets
| Name | Average Price | Average Sqft | Distance |
|---|---|---|---|
| Oak Close | £ 445,000 | 0 | 0.00 KM |
| Grosvenor Road | £ 469,618 | 0 | 0.00 KM |
| Wood Lane | £ 433,750 | 0 | 0.00 KM |
| Beech Road | £ 165,000 | 0 | 0.00 KM |
| Woodville Road | £ 980,000 | 0 | 0.00 KM |
Nearby Transport
| Name | NLC | TLC | Distance |
|---|---|---|---|
| University (Birmingham) | 4504 | UNI | 3.75 KM |
| Smethwick Rolfe Street | 1150 | SMR | 3.82 KM |
| Selly Oak | 1105 | SLY | 4.28 KM |
| Smethwick Galton Bridge | 1114 | SGB | 4.60 KM |
| The Hawthorns | 4523 | THW | 4.84 KM |
Nearby Listings
| Address | Price | Type | Score | Distance |
|---|---|---|---|---|
| Oak Close, Birmingham | £ 375,000 | BUY | 6 / 10 | 0.00 KM |
| Oak Close, Harborne, Birmingham | £ 375,000 | BUY | 7 / 10 | 0.01 KM |
| Oak Close, Harborne | £ 400,000 | BUY | 7 / 10 | 0.04 KM |
| Grosvenor Road, Harborne, Birmingham, B17 | £ 325,000 | BUY | 5 / 10 | 0.07 KM |
| Grosvenor Road, Harborne, Birmingham, B17 9AL | £ 450,000 | BUY | 7 / 10 | 0.08 KM |
Nearby Properties
| Address | Price | Distance |
|---|---|---|
| 1 Oak Close | £ 295,000 | 0.01 KM |
| 28 Oak Close | £ 195,000 | 0.01 KM |
| 42 Oak Close | £ 235,000 | 0.01 KM |
| 34 Oak Close | £ 255,000 | 0.01 KM |
| 9 Oak Close | £ 205,000 | 0.01 KM |