Peach says ..
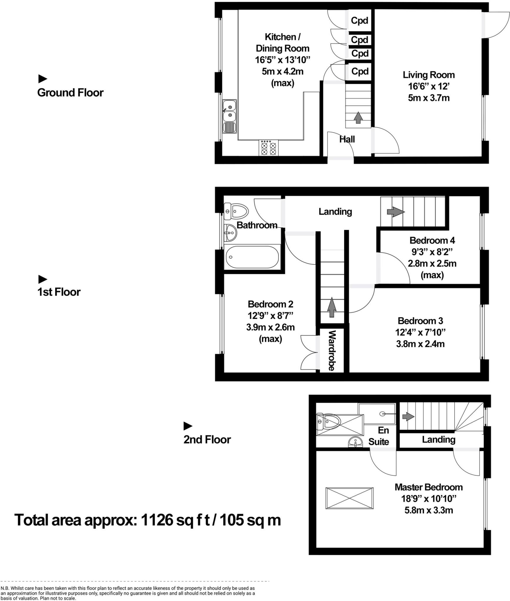
Laid out over three generous floors, this four-bed semi doesn’t waste a single inch.
Property Oracle says ..
This property is a 4-bedroom, 2-bathroom semi-detached house located in Haydon Wick, Swindon. The property benefits from a modern kitchen and bathrooms, and appears well-maintained based on the provided images. The location is positive, with nearby schools (Haydonleigh Primary School and St Francis Cofe Primary School are within a kilometer, and both have good Ofsted ratings) and transport links (Swindon train station is approximately 4.43km away). The property also includes a garden. The list price of £325,000 is slightly below the average price for the area (£452,128), but significantly higher than other nearby properties on Bayleaf Avenue. However, the lack of sqft data for nearby properties makes a direct comparison difficult. Considering the property’s modern condition, location, and inclusion of a garden, the price may be reasonable. Further investigation into comparable properties with similar sqft and features would be beneficial to confirm.
Therefore, we give this property 7 / 10. *Disclaimer: This is our option and does constitute a recommendation or financial advice. Do your own research. *
- Price
- 7
- Condition
- 9
- Location
- 8
- Land
- 7
- Bedrooms
- 4
- Bathrooms
- 2
- Sqft (est)
- 963.37
- Lot (est)
- 1,130.21
The heatmap indicates the level of crime in the area. The color of the heatmap indicates the crime severity and recency.
Metrics Year-on-Year
- Average area value
- 481,967.00 £Increased by 28.07 %
- Est sale value
- 385,348.00 £Decreased by 15.97 %
- Average area rental value
- 1,254.00 £/moIncreased by 10.97 %
- Est letting value
- 963.37 £/moUnchanged by 0.00 %
- Est rental Yield
- 3.12 %Decreased by 13.33 %
- Crime Rate
- 3.00 %Unchanged by 0.00 %
Agent Activity
Peach created the listing.
Nearby Schools
| Name | Type | Ofsted | Distance |
|---|---|---|---|
| Haydonleigh Primary School | Community School | Good | 0.79 KM |
| St Francis Cofe Primary School | Voluntary Aided School | Outstanding | 0.82 KM |
| Orchid Vale Primary School | Academy Sponsor Led | 0.86 KM | |
| Haydon Wick Primary School | Academy Converter | 1.05 KM | |
| Moredon Children'S Centre | Children's Centre | 1.34 KM |
Images
Nearby Streets
| Name | Average Price | Average Sqft | Distance |
|---|---|---|---|
| Westfield Way | £ 0 | 0 | 0.00 KM |
| Sage Close | £ 0 | 0 | 0.00 KM |
| Honeysuckle Close | £ 0 | 0 | 0.00 KM |
| Coppice Close | £ 0 | 0 | 0.00 KM |
| Bryant Road | £ 0 | 0 | 0.00 KM |
Nearby Transport
| Name | NLC | TLC | Distance |
|---|---|---|---|
| Swindon (Wilts) | 3333 | SWI | 4.43 KM |
Nearby Listings
| Address | Price | Type | Score | Distance |
|---|---|---|---|---|
| Bayleaf Avenue, Swindon, SN2 | £ 325,000 | BUY | 7 / 10 | 0.00 KM |
| Bryony Way, Swindon | £ 260,000 | BUY | 7 / 10 | 0.08 KM |
| Bayleaf Avenue, Swindon | £ 300,000 | BUY | 6 / 10 | 0.09 KM |
| Alder Close, Woodhall Park, Swindon, SN2 | £ 190,000 | BUY | 6 / 10 | 0.09 KM |
| Alder Close, Woodhall Park, Swindon, SN2 | £ 180,000 | BUY | Unknown | 0.09 KM |
Nearby Properties
| Address | Price | Distance |
|---|---|---|
| 43 Bayleaf Avenue | £ 95,000 | 0.01 KM |
| 69 Bayleaf Avenue | £ 167,500 | 0.01 KM |
| 77 Bayleaf Avenue | £ 167,000 | 0.01 KM |
| 76 Bayleaf Avenue | £ 130,000 | 0.01 KM |
| 60 Bayleaf Avenue | £ 207,000 | 0.01 KM |