Foden Property Ltd says ..
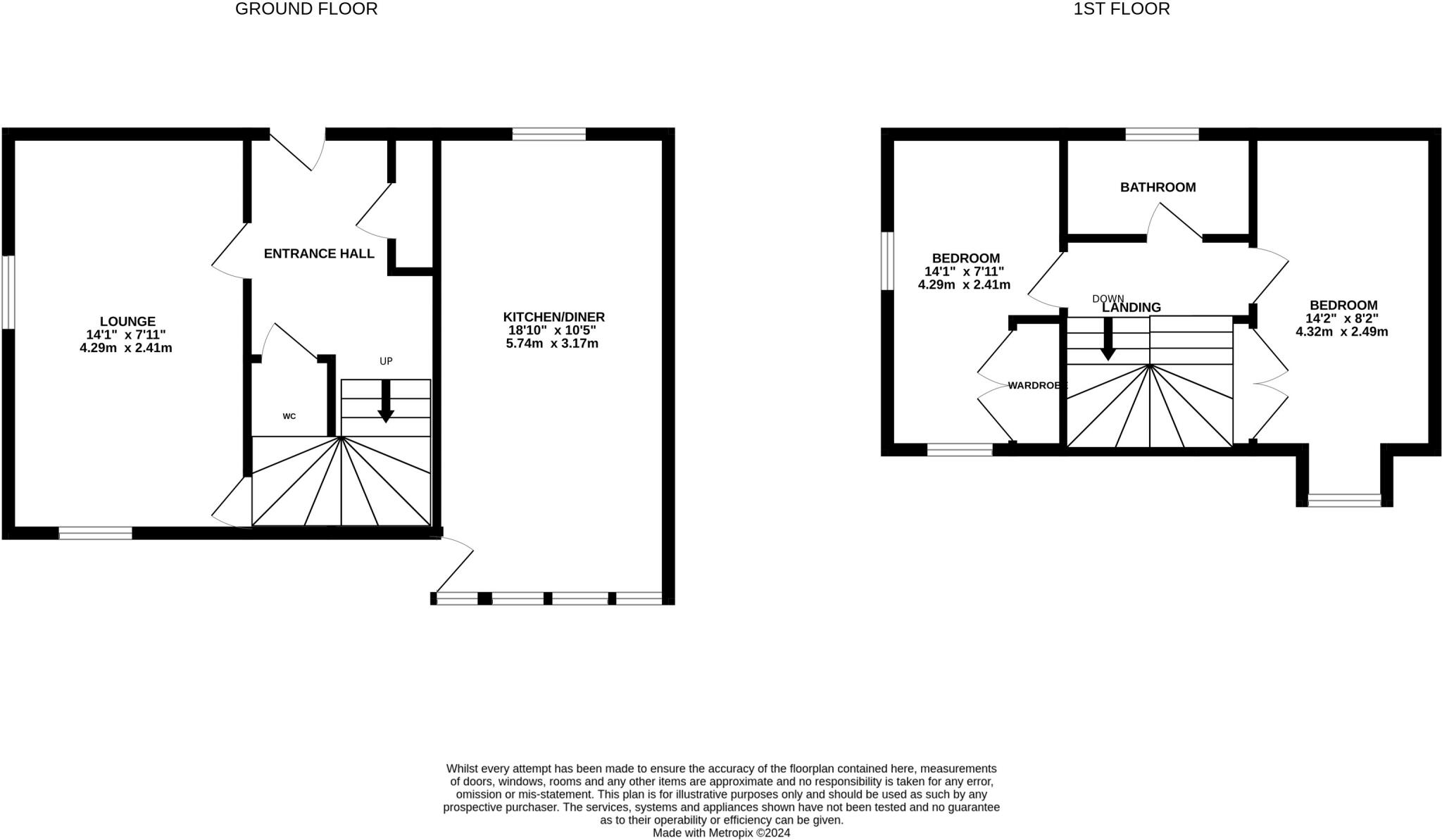
**STUNNING LOCATION WITH FABULOUS VIEWS ** Individually, Architecturally designed property sitting in this IDYLIC location and offering well appointed accommodation to include in brief : Open plan dining kitchen, sitting room and ground floor cloaks complete the ground floor whilst the first floo...
Property Oracle says ..
Therefore, we give this property 7 / 10. *Disclaimer: This is our option and does constitute a recommendation or financial advice. Do your own research. *
- Price
- 7
- Condition
- 9
- Location
- 8
- Land
- 7
- Bedrooms
- 2
- Bathrooms
- 2
- Sqft (est)
- 534.36
The heatmap indicates the level of crime in the area. The color of the heatmap indicates the crime severity and recency.
Metrics Year-on-Year
- Average area value
- 382,875.00 £Decreased by 13.12 %
- Est sale value
- 276,798.48 £Decreased by 4.43 %
- Average area rental value
- 1,824.00 £/moIncreased by 43.40 %
- Est letting value
- 1,068.72 £/moIncreased by 100.00 %
- Est rental Yield
- 5.72 %Increased by 65.32 %
- Crime Rate
- 1.00 %Unchanged by 0.00 %
from 440,686.00 £
from 289,623.12 £
from 1,272.00 £/mo
from 534.36 £/mo
from 3.46 %
from 1.00 %
Agent Activity
Foden Property Ltd created the listing.
Nearby Schools
| Name | Type | Ofsted | Distance |
|---|---|---|---|
| Broseley Children'S Centre Delivery Point | Children's Centre Linked Site | 1.36 KM | |
| Broseley Ce Primary School | Voluntary Controlled School | Good | 1.36 KM |
| Haberdashers' Abraham Darby | Academy Sponsor Led | Requires improvement | 1.38 KM |
| Woodlands Primary School | Community School | Good | 1.38 KM |
| Aspris Telford School | Other Independent Special School | Good | 1.39 KM |
Images
Nearby Streets
| Name | Average Price | Average Sqft | Distance |
|---|---|---|---|
| Saint Luke's Road | £ 299,950 | 0 | 0.00 KM |
| Woodlands Road | £ 0 | 0 | 0.00 KM |
| Belle Vue Road | £ 0 | 0 | 0.00 KM |
| Chapel Road | £ 405,000 | 0 | 0.00 KM |
| B4373 | £ 0 | 0 | 0.00 KM |
Nearby Transport
| Name | NLC | TLC | Distance |
|---|---|---|---|
| Telford Central | 4691 | TFC | 7.40 KM |
| Oakengates | 4689 | OKN | 8.06 KM |
| Wellington (Shropshire) | 4690 | WLN | 9.12 KM |
Nearby Listings
| Address | Price | Type | Score | Distance |
|---|---|---|---|---|
| 4 Fenn Way, Buildwas | £ 595,000 | BUY | 6 / 10 | 0.00 KM |
| 3 Fenn Way, Buildwas | £ 290,000 | BUY | 7 / 10 | 0.00 KM |
| 1, Fenn Way | £ 285,000 | BUY | 7 / 10 | 0.00 KM |
| Waterloo Street, Ironbridge | £ 299,950 | BUY | 6 / 10 | 0.01 KM |
| 9 Madeley Road, Ironbridge, Telford, Shropshire, TF8 7PP | £ 200,000 | BUY | 6 / 10 | 0.04 KM |
Nearby Properties
| Address | Price | Distance |
|---|---|---|
| 54 Waterloo Street | £ 220,000 | 0.02 KM |
| Birch House | £ 230,000 | 0.02 KM |
| 56a Waterloo Street | £ 160,000 | 0.02 KM |
| Riversmead | £ 175,000 | 0.02 KM |
| 56 Waterloo Street | £ 190,000 | 0.02 KM |