Thurrock Close, Eastbourne
HO

Thurrock Close, Eastbourne

By Home & Castle

£ 650,000

Reviews

3 out of 5 stars

Home & Castle says ..

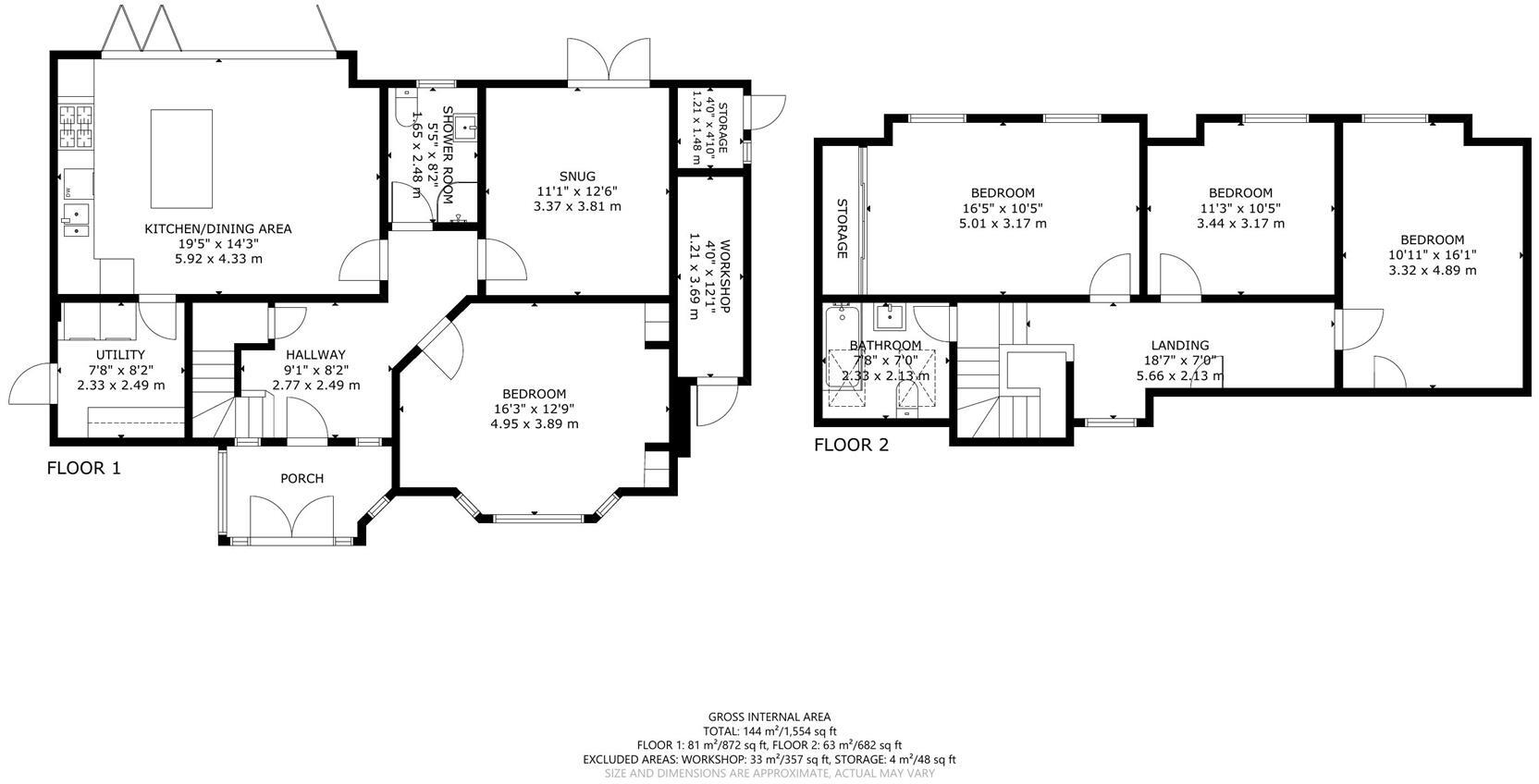
Direct views of The South Downs can be enjoyed from this four bedroom house which is located in a cul de sac in the popular Lower Willingdon area. The generous southerly facing garden and modern open plan living space are particular highlights. Having been the subject of a comprehensive refurbish...

Property Oracle says ..

This property is a 4-bedroom, 2-bathroom detached house located in Lower Willingdon, Eastbourne. The house has been recently updated and is in excellent condition, featuring a modern kitchen and bathrooms. There is a substantial garden, which is a significant feature. The location is good, with nearby schools and transportation links. However, the list price is significantly higher than the average price per square foot for the area. This may be due to the property’s size, condition, and desirable features such as the garden. More information on the plot size would be beneficial in providing a more complete analysis.

Therefore, we give this property 7 / 10. *Disclaimer: This is our option and does constitute a recommendation or financial advice. Do your own research. *

Price
4
Condition
9
Location
7
Land
8
Bedrooms
4
Bathrooms
2
Sqft (est)
1,383.70

The heatmap indicates the level of crime in the area. The color of the heatmap indicates the crime severity and recency.

Metrics Year-on-Year

Average area value
1,332,494.00 £
Increased by 19.68 %
from 1,113,335.00 £
Est sale value
1,931,645.20 £
Increased by 164.90 %
from 729,209.90 £
Average area rental value
1,800.00 £/mo
Decreased by 54.11 %
from 3,922.00 £/mo
Est letting value
1,383.70 £/mo
Unchanged by 0.00 %
from 1,383.70 £/mo
Est rental Yield
1.62 %
Decreased by 61.70 %
from 4.23 %
Crime Rate
5.00 %
Unchanged by 0.00 %
from 5.00 %

Agent Activity

  • Home & Castle created the listing.

Nearby Schools

NameTypeOfstedDistance
Willingdon Primary SchoolCommunity SchoolRequires improvement0.77 KM
Willingdon Community SchoolCommunity SchoolGood0.96 KM
Polegate Primary SchoolCommunity SchoolOutstanding1.77 KM
Oakwood Primary AcademyAcademy Sponsor LedSpecial Measures2.07 KM
The Lindfield SchoolAcademy Special ConverterOutstanding2.22 KM

Images

Rear Garden Downland Views Open Plan Space Entrance Hall Entrance Hall Open Plan Space Breakfast Bar Kitchen Utility Room Snug Snug Shower Room Reception Room/Bedroom Reception Room/Bedroom Reception Room/Bedroom Landing Landing Bathroom Bedroom One Bedroom One Bedroom Two Bedroom Two Bedroom Three Bedroom Three Garden Garden Rear Aspect Shared Driveway Front aspect Bathroom

Nearby Streets

NameAverage PriceAverage SqftDistance
The Crescent £ 399,95000.00 KM
Windmill Place £ 000.00 KM
Gloucester Close £ 000.00 KM
The Croft £ 000.00 KM
Exeter Close £ 000.00 KM

Nearby Transport

NameNLCTLCDistance
Polegate5455PLG1.38 KM
Hampden Park (Sussex)5450HMD3.65 KM
Eastbourne5448EBN5.71 KM
Pevensey And Westham5461PEV8.40 KM
Berwick (Sussex)5323BRK9.81 KM

Nearby Listings

AddressPriceTypeScoreDistance
Thurrock Close, Eastbourne £ 650,000BUY7 / 100.00 KM
Eastbourne Road, Eastbourne, BN20 £ 675,000BUY7 / 100.06 KM
Eastbourne Road, Willingdon, BN20 9NG £ 640,000BUY7 / 100.06 KM
Eastbourne Road, Willingdon, Eastbourne £ 435,000BUY7 / 100.07 KM
Eastbourne Road, Polegate, East Sussex, BN20 £ 425,000BUY7 / 100.12 KM

Nearby Properties

AddressPriceDistance
121a Eastbourne Road £ 250,0000.07 KM
119a Eastbourne Road £ 370,0000.07 KM
117a Eastbourne Road £ 70,0000.07 KM
117 Eastbourne Road £ 450,0000.07 KM
123a Eastbourne Road £ 305,0000.07 KM