Yorkshire's Finest says ..
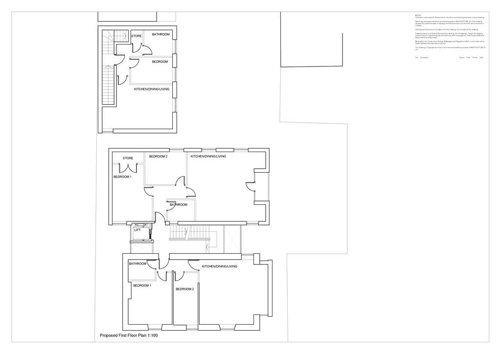
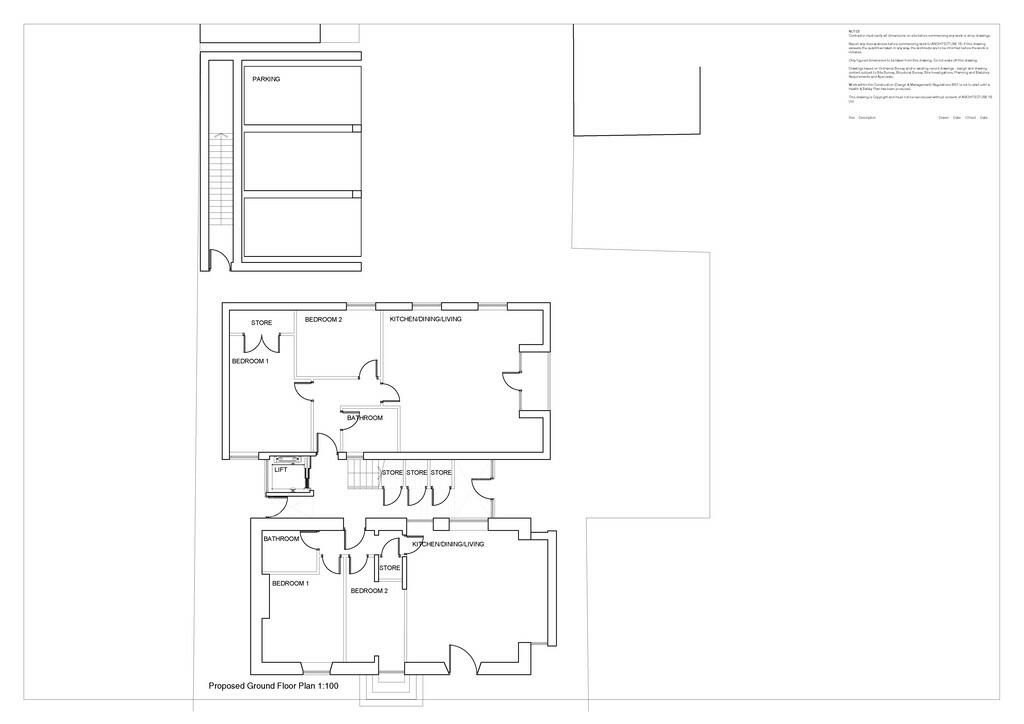
An exciting opportunity to purchase an existing building with full planning permission to create 8 new apartments in Ossett.
Property Oracle says ..
This property on Queen Street, Ossett, presents a development opportunity rather than a ready-to-move-in residence. The existing building is described as having full planning permission to convert it into eight apartments. The current state of the property requires substantial renovation. The images reveal a somewhat dilapidated exterior and an overgrown garden. While the location in Ossett benefits from access to amenities, schools, and transportation links, the condition of the property significantly impacts its immediate livability. The surrounding area features a mix of property types and prices, but the lack of specific square footage information for the subject property, and indeed for several of the comparables, makes it difficult to determine precisely how the list price of £425,000 stacks up against local market values. The potential return on investment from developing the eight apartments is a key consideration, as is the associated cost of construction and any other potential unforeseen issues that could arise during the development. This is a project for an experienced investor or developer comfortable with a higher-risk, high-reward venture. Further due diligence would be required to fully assess the financial viability of this development project.
Therefore, we give this property 5 / 10. *Disclaimer: This is our option and does constitute a recommendation or financial advice. Do your own research. *
- Price
- 6
- Condition
- 4
- Location
- 7
- Land
- 5
- Bedrooms
- 0
- Bathrooms
- 0
The heatmap indicates the level of crime in the area. The color of the heatmap indicates the crime severity and recency.
Metrics Year-on-Year
- Average area value
- 380,000.00 £Increased by 48.00 %
- Average area rental value
- 983.00 £/moIncreased by 15.11 %
- Est rental Yield
- 3.10 %Decreased by 22.31 %
- Crime Rate
- 8.00 %Unchanged by 0.00 %
Agent Activity
Yorkshire's Finest created the listing.
Nearby Schools
| Name | Type | Ofsted | Distance |
|---|---|---|---|
| Dimple Well Infant School And Nursery | Foundation School | Outstanding | 0.31 KM |
| Ossett Southdale Church Of England Voluntary Controlled Junior School | Voluntary Controlled School | Good | 0.41 KM |
| Ossett Holy Trinity Cofe Va Primary School | Voluntary Aided School | Outstanding | 0.70 KM |
| Ossett Academy And Sixth Form College | Academy Converter | Good | 0.85 KM |
| St Ignatius Catholic Primary School | Academy Converter | Good | 1.07 KM |
Images
Nearby Streets
| Name | Average Price | Average Sqft | Distance |
|---|---|---|---|
| Belgrave Avenue | £ 0 | 0 | 0.00 KM |
| Ventnor Drive | £ 0 | 0 | 0.00 KM |
| Field Lane | £ 225,000 | 0 | 0.00 KM |
| Wells Court | £ 325,000 | 0 | 0.00 KM |
| The Willows | £ 0 | 0 | 0.00 KM |
Nearby Transport
| Name | NLC | TLC | Distance |
|---|---|---|---|
| Batley | 8484 | BTL | 6.01 KM |
| Dewsbury | 8326 | DEW | 6.10 KM |
| Wakefield Westgate | 8591 | WKF | 8.22 KM |
| Morley | 8504 | MLY | 8.24 KM |
| Ravensthorpe | 8519 | RVN | 8.34 KM |
Nearby Listings
| Address | Price | Type | Score | Distance |
|---|---|---|---|---|
| Queen Street, Ossett | £ 425,000 | BUY | 5 / 10 | 0.00 KM |
| Prospect Road, Ossett | £ 300,000 | BUY | Unknown | 0.11 KM |
| Dimplewells Road, Ossett | £ 170,000 | BUY | 7 / 10 | 0.11 KM |
| Dimplewells Road, Ossett | £ 178,000 | BUY | 7 / 10 | 0.11 KM |
| Prospect Road, Ossett | £ 365,000 | BUY | 5 / 10 | 0.12 KM |
Nearby Properties
| Address | Price | Distance |
|---|---|---|
| 3 Prospect Road | £ 355,000 | 0.11 KM |
| 4a Prospect Road | £ 206,000 | 0.11 KM |
| 7 Prospect Road | £ 140,000 | 0.12 KM |
| 14 Prospect Road | £ 58,000 | 0.12 KM |
| 8 Prospect Road | £ 200,000 | 0.12 KM |