Broadstone Park Road, Livermead, Torquay,
WO

Broadstone Park Road, Livermead, Torquay,

By Woods Estate Agents & Auctioneers

£ 625,000

Woods Estate Agents & Auctioneers says ..

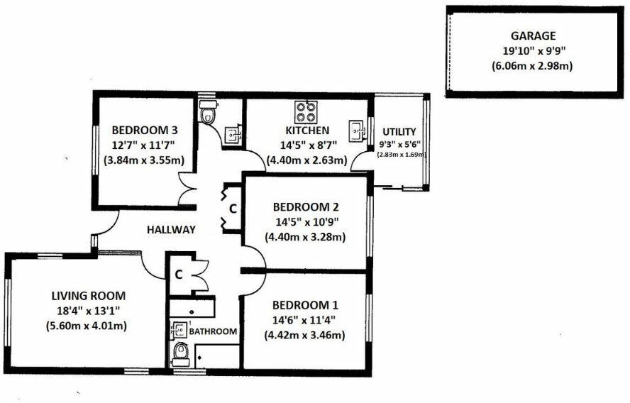
A superb and spacious three double bedroom detached bungalow, situated in the sought after location of Livermead, benefitting from Harbour Views from the front, private gardens, driveway parking and garage, whilst offering potential for extension (subject to planning permissions and consents)

Bedrooms
3
Bathrooms
2

The heatmap indicates the level of crime in the area. The color of the heatmap indicates the crime severity and recency.

Metrics Year-on-Year

Average area value
380,895.00 £
Decreased by 18.46 %
from 467,114.00 £
Average area rental value
1,058.00 £/mo
Decreased by 13.42 %
from 1,222.00 £/mo
Est rental Yield
3.33 %
Increased by 6.05 %
from 3.14 %
Crime Rate
0.00 %
from 0.00 %

Agent Activity

  • Woods Estate Agents & Auctioneers created the listing.

Nearby Schools

NameTypeOfstedDistance
Preston Primary SchoolAcademy Sponsor LedGood0.51 KM
Cockington Children'S CentreChildren's Centre Linked Site1.51 KM
Cockington Primary SchoolAcademy ConverterGood1.53 KM
Our Lady Of The Angels Catholic Primary SchoolAcademy ConverterRequires improvement1.82 KM
Sherwell Valley Primary SchoolCommunity SchoolGood1.95 KM

Images

Living Room dji_fly_20240711_120344 PM_409_1720713308184_photo Front Deck Bedroom 1 Bath and Shower Room Bedroom 2 Bedroom 3 Front Garden Entrance Hall Cloakroom Rear Garden dji_fly_20240711_120414 PM_410_1720713307971_photo dji_fly_20240711_120504 PM_412_1720713307454_photo dji_fly_20240711_120222 PM_407_1720713308699_photo Living Room dji_fly_20240711_120152 PM_406_1720713308938_photo Kitchen dji_fly_20240711_120330 PM_408_1720713308423_photo

Nearby Streets

NameAverage PriceAverage SqftDistance
Cotswold Close £ 399,95000.00 KM
Meadow Road £ 000.00 KM
Torbay Road £ 000.00 KM
Headland Road £ 000.00 KM
Court Road £ 595,00000.00 KM

Nearby Transport

NameNLCTLCDistance
Torquay3434TQY1.35 KM
Torre3432TRR1.89 KM
Paignton3427PGN2.86 KM
Newton Abbot3426NTA9.26 KM

Nearby Listings

AddressPriceTypeScoreDistance
Broadstone Park Road, Livermead, Torquay, £ 625,000BUYUnknown0.00 KM
Broadstone Park Road, Livermead, Torquay, Devon £ 450,000BUY6 / 100.10 KM
Lady Park Road, Torquay, TQ2 £ 449,999BUYUnknown0.12 KM
Livermead, Torquay £ 795,000BUY6 / 100.14 KM
Lady Park Road, Torquay, TQ2 £ 535,000BUYUnknown0.15 KM

Nearby Properties

AddressPriceDistance
48 Broadstone Park Road £ 273,0000.10 KM
44 Broadstone Park Road £ 250,0000.10 KM
169 Broadstone Park Road £ 510,0000.10 KM
29 Broadstone Park Road £ 313,0000.10 KM
50 Broadstone Park Road £ 134,0000.10 KM