Howard Drive, York, North Yorkshire, YO30
By Carter Jonas
£ 225,000
Reviews
3 out of 5 stars
Carter Jonas says ..
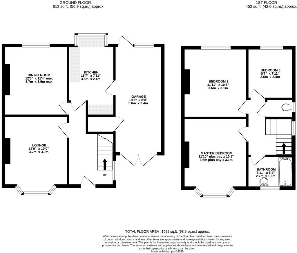
For Sale by Modern Method of Auction Three-bed semi-detached property, requiring modernisation. Superb location, close to Shipton Road and offering easy access to the city centre and ring road.
Property Oracle says ..
This is a semi-detached property on Howard Drive, York, in the Rawcliffe & Clifton Without locality. The property requires extensive renovation, as evidenced by the dated interior, worn carpets, and overgrown garden. However, it benefits from a good location with nearby schools and transportation links. The asking price of £225,000 is considerably lower than the average property price in the area, reflecting the need for renovation. This presents an opportunity for buyers willing to invest in upgrading the property to increase its value. The property includes a garden, which, once cleared, could be a significant asset.
Therefore, we give this property 6 / 10. *Disclaimer: This is our option and does constitute a recommendation or financial advice. Do your own research. *
- Price
- 9
- Condition
- 3
- Location
- 7
- Land
- 7
- Bedrooms
- 3
- Bathrooms
- 1
The heatmap indicates the level of crime in the area. The color of the heatmap indicates the crime severity and recency.
Metrics Year-on-Year
- Average area value
- 591,875.00 £Increased by 5.13 %
- Average area rental value
- 1,194.00 £/moDecreased by 3.63 %
- Est rental Yield
- 2.42 %Decreased by 8.33 %
- Crime Rate
- 10.00 %Unchanged by 0.00 %
Agent Activity
Carter Jonas created the listing.
Nearby Schools
| Name | Type | Ofsted | Distance |
|---|---|---|---|
| Clifton With Rawcliffe Primary School | Academy Converter | Good | 0.53 KM |
| Lakeside Primary Academy | Academy Converter | 1.37 KM | |
| Vale Of York Academy | Academy Sponsor Led | Good | 1.85 KM |
| Skelton Primary School | Academy Converter | 2.33 KM | |
| Poppleton Road Primary School | Community School | Good | 2.35 KM |
Images
Nearby Streets
| Name | Average Price | Average Sqft | Distance |
|---|---|---|---|
| Coniston Close | £ 330,000 | 0 | 0.00 KM |
| St. James Close Footpath | £ 375,000 | 0 | 0.00 KM |
| Hatfield Close | £ 0 | 0 | 0.00 KM |
| St. James Close | £ 0 | 0 | 0.00 KM |
| Hurricane Way | £ 0 | 0 | 0.00 KM |
Nearby Transport
| Name | NLC | TLC | Distance |
|---|---|---|---|
| Poppleton | 8254 | POP | 3.74 KM |
| York | 8263 | YRK | 3.79 KM |
Nearby Listings
| Address | Price | Type | Score | Distance |
|---|---|---|---|---|
| Howard Drive, York, North Yorkshire, YO30 | £ 225,000 | BUY | 6 / 10 | 0.00 KM |
| Howard Drive, York, YO30 | £ 575,000 | BUY | 7 / 10 | 0.03 KM |
| Howard Drive, York | £ 475,000 | BUY | 8 / 10 | 0.07 KM |
| Howard Drive, York | £ 450,000 | BUY | 7 / 10 | 0.08 KM |
| Coniston Close, York, North Yorkshire, YO30 5TF | £ 400,000 | BUY | 7 / 10 | 0.09 KM |
Nearby Properties
| Address | Price | Distance |
|---|---|---|
| 10 Howard Drive | £ 490,000 | 0.01 KM |
| 8 Howard Drive | £ 197,000 | 0.01 KM |
| 24 Howard Drive | £ 194,000 | 0.01 KM |
| 30 Howard Drive | £ 268,000 | 0.01 KM |
| 16 Howard Drive | £ 206,000 | 0.01 KM |