LE
Kincardine Drive, Bletchley, Milton Keynes
By Leaders Sales
£ 535,000
Reviews
3 out of 5 stars
Leaders Sales says ..
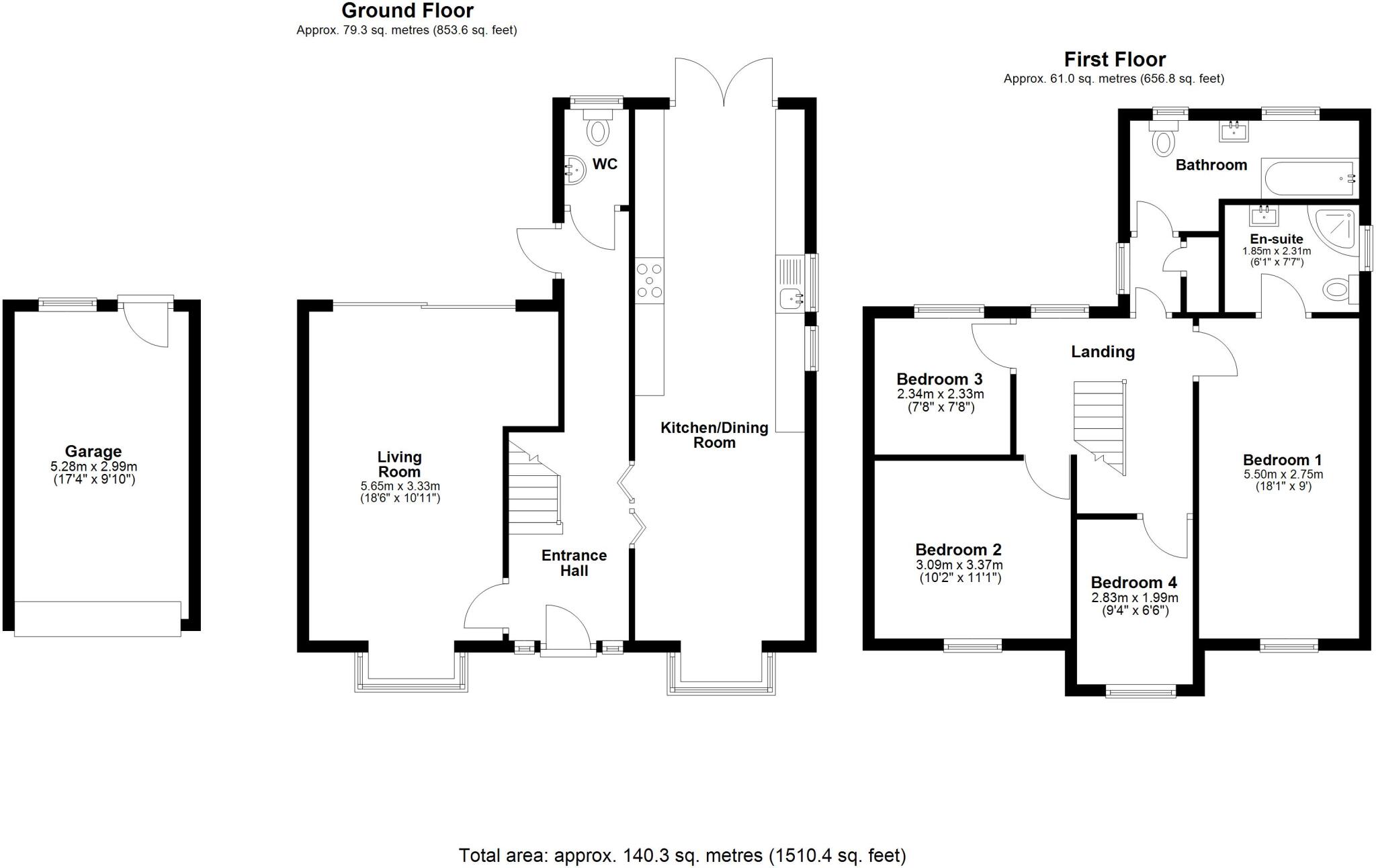
This incredibly well-presented family home boasts spacious open-plan living, a modern kitchen, en suite to the master bedroom, private rear garden, off-street parking for up to four vehicles, plus a single garage. Located in a peaceful cul-de-sac, this home is ideal for families seeking both comf...
Property Oracle says ..
Therefore, we give this property 7 / 10. *Disclaimer: This is our option and does constitute a recommendation or financial advice. Do your own research. *
- Price
- 5
- Condition
- 8
- Location
- 7
- Land
- 8
- Bedrooms
- 4
- Bathrooms
- 2
- Sqft (est)
- 766.65
The heatmap indicates the level of crime in the area. The color of the heatmap indicates the crime severity and recency.
Metrics Year-on-Year
- Average area value
- 451,286.00 £Increased by 32.54 %
- Est sale value
- 240,728.10 £Decreased by 13.50 %
- Average area rental value
- 1,410.00 £/moDecreased by 12.04 %
- Est letting value
- 0.00 £/moDecreased by 100.00 %
- Est rental Yield
- 3.75 %Decreased by 33.63 %
- Crime Rate
- 2.00 %Unchanged by 0.00 %
from 340,490.00 £
from 278,293.95 £
from 1,603.00 £/mo
from 766.65 £/mo
from 5.65 %
from 2.00 %
Agent Activity
Leaders Sales created the listing.
Nearby Schools
| Name | Type | Ofsted | Distance |
|---|---|---|---|
| Cold Harbour Church Of England School | Voluntary Controlled School | Requires improvement | 0.27 KM |
| Barleyhurst Park Primary | Community School | Good | 0.65 KM |
| Romans Field School | Community Special School | Good | 0.97 KM |
| Abbeys Primary School | Community School | Good | 1.00 KM |
| Daisychain Children'S Centre | Children's Centre | 1.02 KM |
Images
Nearby Streets
| Name | Average Price | Average Sqft | Distance |
|---|---|---|---|
| Highland Close | £ 587,498 | 0 | 0.00 KM |
| Parkside | £ 0 | 0 | 0.00 KM |
| Denbigh Hall Drive | £ 0 | 0 | 0.00 KM |
| Derwent Drive | £ 0 | 0 | 0.00 KM |
| Taunton Deane redway | £ 0 | 0 | 0.00 KM |
Nearby Transport
| Name | NLC | TLC | Distance |
|---|---|---|---|
| Bletchley | 1360 | BLY | 2.56 KM |
| Milton Keynes Central | 1378 | MKC | 3.54 KM |
| Fenny Stratford | 1377 | FEN | 4.43 KM |
| Bow Brickhill | 1381 | BWB | 6.54 KM |
| Wolverton | 1364 | WOL | 8.37 KM |
Nearby Listings
| Address | Price | Type | Score | Distance |
|---|---|---|---|---|
| Kincardine Drive, Bletchley, Milton Keynes | £ 535,000 | BUY | 7 / 10 | 0.00 KM |
| Kincardine Drive, Bletchley, Milton Keynes | £ 425,000 | BUY | 7 / 10 | 0.01 KM |
| Highland Close, Bletchley, Milton Keynes, Buckinghamshire, MK3 | £ 699,995 | BUY | 7 / 10 | 0.09 KM |
| Parkside, Furzton, Milton Keynes | £ 350,000 | BUY | Unknown | 0.12 KM |
| Highland Close, Bletchley, Milton Keynes | £ 475,000 | BUY | 6 / 10 | 0.14 KM |
Nearby Properties
| Address | Price | Distance |
|---|---|---|
| 9 Peebles Place | £ 328,000 | 0.16 KM |
| 7 Peebles Place | £ 115,000 | 0.16 KM |
| 10 Peebles Place | £ 242,000 | 0.16 KM |
| 11 Peebles Place | £ 250,000 | 0.16 KM |
| 4 Peebles Place | £ 181,000 | 0.16 KM |