Bickham Park Road, Peverell, PL3 4QL
By eXp UK
£ 290,000
Reviews
3 out of 5 stars
eXp UK says ..
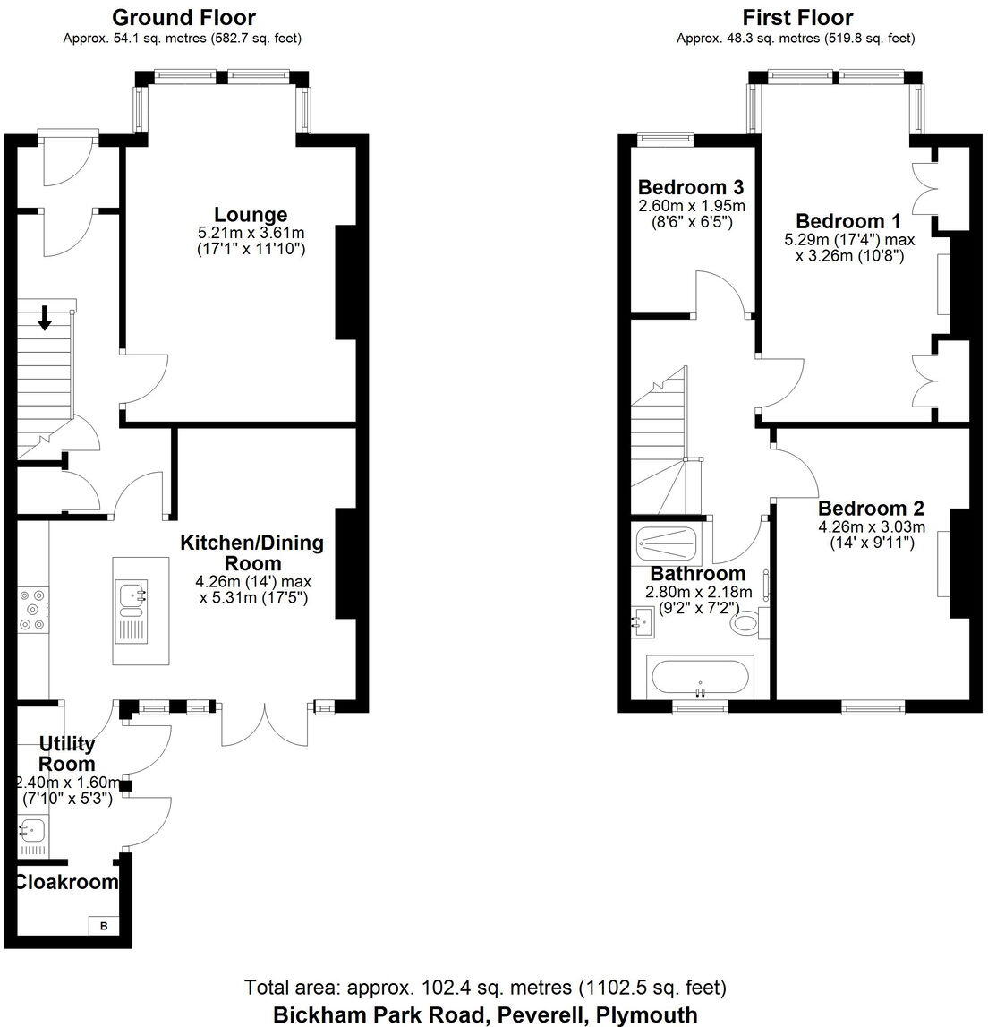
Beautiful three bedroom Edwardian home, with an exquisite open plan kitchen/dining room, large lounge, four piece bathroom & south westerly facing courtyard garden.
Property Oracle says ..
This is a 3-bedroom terraced house located on Bickham Park Road in Peverell, Plymouth. The property is listed for £290,000 by eXp UK. It features a modern kitchen and bathroom, a garden, and is conveniently located near schools and transportation. The property appears to be in good condition and has been recently renovated. The house offers 1,102.22 sqft of living space, which is above the average sqft for the area. The location is good, with access to schools and transport links.
Therefore, we give this property 7 / 10. *Disclaimer: This is our option and does constitute a recommendation or financial advice. Do your own research. *
- Price
- 7
- Condition
- 8
- Location
- 7
- Land
- 6
- Bedrooms
- 3
- Bathrooms
- 1
- Sqft (est)
- 1,102.22
The heatmap indicates the level of crime in the area. The color of the heatmap indicates the crime severity and recency.
Metrics Year-on-Year
- Average area value
- 258,177.00 £Decreased by 6.64 %
- Est sale value
- 378,061.46 £Increased by 30.92 %
- Average area rental value
- 835.00 £/moDecreased by 21.37 %
- Est letting value
- 1,102.22 £/moUnchanged by 0.00 %
- Est rental Yield
- 3.88 %Decreased by 15.84 %
- Crime Rate
- 1.00 %Unchanged by 0.00 %
Agent Activity
eXp UK created the listing.
Nearby Schools
| Name | Type | Ofsted | Distance |
|---|---|---|---|
| King'S School | Other Independent School | 0.78 KM | |
| Devonport High School For Girls | Academy Converter | Good | 0.95 KM |
| Hyde Park Junior School | Academy Converter | 1.03 KM | |
| Hyde Park Infants' School | Academy Converter | 1.07 KM | |
| Pennycross Primary School | Community School | Good | 1.08 KM |
Images
Nearby Streets
| Name | Average Price | Average Sqft | Distance |
|---|---|---|---|
| St Martin's Avenue | £ 290,000 | 0 | 0.00 KM |
| Rosedale Avenue | £ 275,000 | 0 | 0.00 KM |
| Torr Crescent | £ 475,000 | 0 | 0.00 KM |
| Recreation Road | £ 335,000 | 0 | 0.00 KM |
| St Gabriel's Avenue | £ 0 | 0 | 0.00 KM |
Nearby Transport
| Name | NLC | TLC | Distance |
|---|---|---|---|
| Plymouth | 3580 | PLY | 1.72 KM |
| Devonport | 3579 | DPT | 3.47 KM |
| Dockyard (Devonport) | 3588 | DOC | 3.84 KM |
| Keyham | 3571 | KEY | 4.06 KM |
| St Budeaux Ferry Road | 3590 | SBF | 4.92 KM |
Nearby Listings
| Address | Price | Type | Score | Distance |
|---|---|---|---|---|
| Bickham Park Road, Peverell, PL3 4QL | £ 290,000 | BUY | 7 / 10 | 0.00 KM |
| Bickham Park Road, Peverell, Plymouth. A gorgeous 3 bedroomed family home with sunny garden and character NO CHAIN! | £ 290,000 | BUY | 6 / 10 | 0.03 KM |
| Burleigh Park Road,Plymouth,PL3 4QQ | £ 450,000 | BUY | 7 / 10 | 0.04 KM |
| Burleigh Park Road, Peverell, Plymouth | £ 435,000 | BUY | 7 / 10 | 0.04 KM |
| Bickham Park Road, Plymouth | £ 365,000 | BUY | Unknown | 0.04 KM |
Nearby Properties
| Address | Price | Distance |
|---|---|---|
| 32 Bickham Park Road | £ 180,000 | 0.02 KM |
| 52 Bickham Park Road | £ 245,000 | 0.02 KM |
| 14 Bickham Park Road | £ 178,500 | 0.02 KM |
| 24 Bickham Park Road | £ 161,800 | 0.02 KM |
| 18 Bickham Park Road | £ 189,000 | 0.02 KM |