Portico says ..
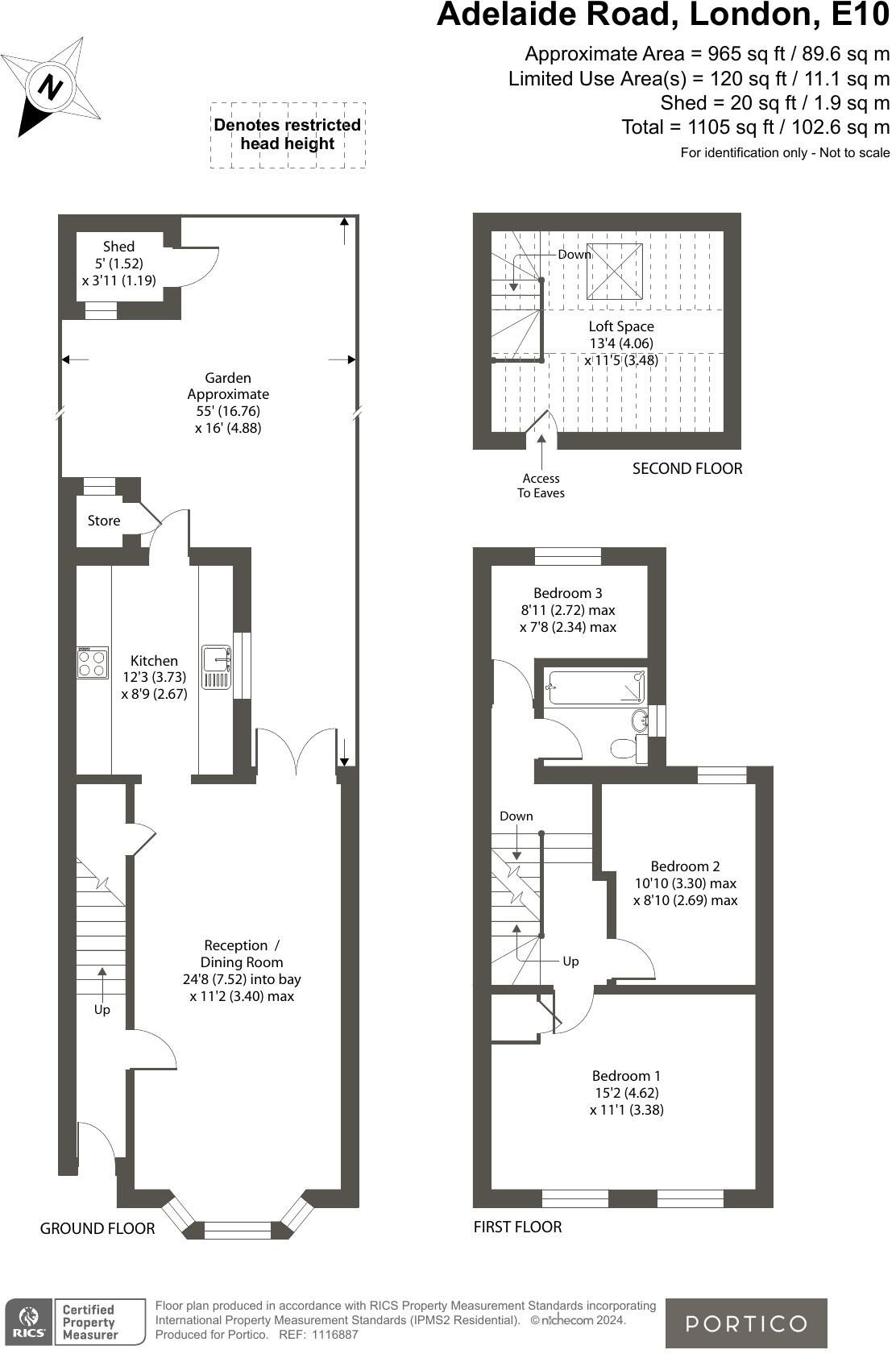
Nestled on this sought after residential street is this superb three-bedroom bay fronted family home. The property comprises of three well-proportioned bedrooms, part converted loft space, family bathroom, good size living room, modern fitted kitchen/breakfast room and garden to rear. ...
Property Oracle says ..
Therefore, we give this property 7 / 10. *Disclaimer: This is our option and does constitute a recommendation or financial advice. Do your own research. *
- Price
- 6
- Condition
- 8
- Location
- 7
- Land
- 7
- Bedrooms
- 3
- Bathrooms
- 1
- Sqft (est)
- 965.00
- Lot (est)
- 880.00
The heatmap indicates the level of crime in the area. The color of the heatmap indicates the crime severity and recency.
Metrics Year-on-Year
- Average area value
- 552,778.00 £Increased by 26.58 %
- Est sale value
- 574,175.00 £Increased by 6.82 %
- Average area rental value
- 1,835.00 £/moDecreased by 4.03 %
- Est letting value
- 965.00 £/moDecreased by 50.00 %
- Est rental Yield
- 3.98 %Decreased by 24.19 %
- Crime Rate
- 5.00 %Unchanged by 0.00 %
from 436,717.00 £
from 537,505.00 £
from 1,912.00 £/mo
from 1,930.00 £/mo
from 5.25 %
from 5.00 %
Agent Activity
Portico created the listing.
Nearby Schools
| Name | Type | Ofsted | Distance |
|---|---|---|---|
| Lantern Of Knowledge Secondary School | Other Independent School | Inadequate | 0.68 KM |
| Noor Ul Islam Primary School | Other Independent School | Good | 0.71 KM |
| Dawlish Primary School | Community School | Good | 0.81 KM |
| Newport School | Community School | Outstanding | 0.85 KM |
| Harris Academy Chobham | Academy Sponsor Led | Outstanding | 1.08 KM |
Images
Nearby Streets
| Name | Average Price | Average Sqft | Distance |
|---|---|---|---|
| Lyttelton Road | £ 0 | 0 | 0.00 KM |
| Osborne Road | £ 700,000 | 0 | 0.00 KM |
| St George's Road | £ 719,286 | 0 | 0.00 KM |
| Auckland Road | £ 0 | 0 | 0.00 KM |
| Gateway Road | £ 0 | 0 | 0.00 KM |
Nearby Transport
| Name | NLC | TLC | Distance |
|---|---|---|---|
| Leyton Midland Road | 7402 | LEM | 1.31 KM |
| Stratford International | 7222 | SFA | 1.48 KM |
| Stratford | 6969 | SRA | 1.93 KM |
| Leytonstone High Road | 7403 | LER | 2.09 KM |
| Maryland | 6970 | MYL | 2.17 KM |
Nearby Listings
| Address | Price | Type | Score | Distance |
|---|---|---|---|---|
| Adelaide Road, Leyton, London | £ 700,000 | BUY | 7 / 10 | 0.00 KM |
| Adelaide Road, Leyton, E10 | £ 850,000 | BUY | 7 / 10 | 0.05 KM |
| Adelaide Road, Leyton, E10 | £ 775,000 | BUY | 7 / 10 | 0.08 KM |
| Adelaide Road, Leyton | £ 425,000 | BUY | 5 / 10 | 0.09 KM |
| Ruckholt Road, London, E10 | £ 299,995 | BUY | 6 / 10 | 0.10 KM |
Nearby Properties
| Address | Price | Distance |
|---|---|---|
| 54 Adelaide Road | £ 530,000 | 0.06 KM |
| 27 Adelaide Road | £ 264,000 | 0.06 KM |
| 90 Adelaide Road | £ 270,000 | 0.06 KM |
| 78 Adelaide Road | £ 295,000 | 0.06 KM |
| 75 Adelaide Road | £ 215,000 | 0.06 KM |