Riverside Meadow at Newport Park, Topsham Road, Exeter, Devon, EX2
By Bruton Solutions
£ 310,000
Reviews
3 out of 5 stars
Bruton Solutions says ..
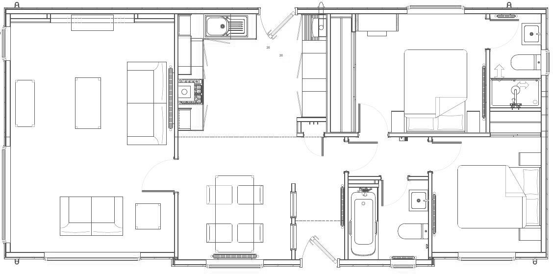
NEW 42' x 20' Prestige Residence, 2 bedrooms, en-suite, fully furnished. Exclusive residential development of just 20 homes for the over 50's. Pets welcome.
Property Oracle says ..
This property is a new, two-bedroom, two-bathroom park home located in the Riverside Meadow development at Newport Park, Topsham, Exeter. The home boasts a modern, contemporary design, evident in the high-quality fixtures, fittings, and furnishings showcased in the provided photographs. The interior is spacious and well-lit, featuring an open-plan kitchen/dining area and a comfortable living area. The images depict modern appliances and an overall luxurious feel. The property benefits from its location in Topsham, a desirable area of Exeter with river views. However, it’s important to note that this is a park home situated within a residential park; therefore, it may have specific rules and regulations associated with park home living. The limited plot size is also a key consideration. While the price is in line with comparable properties within the development, further research is necessary to confirm it’s competitiveness against alternative housing options in Topsham or Exeter. Overall, the property presents itself as a well-maintained, modern, and attractively furnished park home in a desirable location, but potential buyers should carefully weigh the advantages against the inherent constraints of park home ownership, specifically the limited land ownership.
Therefore, we give this property 6 / 10. *Disclaimer: This is our option and does constitute a recommendation or financial advice. Do your own research. *
- Price
- 7
- Condition
- 9
- Location
- 7
- Land
- 3
- Bedrooms
- 2
- Bathrooms
- 2
- Sqft (est)
- 734.07
The heatmap indicates the level of crime in the area. The color of the heatmap indicates the crime severity and recency.
Metrics Year-on-Year
- Average area value
- 528,231.00 £Increased by 3.23 %
- Est sale value
- 470,538.87 £Increased by 28.71 %
- Average area rental value
- 1,833.00 £/moIncreased by 1.05 %
- Est letting value
- 1,468.14 £/moIncreased by 100.00 %
- Est rental Yield
- 4.16 %Decreased by 2.12 %
- Crime Rate
- 14.00 %Unchanged by 0.00 %
Agent Activity
Bruton Solutions created the listing.
Nearby Schools
| Name | Type | Ofsted | Distance |
|---|---|---|---|
| Countess Wear Exeter | Children's Centre | 1.14 KM | |
| Countess Wear Community School | Community School | Requires improvement | 1.24 KM |
| Trinity Church Of England Voluntary Aided Primary And Nursery School | Voluntary Aided School | 1.25 KM | |
| The Topsham School | Community School | Good | 1.64 KM |
| Infocus School | Non-maintained Special School | Special Measures | 1.73 KM |
Images
Nearby Streets
| Name | Average Price | Average Sqft | Distance |
|---|---|---|---|
| Sleepy Hollow | £ 200,000 | 0 | 0.00 KM |
| Central Avenue | £ 260,000 | 0 | 0.00 KM |
| Riverside Meadow | £ 302,500 | 0 | 0.00 KM |
| The Chase | £ 250,000 | 0 | 0.00 KM |
| Berkeley Park | £ 0 | 0 | 0.00 KM |
Nearby Transport
| Name | NLC | TLC | Distance |
|---|---|---|---|
| Newcourt | 9589 | NCO | 1.72 KM |
| Topsham | 5758 | TOP | 2.11 KM |
| Digby And Sowton | 5753 | DIG | 2.54 KM |
| Polsloe Bridge | 3422 | POL | 4.79 KM |
| Exton | 5760 | EXN | 5.03 KM |
Nearby Listings
| Address | Price | Type | Score | Distance |
|---|---|---|---|---|
| Riverside Meadow at Newport Park, Topsham Road, Exeter, Devon, EX2 | £ 310,000 | BUY | 6 / 10 | 0.00 KM |
| Riverside Meadow at Newport Park, Topsham Road, Exeter, Devon, EX2 | £ 310,000 | BUY | 7 / 10 | 0.01 KM |
| Eastern Avenue, Newport Park, Exeter | £ 190,000 | BUY | 7 / 10 | 0.04 KM |
| Sleepy Hollow, Newport Park, Exeter | £ 200,000 | BUY | 6 / 10 | 0.07 KM |
| Riverside Meadow at Newport Park, Topsham Road, Topsham, Exeter, Devon, EX2 | £ 310,000 | BUY | 6 / 10 | 0.10 KM |
Nearby Properties
| Address | Price | Distance |
|---|---|---|
| 550 Topsham Road | £ 179,000 | 0.24 KM |
| 540 Topsham Road | £ 127,000 | 0.24 KM |
| 546 Topsham Road | £ 180,500 | 0.24 KM |
| 544 Topsham Road | £ 83,000 | 0.24 KM |
| 21 Seabrook Mews | £ 180,000 | 0.29 KM |