Plot 2, Park Avenue, Wortley, Sheffield, S35 7DR
By Fine & Country
£ 325,000
Reviews
3 out of 5 stars
Fine & Country says ..
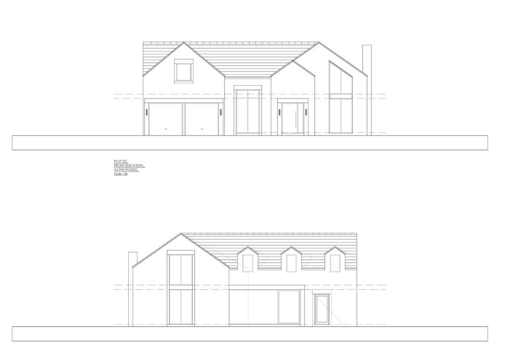
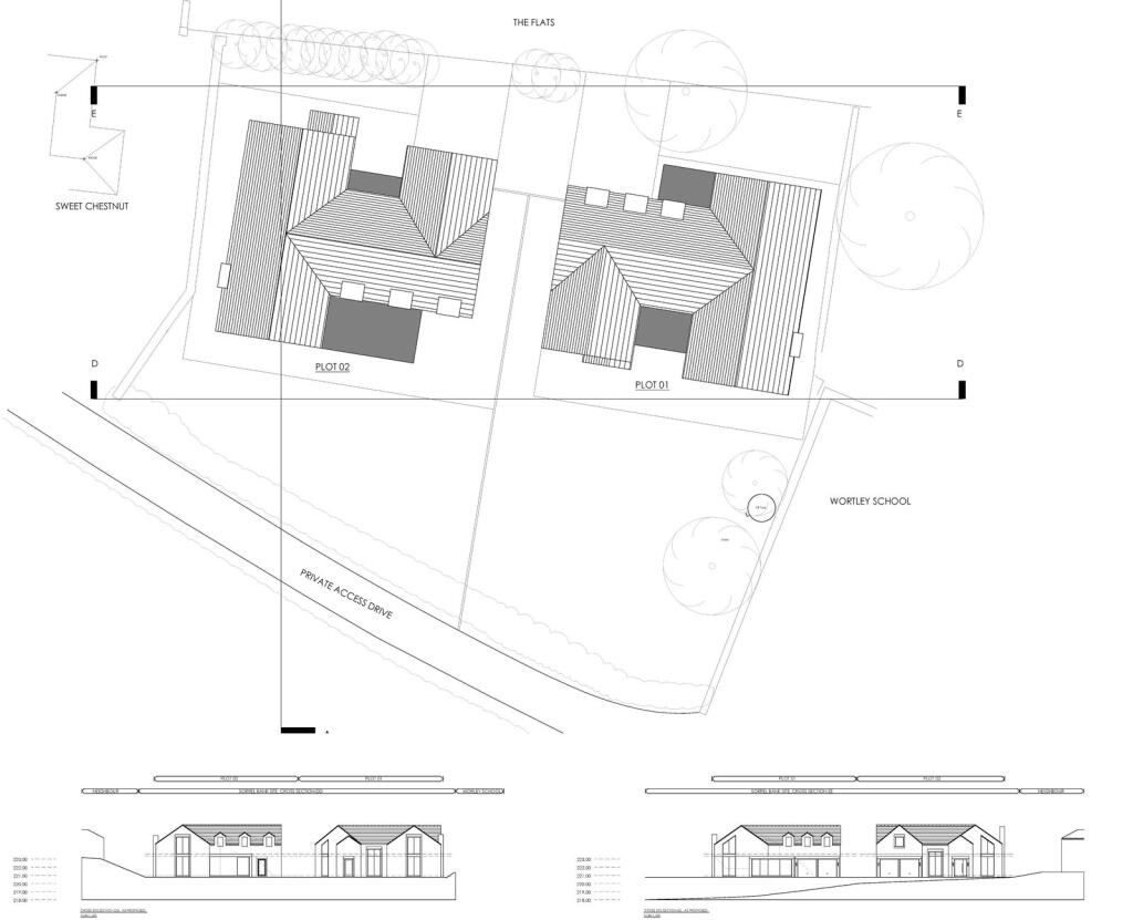
A LUXURY DEVELOPMENT OPPORTUNITY of 1 bespoke home providing SPACIOUS 5 BEDROOM accommodation boasting generous gardens, a STUNNING RURAL BACKDROP and an EXCEPTIONAL VILLAGE LOCATION.
Property Oracle says ..
This is a plot of land with planning permission for a modern, five-bedroom house. The location offers a blend of rural and suburban living, with good schools nearby. The plot itself is a generous size with an existing well-maintained garden. The asking price seems reasonable given the size and location, making it an attractive opportunity for a new build.
Therefore, we give this property 7 / 10. *Disclaimer: This is our option and does constitute a recommendation or financial advice. Do your own research. *
- Price
- 7
- Condition
- 8
- Location
- 7
- Land
- 9
- Bedrooms
- 5
- Bathrooms
- 3
- Sqft (est)
- 2,010.00
The heatmap indicates the level of crime in the area. The color of the heatmap indicates the crime severity and recency.
Metrics Year-on-Year
- Average area value
- 395,165.00 £Decreased by 21.84 %
- Est sale value
- 1,111,530.00 £Increased by 88.74 %
- Average area rental value
- 1,100.00 £/moDecreased by 5.42 %
- Est letting value
- 2,010.00 £/mo
- Est rental Yield
- 3.34 %Increased by 21.01 %
- Crime Rate
- 67.00 %Unchanged by 0.00 %
Agent Activity
Fine & Country created the listing.
Nearby Schools
| Name | Type | Ofsted | Distance |
|---|---|---|---|
| Thurgoland Church Of England (Voluntary Controlled) Primary School | Voluntary Controlled School | Outstanding | 4.02 KM |
| Northern College For Residential Adult Education Limited | Further Education | Outstanding | 4.23 KM |
| Angram Bank Children'S Centre | Children's Centre Linked Site | 4.80 KM | |
| Angram Bank Primary School | Community School | Good | 4.92 KM |
| Deepcar St John'S Church Of England Junior School | Voluntary Aided School | Good | 4.94 KM |
Images
Nearby Streets
| Name | Average Price | Average Sqft | Distance |
|---|---|---|---|
| The Flats | £ 0 | 0 | 0.00 KM |
| Home Farm Court | £ 475,000 | 0 | 0.00 KM |
Nearby Transport
| Name | NLC | TLC | Distance |
|---|---|---|---|
| Silkstone Common | 6782 | SLK | 5.81 KM |
| Dodworth | 6781 | DOD | 6.04 KM |
| Chapeltown (South Yorkshire) | 6664 | CLN | 8.34 KM |
| Barnsley | 6774 | BNY | 9.67 KM |
Nearby Listings
| Address | Price | Type | Score | Distance |
|---|---|---|---|---|
| Plot 2, Park Avenue, Wortley, Sheffield, S35 7DR | £ 325,000 | BUY | 7 / 10 | 0.00 KM |
| Park Avenue, Wortley, Sheffield, S35 7DR | £ 450,000 | BUY | 6 / 10 | 0.03 KM |
| Park Avenue, Wortley, Sheffield, S35 7DR | £ 800,000 | BUY | 6 / 10 | 0.13 KM |
| Home Farm Court, Wortley, S35 7DT | £ 475,000 | BUY | 6 / 10 | 0.25 KM |
| Woodhead Road, Wortley, Sheffield, S35 7DA | £ 695,000 | BUY | 7 / 10 | 1.66 KM |
Nearby Properties
| Address | Price | Distance |
|---|---|---|
| The Barn | £ 375,000 | 0.16 KM |
| Chimney Cottage | £ 20,000 | 0.16 KM |
| Foulds Cottage | £ 255,000 | 0.16 KM |
| Avenue Cottage | £ 525,050 | 0.16 KM |
| Anvil Cottage | £ 330,000 | 0.16 KM |