BR
Marmion Road, Wirral, Merseyside, CH47
By Bradshaw Farnham & Lea
£ 280,000
Reviews
3 out of 5 stars
Bradshaw Farnham & Lea says ..
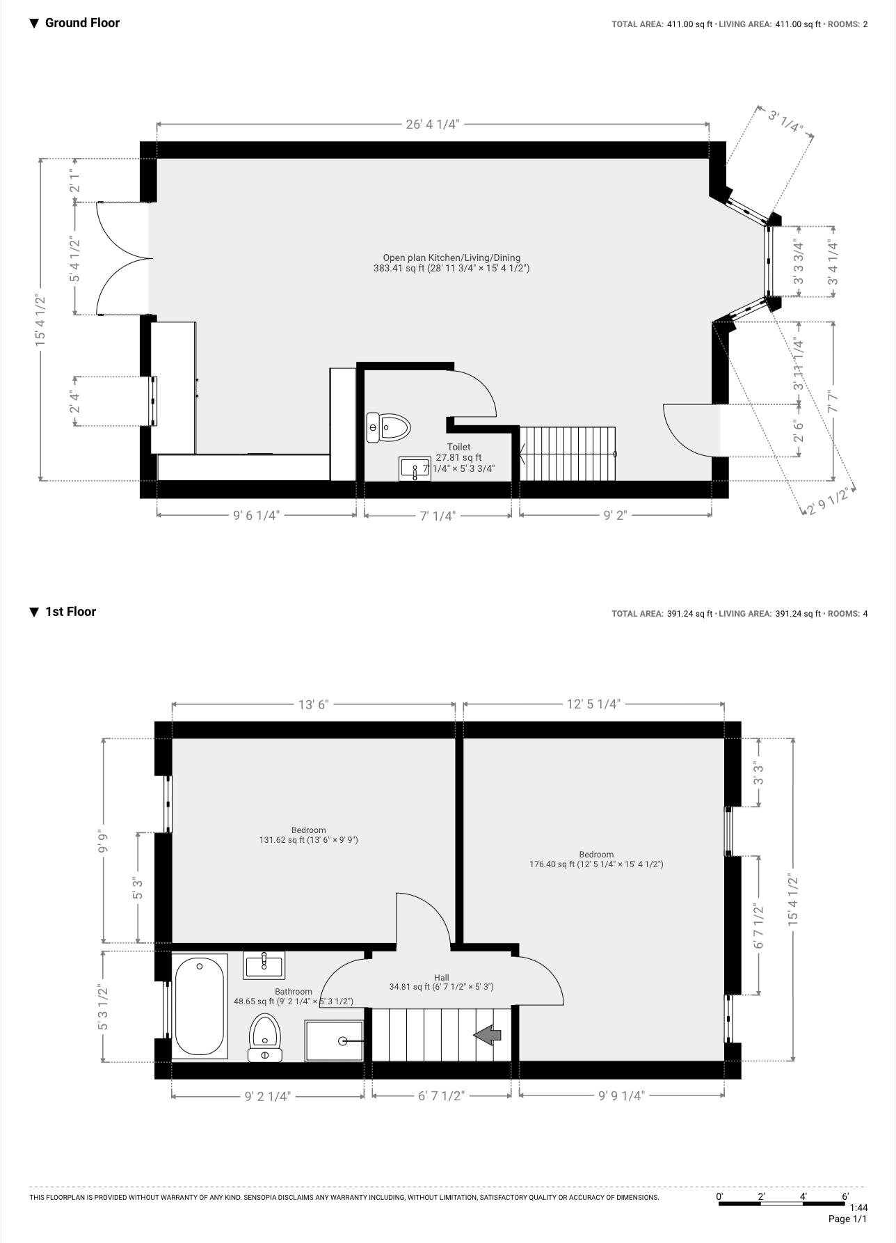
This stunning mid terrace home is ready to move into. Nestled in a charming road in Hoylake with two spacious bedrooms and a delightful rear courtyard, this home needs to be viewed to be appreciated.
Property Oracle says ..
Therefore, we give this property 6 / 10. *Disclaimer: This is our option and does constitute a recommendation or financial advice. Do your own research. *
- Price
- 7
- Condition
- 9
- Location
- 8
- Land
- 3
- Bedrooms
- 2
- Bathrooms
- 1
- Sqft (est)
- 411.00
The heatmap indicates the level of crime in the area. The color of the heatmap indicates the crime severity and recency.
Metrics Year-on-Year
- Average area value
- 686,761.00 £Increased by 63.43 %
- Est sale value
- 317,292.00 £Increased by 138.27 %
- Average area rental value
- 1,058.00 £/moIncreased by 8.51 %
- Est letting value
- 411.00 £/mo
- Est rental Yield
- 1.85 %Decreased by 33.45 %
- Crime Rate
- 39.00 %Unchanged by 0.00 %
from 420,220.00 £
from 133,164.00 £
from 975.00 £/mo
from 0.00 £/mo
from 2.78 %
from 39.00 %
Agent Activity
Bradshaw Farnham & Lea created the listing.
Nearby Schools
| Name | Type | Ofsted | Distance |
|---|---|---|---|
| Hoylake Holy Trinity Cofe Primary School | Voluntary Controlled School | Good | 0.85 KM |
| West Kirby Primary School | Community School | Good | 2.05 KM |
| West Kirby Grammar School | Academy Converter | 2.05 KM | |
| West Kirby Residential School | Non-maintained Special School | Outstanding | 2.32 KM |
| West Kirby Children'S Centre | Children's Centre | 2.63 KM |
Images
Nearby Streets
| Name | Average Price | Average Sqft | Distance |
|---|---|---|---|
| Warren Road | £ 0 | 0 | 0.00 KM |
| Charles Road | £ 354,950 | 0 | 0.00 KM |
| Elm Grove | £ 0 | 0 | 0.00 KM |
| Courtenay Road | £ 0 | 0 | 0.00 KM |
| Carlton Lane | £ 423,317 | 0 | 0.00 KM |
Nearby Transport
| Name | NLC | TLC | Distance |
|---|---|---|---|
| Hoylake | 2194 | HYK | 0.62 KM |
| Manor Road | 2253 | MNR | 0.93 KM |
| West Kirby | 2201 | WKI | 2.54 KM |
| Meols | 2254 | MEO | 2.85 KM |
| Moreton (Merseyside) | 2151 | MRT | 7.44 KM |
Nearby Listings
| Address | Price | Type | Score | Distance |
|---|---|---|---|---|
| Marmion Road, Wirral, Merseyside, CH47 | £ 280,000 | BUY | 6 / 10 | 0.00 KM |
| Lake Road, CH47 | £ 360,000 | BUY | 6 / 10 | 0.06 KM |
| Seaview, CH47 | £ 200,000 | BUY | 5 / 10 | 0.06 KM |
| Trinity Road, Wirral | £ 475,000 | BUY | Unknown | 0.06 KM |
| Lake Road, Wirral, CH47 | £ 375,000 | BUY | 7 / 10 | 0.08 KM |
Nearby Properties
| Address | Price | Distance |
|---|---|---|
| 8 Marmion Road | £ 157,500 | 0.02 KM |
| 4 Marmion Road | £ 140,000 | 0.02 KM |
| 12 Marmion Road | £ 250,000 | 0.02 KM |
| 28 Marmion Road | £ 220,000 | 0.02 KM |
| 27 Marmion Road | £ 335,000 | 0.05 KM |