Homezone says ..
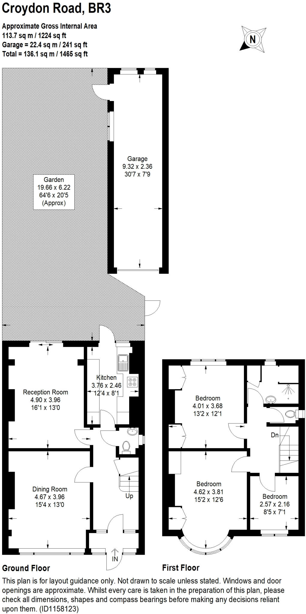
Charming 1930s semi-detached house with period features, double glazing, and gas central heating. Offers huge potential with scope for extension (STPP). Features a south-east facing garden, tandem garage, and benefitting from close proximity to popular schools, transport links, and local amenities.
Property Oracle says ..
This three-bedroom semi-detached house located on Croydon Road, Beckenham, BR3, is presented for sale at £575,000. The property benefits from a good location near Clock House station, providing convenient access to London’s transport network. Several well-regarded schools are also within reasonable proximity.
The property’s interior features period details, but the aesthetic is dated, suggesting that some modernisation might be desirable. The kitchen and bathroom appear functional but could also benefit from upgrades. The house features a rear garden and a garage, adding to its overall appeal.
Comparable properties in the area have been sold at a similar price range, implying a competitive list price. However, a precise comparison is difficult due to the lack of square footage details in the available data for similar listings. Overall, this property presents a reasonable option for buyers looking for a family home in a convenient location with a potential for future improvement, but it would benefit from some renovations to bring it fully up-to-date.
Therefore, we give this property 6 / 10. *Disclaimer: This is our option and does constitute a recommendation or financial advice. Do your own research. *
- Price
- 7
- Condition
- 6
- Location
- 7
- Land
- 6
- Bedrooms
- 3
- Bathrooms
- 1
- Sqft (est)
- 1,464.97
The heatmap indicates the level of crime in the area. The color of the heatmap indicates the crime severity and recency.
Metrics Year-on-Year
- Average area value
- 666,950.00 £Increased by 20.68 %
- Est sale value
- 1,038,663.73 £Increased by 27.98 %
- Average area rental value
- 1,565.00 £/moDecreased by 5.89 %
- Est letting value
- 1,464.97 £/moUnchanged by 0.00 %
- Est rental Yield
- 2.82 %Decreased by 21.88 %
- Crime Rate
- 4.00 %Unchanged by 0.00 %
Agent Activity
Homezone created the listing.
Nearby Schools
| Name | Type | Ofsted | Distance |
|---|---|---|---|
| Balgowan Primary School | Academy Converter | Good | 0.51 KM |
| Eden Park High School | Free Schools | 0.64 KM | |
| Marian Vian Primary School | Academy Converter | Good | 0.88 KM |
| Kings London | Other Independent School | Good | 0.96 KM |
| Churchfields Primary School | Academy Converter | 0.98 KM |
Images
Nearby Streets
| Name | Average Price | Average Sqft | Distance |
|---|---|---|---|
| Priory Close | £ 625,000 | 0 | 0.00 KM |
| Chaffinch Road | £ 700,000 | 0 | 0.00 KM |
| Uplands | £ 950,000 | 0 | 0.00 KM |
| Ash Tree Close | £ 725,000 | 0 | 0.00 KM |
| Fontaime Court | £ 0 | 0 | 0.00 KM |
Nearby Transport
| Name | NLC | TLC | Distance |
|---|---|---|---|
| Clock House | 5048 | CLK | 0.96 KM |
| Elmers End | 5049 | ELE | 1.10 KM |
| Kent House | 5080 | KTH | 1.49 KM |
| Birkbeck | 5401 | BIK | 1.82 KM |
| Eden Park | 5056 | EDN | 1.85 KM |
Nearby Listings
| Address | Price | Type | Score | Distance |
|---|---|---|---|---|
| Croydon Road, Beckenham, BR3 | £ 575,000 | BUY | 6 / 10 | 0.00 KM |
| Croydon Road, Beckenham, Kent, BR3 | £ 675,000 | BUY | Unknown | 0.02 KM |
| Croydon Road, Beckenham, BR3 | £ 650,000 | BUY | 7 / 10 | 0.08 KM |
| Broomfield Road, Beckenham, BR3 | £ 800,000 | BUY | 7 / 10 | 0.11 KM |
| Broomfield Road, Beckenham, Kent | £ 375,000 | BUY | 6 / 10 | 0.12 KM |
Nearby Properties
| Address | Price | Distance |
|---|---|---|
| 165 Croydon Road | £ 355,000 | 0.00 KM |
| 193 Croydon Road | £ 650,000 | 0.00 KM |
| 153a Croydon Road | £ 350,000 | 0.00 KM |
| 201 Croydon Road | £ 323,000 | 0.00 KM |
| 151a Croydon Road | £ 325,000 | 0.00 KM |