BLaK Property says ..
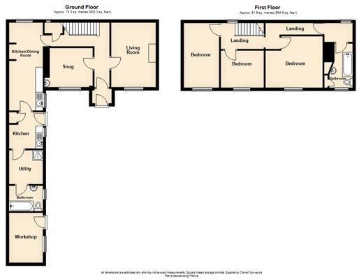
Requiring complete updating and modernisation a spacious 3 Bedroom mid-terrace Character Cottage offering great scope and potential set on a superb 0.2 acre plot situated in this ever popular rural village
Property Oracle says ..
Therefore, we give this property 6 / 10. *Disclaimer: This is our option and does constitute a recommendation or financial advice. Do your own research. *
- Price
- 7
- Condition
- 4
- Location
- 7
- Land
- 8
- Bedrooms
- 3
- Bathrooms
- 2
- Sqft (est)
- 554.34
The heatmap indicates the level of crime in the area. The color of the heatmap indicates the crime severity and recency.
Metrics Year-on-Year
- Average area value
- 445,667.00 £Increased by 22.12 %
- Est sale value
- 169,628.04 £Increased by 11.27 %
- Average area rental value
- 1,100.00 £/moIncreased by 37.50 %
- Est letting value
- 0.00 £/mo
- Est rental Yield
- 2.96 %Increased by 12.55 %
- Crime Rate
- 206.00 %Unchanged by 0.00 %
from 364,940.00 £
from 152,443.50 £
from 800.00 £/mo
from 0.00 £/mo
from 2.63 %
from 206.00 %
Agent Activity
BLaK Property created the listing.
Nearby Schools
| Name | Type | Ofsted | Distance |
|---|---|---|---|
| Dolton Church Of England Primary School | Academy Converter | 0.78 KM | |
| Beaford Community Primary & Nursery School | Community School | Outstanding | 3.98 KM |
| The Clinton Church Of England Primary School | Academy Sponsor Led | 7.47 KM | |
| High Bickington Church Of England Primary Academy | Academy Converter | Good | 8.94 KM |
| Acorn School | Other Independent Special School | Good | 9.10 KM |
Images
Nearby Listings
| Address | Price | Type | Score | Distance |
|---|---|---|---|---|
| Rectory Road, Dolton | £ 280,000 | BUY | 6 / 10 | 0.00 KM |
| Barfield Road, Dolton, EX19 | £ 360,000 | BUY | Unknown | 0.04 KM |
| Dolton, Winkleigh | £ 400,000 | BUY | 7 / 10 | 0.05 KM |
| Rectory Road, Dolton, Winkleigh, Devon, EX19 | £ 360,000 | BUY | 8 / 10 | 0.11 KM |
| Barfield Close, Dolton, Devon | £ 290,000 | BUY | 6 / 10 | 0.20 KM |
Nearby Properties
| Address | Price | Distance |
|---|---|---|
| Meadow View | £ 170,000 | 0.01 KM |
| Little Barlands | £ 215,000 | 0.01 KM |
| Middle Hill | £ 410,000 | 0.01 KM |
| Kerry | £ 185,000 | 0.01 KM |
| Westlea | £ 144,000 | 0.01 KM |