Rockfield Road, Oxted, RH8
By Stephen James Residential Ltd
£ 895,000
Reviews
3 out of 5 stars
Stephen James Residential Ltd says ..
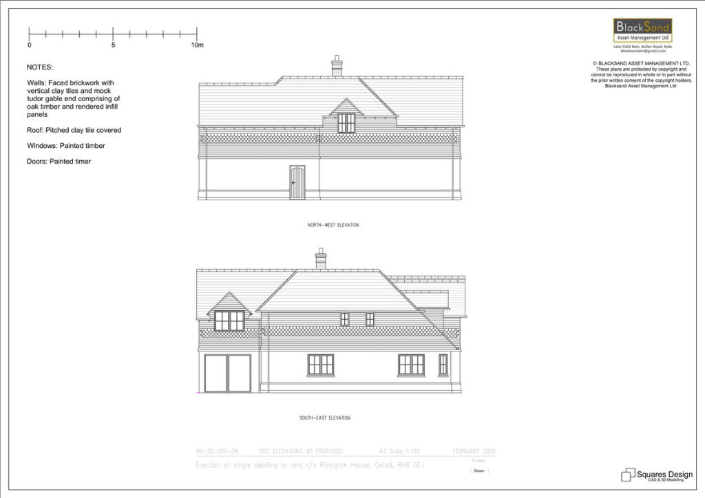
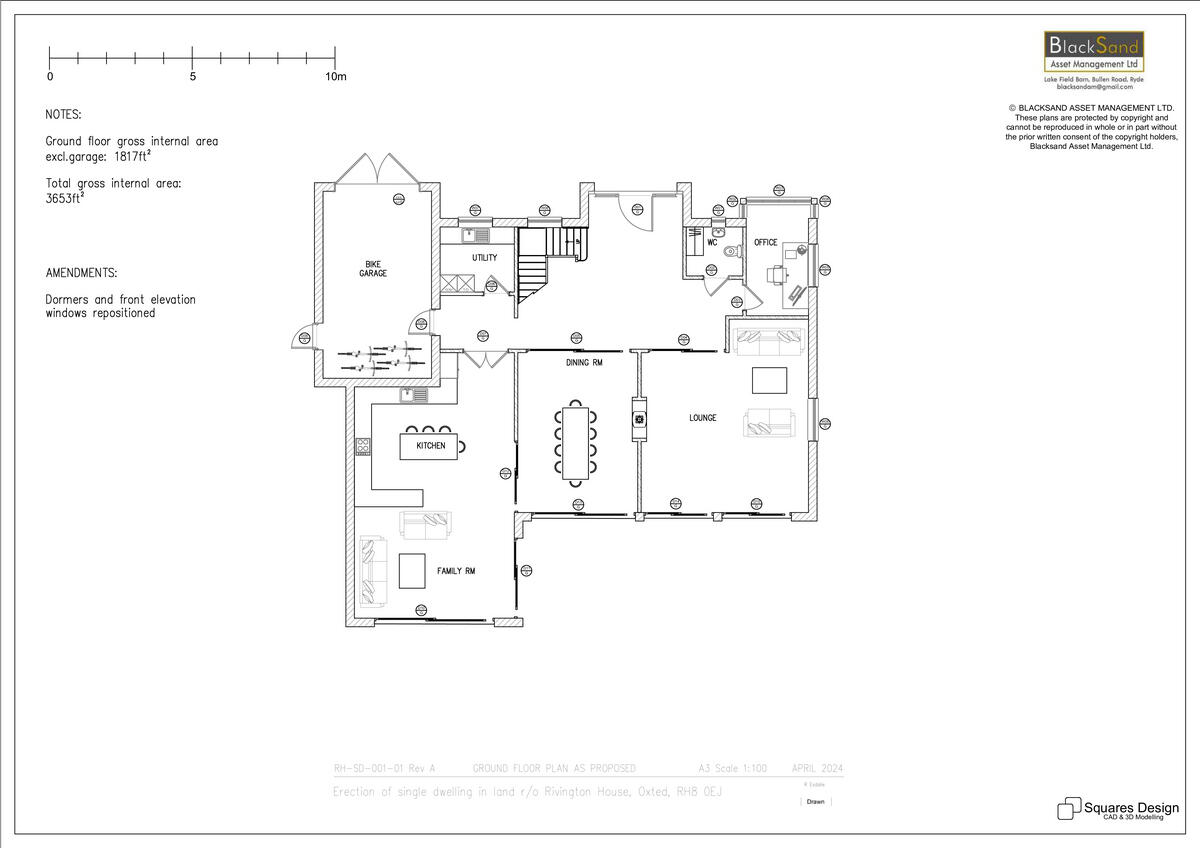
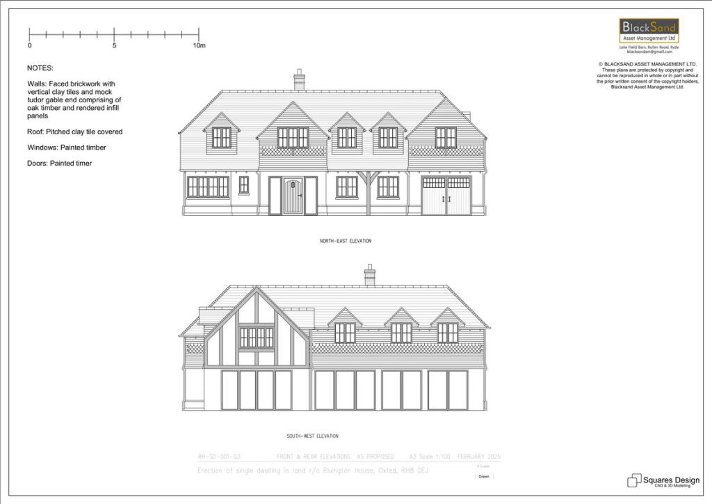
A great opportunity to acquire a site with planning permission for the erection of a substantial 3,653 SQ FT five bedroom detached dwelling in a sought-after commuter town
Property Oracle says ..
This property represents a unique opportunity to acquire a substantial plot of land in a sought-after location. The images suggest plans for a modern, high-specification home. While the listing price appears attractive compared to other properties in the area, it’s crucial to factor in the cost of construction to accurately assess the overall investment. The proximity to transportation and schools adds to the appeal, although the Ofsted rating of Oxted School should be considered. Overall, this property offers considerable potential for creating a bespoke family home in a desirable location.
Therefore, we give this property 7 / 10. *Disclaimer: This is our option and does constitute a recommendation or financial advice. Do your own research. *
- Price
- 6
- Condition
- 9
- Location
- 7
- Land
- 7
- Bedrooms
- 0
- Bathrooms
- 0
- Sqft (est)
- 3,653.00
The heatmap indicates the level of crime in the area. The color of the heatmap indicates the crime severity and recency.
Metrics Year-on-Year
- Average area value
- 1,235,000.00 £Increased by 76.34 %
- Est sale value
- 2,644,772.00 £Increased by 42.80 %
- Average area rental value
- 2,650.00 £/moIncreased by 9.55 %
- Est letting value
- 3,653.00 £/moUnchanged by 0.00 %
- Est rental Yield
- 2.57 %Decreased by 37.92 %
- Crime Rate
- 1.00 %Unchanged by 0.00 %
Agent Activity
Stephen James Residential Ltd created the listing.
Nearby Schools
| Name | Type | Ofsted | Distance |
|---|---|---|---|
| Hazelwood School | Other Independent School | 0.86 KM | |
| Oxted School | Academy Converter | Requires improvement | 1.03 KM |
| Moor House School & College | Non-maintained Special School | Outstanding | 1.05 KM |
| Hurst Green & Holland Sure Start Children'S Centre | Children's Centre | 1.08 KM | |
| Hurst Green Infant School | Community School | Good | 1.08 KM |
Images
Nearby Streets
| Name | Average Price | Average Sqft | Distance |
|---|---|---|---|
| Broom Hill | £ 0 | 0 | 0.00 KM |
| Laurel Drive | £ 0 | 0 | 0.00 KM |
| Johnsdale | £ 535,000 | 0 | 0.00 KM |
| Parklands | £ 0 | 0 | 0.00 KM |
| Station Approach | £ 0 | 0 | 0.00 KM |
Nearby Transport
| Name | NLC | TLC | Distance |
|---|---|---|---|
| Hurst Green | 5463 | HUR | 0.83 KM |
| Oxted | 5377 | OXT | 1.00 KM |
| Godstone | 5474 | GDN | 6.79 KM |
| Woldingham | 5440 | WOH | 7.30 KM |
| Edenbridge(Kent) | 5473 | EBR | 8.11 KM |
Nearby Listings
| Address | Price | Type | Score | Distance |
|---|---|---|---|---|
| Rockfield Road, Oxted, RH8 | £ 895,000 | BUY | 7 / 10 | 0.00 KM |
| Rockfield Road, Oxted, Surrey, RH8 | £ 2,500,000 | BUY | 7 / 10 | 0.04 KM |
| Uvedale Road, Oxted, Surrey, RH8 | £ 1,400,000 | BUY | 6 / 10 | 0.12 KM |
| Rockfield Road, Oxted, Surrey, RH8 | £ 1,500,000 | BUY | Unknown | 0.18 KM |
| Rockfield Road, Oxted, Surrey, RH8 | £ 1,950,000 | BUY | Unknown | 0.18 KM |
Nearby Properties
| Address | Price | Distance |
|---|---|---|
| Treetops | £ 1,015,000 | 0.20 KM |
| Westerlea | £ 1,725,000 | 0.22 KM |
| Litchfield | £ 850,000 | 0.22 KM |
| Wayside | £ 1,385,000 | 0.23 KM |
| West Watch | £ 1,600,000 | 0.25 KM |