SITE | PLANNING GRANTED | FISHPONDS
HO

SITE | PLANNING GRANTED | FISHPONDS

By Hollis Morgan Auctions

£ 950,000

Reviews

2 out of 5 stars

Hollis Morgan Auctions says ..

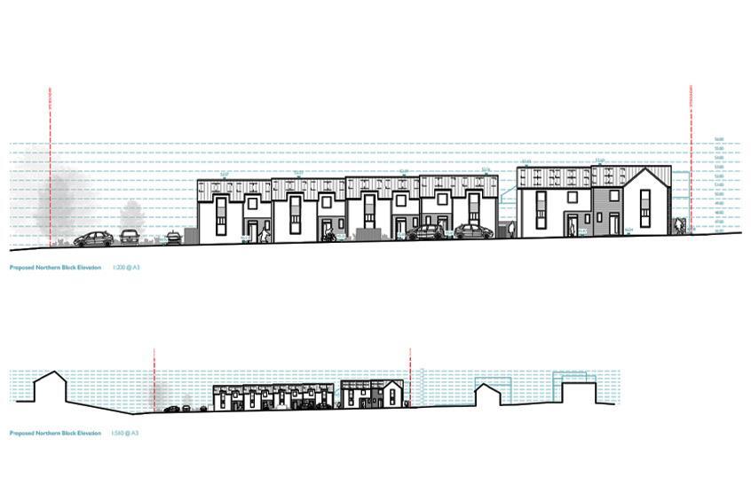
Hollis Morgan – JUNE LIVE ONLINE AUCTION – A Freehold 0.5 ACRE DEVELOPMENT SITE with PLANNING GRANTED to erect a scheme of 11 X 3 BED ( 911 Sq Ft ) HOUSES with GARDENS and PARKING.

Property Oracle says ..

The property is a plot of land with planning permission granted. The site includes a number of existing buildings which appear to be in a state of disrepair, needing significant renovation. The location in Eastville, Bristol, is reasonably close to several schools and train stations. The list price is considerably higher than the average house price in the area, but may reflect the potential for development. The significant cost of renovation must also be considered. More information on the planning permission would be needed to determine the true value.

Therefore, we give this property 4 / 10. *Disclaimer: This is our option and does constitute a recommendation or financial advice. Do your own research. *

Price
4
Condition
3
Location
0
Land
7
Bedrooms
33
Bathrooms
22
Sqft (est)
310.26

The heatmap indicates the level of crime in the area. The color of the heatmap indicates the crime severity and recency.

Metrics Year-on-Year

Average area value
347,495.00 £
Increased by 4.36 %
from 332,967.00 £
Est sale value
137,134.92 £
Increased by 12.18 %
from 122,242.44 £
Average area rental value
1,189.00 £/mo
Decreased by 23.64 %
from 1,557.00 £/mo
Est letting value
310.26 £/mo
Unchanged by 0.00 %
from 310.26 £/mo
Est rental Yield
4.11 %
Decreased by 26.74 %
from 5.61 %
Crime Rate
3.00 %
Unchanged by 0.00 %
from 3.00 %

Agent Activity

  • Hollis Morgan Auctions created the listing.

Nearby Schools

NameTypeOfstedDistance
Bristol Metropolitan AcademyAcademy Sponsor LedGood0.32 KM
St Matthias AcademyAcademy Alternative Provision Converter0.52 KM
Fishponds Church Of England AcademyAcademy Sponsor LedRequires improvement0.95 KM
Begbrook Primary AcademyAcademy ConverterGood1.06 KM
Chester Park Junior SchoolCommunity SchoolGood1.19 KM

Images

Development Site @ 79a Grove Road, Fishponds, Bris Development Site @ 79a Grove Road, Fishponds, Bris Development Site @ 79a Grove Road, Fishponds, Bris Development Site @ 79a Grove Road, Fishponds, Bris Development Site @ 79a Grove Road, Fishponds, Bris Development Site @ 79a Grove Road, Fishponds, Bris Development Site @ 79a Grove Road, Fishponds, Bris Development Site @ 79a Grove Road, Fishponds, Bris Development Site @ 79a Grove Road, Fishponds, Bris Development Site @ 79a Grove Road, Fishponds, Bris Development Site @ 79a Grove Road, Fishponds, Bris Development Site @ 79a Grove Road, Fishponds, Bris Development Site @ 79a Grove Road, Fishponds, Bris Development Site @ 79a Grove Road, Fishponds, Bris Development Site @ 79a Grove Road, Fishponds, Bris Development Site @ 79a Grove Road, Fishponds, Bris Development Site @ 79a Grove Road, Fishponds, Bris Development Site @ 79a Grove Road, Fishponds, Bris Development Site @ 79a Grove Road, Fishponds, Bris Development Site @ 79a Grove Road, Fishponds, Bris Development Site @ 79a Grove Road, Fishponds, Bris Hollis Morgan Live Online Land and Property Auctio Hollis Morgan Live Online Auctions How to Register

Nearby Streets

NameAverage PriceAverage SqftDistance
Star Lane £ 198,50000.00 KM
Grove Park Gardens £ 000.00 KM
Blackberry Avenue £ 000.00 KM
Lakeside £ 292,50000.00 KM
Hockeys Lane £ 000.00 KM

Nearby Transport

NameNLCTLCDistance
Stapleton Road3250SRD3.04 KM
Lawrence Hill3225LWH3.47 KM
Filton Abbey Wood3235FIT3.72 KM
Bristol Parkway3230BPW3.87 KM
Montpelier3203MTP5.38 KM

Nearby Listings

AddressPriceTypeScoreDistance
SITE | PLANNING GRANTED | FISHPONDS £ 675,000BUY5 / 100.00 KM
SITE | PLANNING GRANTED | FISHPONDS £ 950,000BUY4 / 100.00 KM
New Buildings, Fishponds £ 400,000BUY7 / 100.06 KM
COTTAGE | BASIC UPDATING | FISHPONDS £ 245,000BUY5 / 100.07 KM
Thingwall Park, Fishponds , Bristol £ 600,000BUY6 / 100.07 KM

Nearby Properties

AddressPriceDistance
4 Lower Grove Road £ 180,0000.03 KM
2 Lower Grove Road £ 361,0000.03 KM
3 Lower Grove Road £ 240,0000.03 KM
74 Grove Road £ 390,0000.05 KM
64 Grove Road £ 265,0000.05 KM