Match A Property says ..
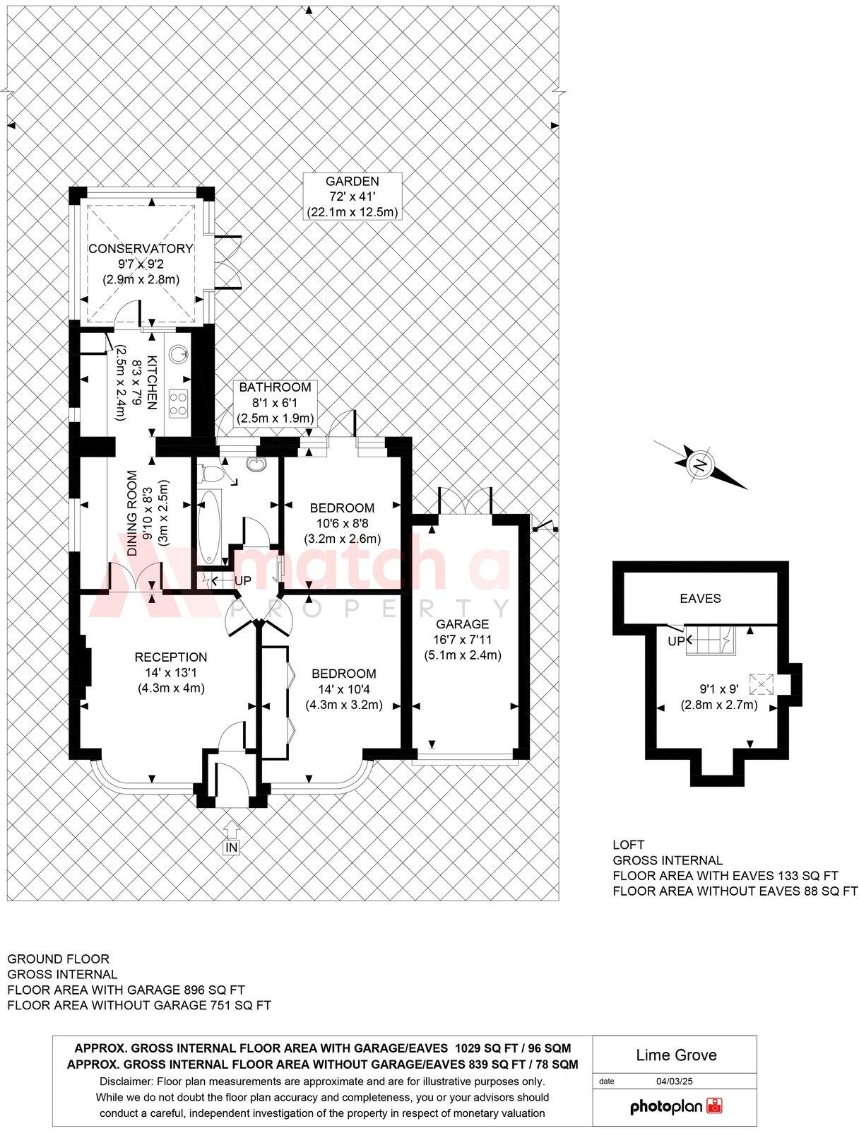
Match A Property is pleased to offer this two bedroom detached bungalow requiring complete updating directly backing onto the open spaces of Warrender Park.
Property Oracle says ..
This property is a 2-bedroom bungalow located on Lime Grove in Ruislip, HA4 8RL. The list price is £625,000, and the property has 1,453.88 square feet of living space. The average price for properties in the area is £771,371, with an average price per square foot of £584. The property includes a garden and a garage. Based on the provided images, the property appears to be in need of significant modernisation and updating. The kitchen and bathroom are particularly dated, and the interior décor is outdated. The location is convenient, with relatively close proximity to several underground stations and schools. However, the lack of information on specific school ratings and the distance to amenities makes it difficult to fully assess the location score.
Therefore, we give this property 5 / 10. *Disclaimer: This is our option and does constitute a recommendation or financial advice. Do your own research. *
- Price
- 5
- Condition
- 4
- Location
- 7
- Land
- 6
- Bedrooms
- 2
- Bathrooms
- 1
- Sqft (est)
- 1,453.88
The heatmap indicates the level of crime in the area. The color of the heatmap indicates the crime severity and recency.
Metrics Year-on-Year
- Average area value
- 940,833.00 £Increased by 19.00 %
- Est sale value
- 788,002.96 £Increased by 11.29 %
- Average area rental value
- 2,875.00 £/moIncreased by 9.19 %
- Est letting value
- 1,453.88 £/moUnchanged by 0.00 %
- Est rental Yield
- 3.67 %Decreased by 8.25 %
- Crime Rate
- 4.00 %Unchanged by 0.00 %
Agent Activity
Match A Property created the listing.
Nearby Schools
| Name | Type | Ofsted | Distance |
|---|---|---|---|
| Bishop Ramsey Church Of England School | Academy Converter | 0.57 KM | |
| Coteford Children'S Centre | Children's Centre | 0.96 KM | |
| Lady Bankes Primary School | Community School | Good | 0.96 KM |
| Coteford Infant School | Community School | Good | 1.01 KM |
| Warrender Primary School | Community School | Good | 1.15 KM |
Images
Nearby Streets
| Name | Average Price | Average Sqft | Distance |
|---|---|---|---|
| Myrtle Avenue | £ 833,333 | 0 | 0.00 KM |
| Campbell Close | £ 287,475 | 0 | 0.00 KM |
| Ryan Close | £ 825,000 | 0 | 0.00 KM |
| Armstrong Close | £ 500,000 | 0 | 0.00 KM |
| Old Hatch Manor | £ 0 | 0 | 0.00 KM |
Nearby Transport
| Name | NLC | TLC | Distance |
|---|---|---|---|
| South Ruislip | 3057 | SRU | 2.43 KM |
| West Ruislip | 3059 | WRU | 3.84 KM |
| Hatch End | 1398 | HTE | 5.24 KM |
| Northolt Park | 1478 | NLT | 5.45 KM |
| Headstone Lane | 1434 | HDL | 5.86 KM |
Nearby Listings
| Address | Price | Type | Score | Distance |
|---|---|---|---|---|
| Lime Grove, Ruislip, HA4 | £ 625,000 | BUY | 5 / 10 | 0.00 KM |
| Lime Grove, Eastcote, Middlesex | £ 700,000 | BUY | 6 / 10 | 0.05 KM |
| Lime Grove, Ruislip HA4 | £ 1,475,000 | BUY | Unknown | 0.05 KM |
| Lime Grove, Ruislip, HA4 | £ 1,200,000 | BUY | 7 / 10 | 0.12 KM |
| Hawthorne Avenue, Ruislip, HA4 | £ 750,000 | BUY | 7 / 10 | 0.12 KM |
Nearby Properties
| Address | Price | Distance |
|---|---|---|
| 62 Lime Grove | £ 1,120,000 | 0.03 KM |
| 66 Lime Grove | £ 615,000 | 0.03 KM |
| 14 Lime Grove | £ 850,000 | 0.03 KM |
| 42 Lime Grove | £ 671,000 | 0.03 KM |
| 32 Lime Grove | £ 365,000 | 0.03 KM |