Baltic Place, Haggerston, N1
By Drivers & Norris
£ 600,000
Reviews
3 out of 5 stars
Drivers & Norris says ..
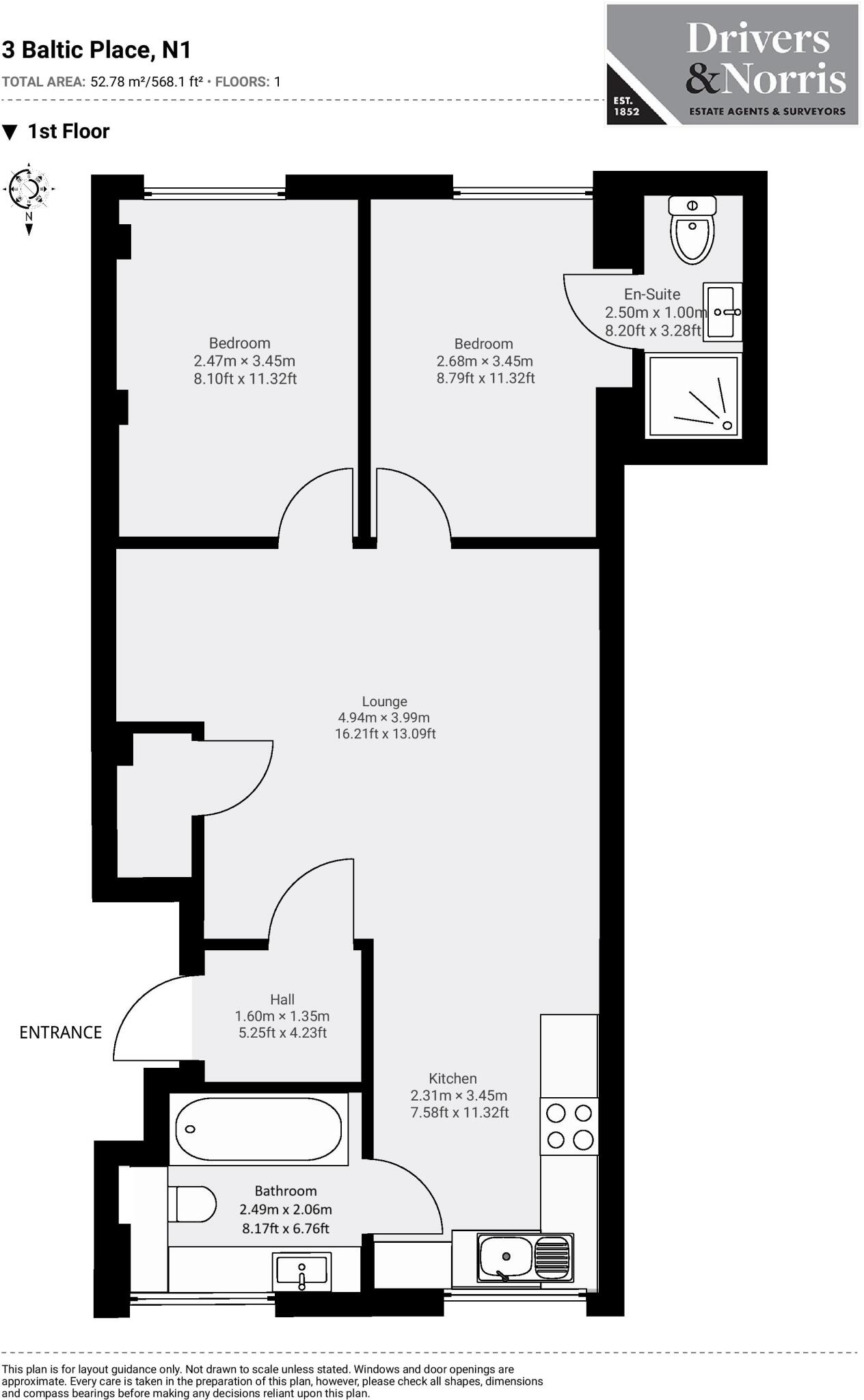
Two double bedroom two bathroom apartment on the first floor of this stylish block, adjacent to the Regents Canal, within a stone’s throw of vibrant bars, restaurants and shops in Haggerston and nearby Broadway Market. Well served by numerous bus routes and a walk of less than five minutes ...
Property Oracle says ..
This property is a two-bedroom, two-bathroom apartment located in Haggerston, Hackney, with excellent transport links to the London Overground. The apartment is modern and well-presented, appearing to be in excellent condition. While the plot size is relatively small, typical for an apartment in this area, the location is a significant advantage. The list price of £600,000 is slightly below the average price for the area (£736,530), and considering the property’s condition and location, it seems reasonably priced, although further analysis of comparable properties with square footage data would strengthen this assessment. The average price per sqft in the area is £53, and while the provided sqft for this property is £611, this is not enough information to provide a full price analysis. More data is needed to compare this property to similar properties in the area.
Therefore, we give this property 7 / 10. *Disclaimer: This is our option and does constitute a recommendation or financial advice. Do your own research. *
- Price
- 8
- Condition
- 10
- Location
- 9
- Land
- 3
- Bedrooms
- 2
- Bathrooms
- 2
- Sqft (est)
- 611.00
- Lot (est)
- 568.10
The heatmap indicates the level of crime in the area. The color of the heatmap indicates the crime severity and recency.
Metrics Year-on-Year
- Average area value
- 1,266,250.00 £Increased by 109.04 %
- Est sale value
- 533,403.00 £Increased by 4.30 %
- Average area rental value
- 3,273.00 £/moIncreased by 14.32 %
- Est letting value
- 1,222.00 £/moDecreased by 33.33 %
- Est rental Yield
- 3.10 %Decreased by 45.33 %
- Crime Rate
- 6.00 %Unchanged by 0.00 %
Agent Activity
Drivers & Norris created the listing.
Nearby Schools
| Name | Type | Ofsted | Distance |
|---|---|---|---|
| Waterside Academy | Free Schools | 0.22 KM | |
| Comet Nursery School And Children'S Centre | Local Authority Nursery School | Outstanding | 0.34 KM |
| Comet Nursery School And Children'S Centre | Children's Centre | 0.37 KM | |
| Randal Cremer Primary School | Community School | Good | 0.48 KM |
| Hoxton Garden Primary | Community School | Good | 0.50 KM |
Images
Nearby Streets
| Name | Average Price | Average Sqft | Distance |
|---|---|---|---|
| Nursery Lane | £ 0 | 0 | 0.00 KM |
| Boat Lane | £ 440,000 | 0 | 0.00 KM |
| Bryant Street | £ 0 | 0 | 0.00 KM |
| Fellows Court | £ 0 | 0 | 0.00 KM |
| Fellows Court | £ 0 | 0 | 0.00 KM |
Nearby Transport
| Name | NLC | TLC | Distance |
|---|---|---|---|
| Haggerston | 1022 | HGG | 0.30 KM |
| Hoxton | 1023 | HOX | 0.61 KM |
| Dalston Junction | 1443 | DLJ | 1.08 KM |
| Dalston Kingsland | 1429 | DLK | 1.29 KM |
| Shoreditch High Street | 1024 | SDC | 1.50 KM |
Nearby Listings
| Address | Price | Type | Score | Distance |
|---|---|---|---|---|
| Baltic Place, Haggerston, N1 | £ 600,000 | BUY | 7 / 10 | 0.00 KM |
| Baltic Place, London, N1 | £ 620,000 | BUY | 8 / 10 | 0.00 KM |
| Sheldon House, 1 Baltic Place, London, N1 | £ 725,000 | BUY | 6 / 10 | 0.00 KM |
| Baltic Place, Kingsland Road | £ 380,000 | BUY | 6 / 10 | 0.00 KM |
| Baltic Place, London, N1 | £ 550,000 | BUY | 6 / 10 | 0.00 KM |
Nearby Properties
| Address | Price | Distance |
|---|---|---|
| 50 Baltic Place | £ 98,000 | 0.01 KM |
| 15 Baltic Place | £ 162,500 | 0.01 KM |
| 17 Baltic Place | £ 350,000 | 0.01 KM |
| 53 Baltic Place | £ 600,000 | 0.01 KM |
| 11 Baltic Place | £ 554,000 | 0.01 KM |