Rampton Baseley says ..
An attractive four bedroom Victorian family home with a 40 ft south facing garden on this sought-after street in the heart of the Tonsley’s.
Property Oracle says ..
This is a well-presented terraced house in a sought-after London location. The property benefits from modern interiors, a garden, and proximity to good schools and transport links. While the garden isn’t huge, it’s a valuable asset. The price seems reasonable given the property’s size, condition, and location.
Therefore, we give this property 7 / 10. *Disclaimer: This is our option and does constitute a recommendation or financial advice. Do your own research. *
- Price
- 7
- Condition
- 8
- Location
- 8
- Land
- 6
- Bedrooms
- 4
- Bathrooms
- 2
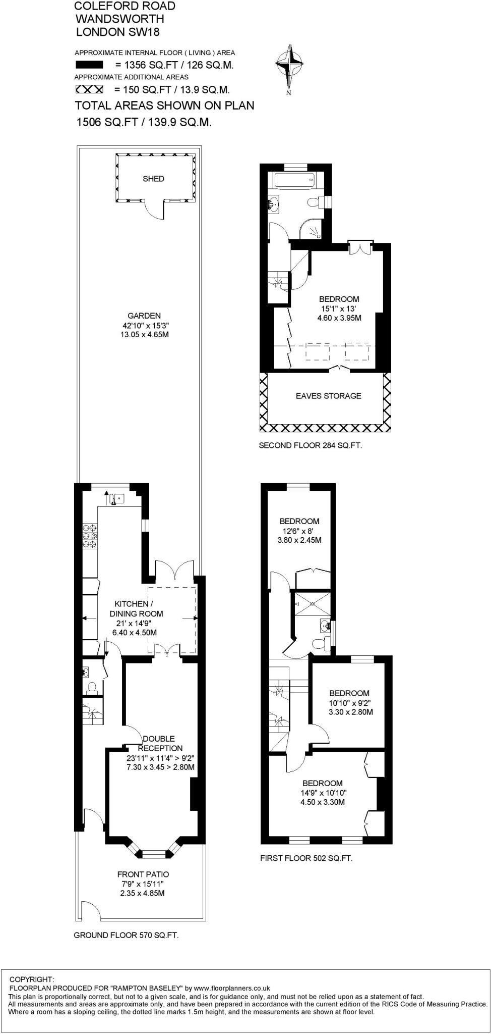
- Sqft (est)
- 1,506.00
The heatmap indicates the level of crime in the area. The color of the heatmap indicates the crime severity and recency.
Metrics Year-on-Year
- Average area value
- 538,795.00 £Decreased by 1.78 %
- Est sale value
- 917,154.00 £Increased by 2.18 %
- Average area rental value
- 2,144.00 £/moIncreased by 4.94 %
- Est letting value
- 3,012.00 £/moUnchanged by 0.00 %
- Est rental Yield
- 4.78 %Increased by 6.94 %
- Crime Rate
- 2.00 %Unchanged by 0.00 %
Agent Activity
Rampton Baseley created the listing.
Nearby Schools
| Name | Type | Ofsted | Distance |
|---|---|---|---|
| St Faith'S Cofe Primary School | Voluntary Aided School | Good | 0.06 KM |
| St Anne'S Cofe Primary School | Voluntary Aided School | Good | 0.34 KM |
| Anglo Portuguese School Of London | Free Schools | 0.48 KM | |
| Allfarthing Primary School | Community School | Good | 0.61 KM |
| Wandsworth Preparatory School | Other Independent School | 0.62 KM |
Images
Nearby Streets
| Name | Average Price | Average Sqft | Distance |
|---|---|---|---|
| Odyssey Way | £ 0 | 0 | 0.00 KM |
| Marl Road | £ 0 | 0 | 0.00 KM |
| Woodwell Street | £ 550,000 | 0 | 0.00 KM |
| Railway Walk | £ 0 | 0 | 0.00 KM |
| Swandon Way | £ 0 | 0 | 0.00 KM |
Nearby Transport
| Name | NLC | TLC | Distance |
|---|---|---|---|
| Wandsworth Town | 5576 | WNT | 0.29 KM |
| Imperial Wharf | 9586 | IMW | 1.84 KM |
| Earlsfield | 5584 | EAD | 1.84 KM |
| Clapham Junction | 5595 | CLJ | 1.91 KM |
| Wandsworth Common | 5395 | WSW | 2.94 KM |
Nearby Listings
| Address | Price | Type | Score | Distance |
|---|---|---|---|---|
| Coleford Road, SW18 | £ 1,375,000 | BUY | 7 / 10 | 0.00 KM |
| Coleford Road, Wandsworth, SW18 | £ 1,250,000 | BUY | Unknown | 0.04 KM |
| Coleford Road, London, SW18 | £ 1,395,000 | BUY | 6 / 10 | 0.04 KM |
| Fullerton, London, SW18 | £ 1,435,000 | BUY | 8 / 10 | 0.07 KM |
| 27B Alma Road, London, SW18 1AA | £ 435,000 | BUY | 4 / 10 | 0.09 KM |
Nearby Properties
| Address | Price | Distance |
|---|---|---|
| 2 Coleford Road | £ 1,296,000 | 0.01 KM |
| 14 Coleford Road | £ 1,385,000 | 0.01 KM |
| 21 Coleford Road | £ 1,313,000 | 0.01 KM |
| 13 Coleford Road | £ 1,350,000 | 0.01 KM |
| 8 Coleford Road | £ 1,255,000 | 0.01 KM |