Bloomfield Street, Ipswich, Suffolk, IP4
By Fenn Wright
£ 175,000
Reviews
3 out of 5 stars
Fenn Wright says ..
Offered with no onward chain is this semi-detached property with an 80ft West facing rear garden that is situated to the East side of Ipswich
Property Oracle says ..
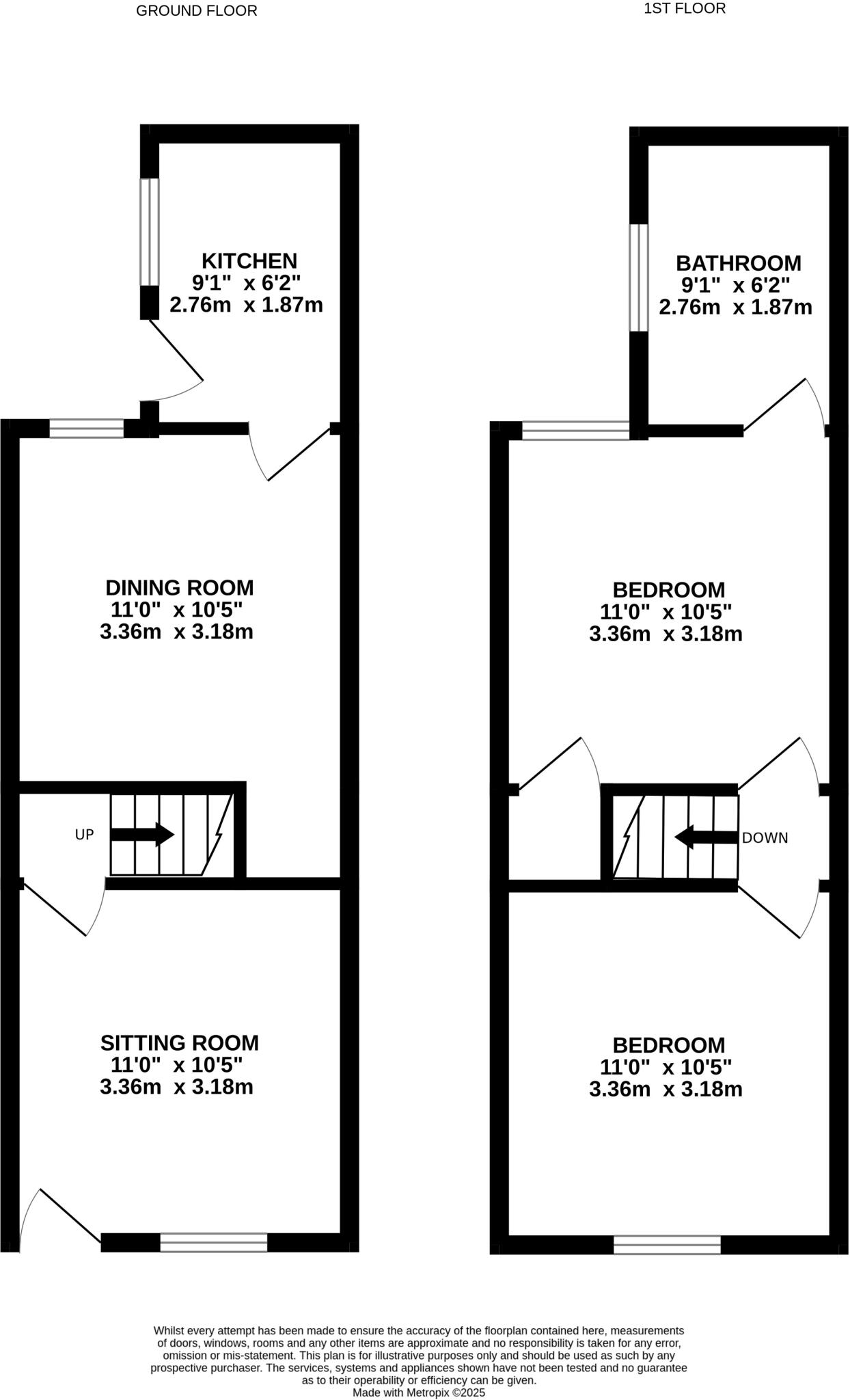
This property is located in Ipswich, Suffolk, within the St John’s area. The area benefits from nearby schools such as St John’s Church of England Voluntary Aided Primary School and Parkside Academy, as well as relatively close proximity to train stations (Derby Road, Westerfield and Ipswich). The property itself is a two-bedroom house with one bathroom. Based on the provided images, the property appears to be in need of some modernisation and repairs. There is evidence of damp in at least one of the bedrooms and some cosmetic work is needed throughout. The property does include a garden, which is a positive aspect. The list price is significantly below the average price for the area (£175,000 vs £374,740). However, considering the condition of the property and the relatively small plot size, the price may reflect the need for renovation. More information on the size of the plot would be needed to fully assess the land value. Additional information on comparable properties in similar condition would help to further refine the price assessment.
Therefore, we give this property 6 / 10. *Disclaimer: This is our option and does constitute a recommendation or financial advice. Do your own research. *
- Price
- 7
- Condition
- 4
- Location
- 7
- Land
- 6
- Bedrooms
- 2
- Bathrooms
- 1
- Sqft (est)
- 816.34
The heatmap indicates the level of crime in the area. The color of the heatmap indicates the crime severity and recency.
Metrics Year-on-Year
- Average area value
- 384,737.00 £Decreased by 1.20 %
- Est sale value
- 332,250.38 £Increased by 15.95 %
- Average area rental value
- 1,963.00 £/moIncreased by 39.81 %
- Est letting value
- 1,632.68 £/moIncreased by 100.00 %
- Est rental Yield
- 6.12 %Increased by 41.34 %
- Crime Rate
- 7.00 %Unchanged by 0.00 %
Agent Activity
Fenn Wright created the listing.
Nearby Schools
| Name | Type | Ofsted | Distance |
|---|---|---|---|
| Parkside Academy | Academy Alternative Provision Converter | Requires improvement | 0.12 KM |
| St John'S Church Of England Voluntary Aided Primary School, Ipswich | Voluntary Aided School | Good | 0.62 KM |
| Chatterbox Children'S Centre | Children's Centre | 0.62 KM | |
| Quayside Children'S Centre | Children's Centre | 0.62 KM | |
| Britannia Primary School And Nursery | Academy Sponsor Led | 0.64 KM |
Images
Nearby Streets
| Name | Average Price | Average Sqft | Distance |
|---|---|---|---|
| The Drift | £ 300,000 | 0 | 0.00 KM |
| Halliwell Road | £ 375,000 | 0 | 0.00 KM |
| Kirby Close | £ 340,000 | 0 | 0.00 KM |
| Victory Road | £ 280,000 | 0 | 0.00 KM |
| Harrow Close | £ 280,000 | 0 | 0.00 KM |
Nearby Transport
| Name | NLC | TLC | Distance |
|---|---|---|---|
| Derby Road (Ipswich) | 7212 | DBR | 1.09 KM |
| Westerfield | 7226 | WFI | 3.46 KM |
| Ipswich | 7217 | IPS | 4.89 KM |
Nearby Listings
| Address | Price | Type | Score | Distance |
|---|---|---|---|---|
| Bloomfield Street, Ipswich, Suffolk, IP4 | £ 175,000 | BUY | 6 / 10 | 0.00 KM |
| Spring Road, Ipswich, IP4 | £ 295,000 | BUY | 7 / 10 | 0.04 KM |
| Bloomfield Street, Ipswich | £ 250,000 | BUY | 6 / 10 | 0.05 KM |
| Bloomfield Street, Ipswich | £ 280,000 | BUY | 5 / 10 | 0.05 KM |
| Bloomfield Street, Ipswich, Suffolk, IP4 | £ 264,995 | BUY | 7 / 10 | 0.05 KM |
Nearby Properties
| Address | Price | Distance |
|---|---|---|
| 36 Bloomfield Street | £ 150,000 | 0.06 KM |
| 6 Bloomfield Street | £ 96,500 | 0.06 KM |
| 26 Bloomfield Street | £ 190,000 | 0.06 KM |
| 35 Bloomfield Street | £ 209,500 | 0.06 KM |
| 28 Bloomfield Street | £ 135,000 | 0.06 KM |