Sturges Road, Deal House, PO21
By Whitlocks Estate Agents
£ 140,000
Reviews
3 out of 5 stars
Whitlocks Estate Agents says ..
An excellent opportunity for first-time buyers or buy-to-let investors.This property boasts its own private entrance and offers well-presented accommodation throughout.
Property Oracle says ..
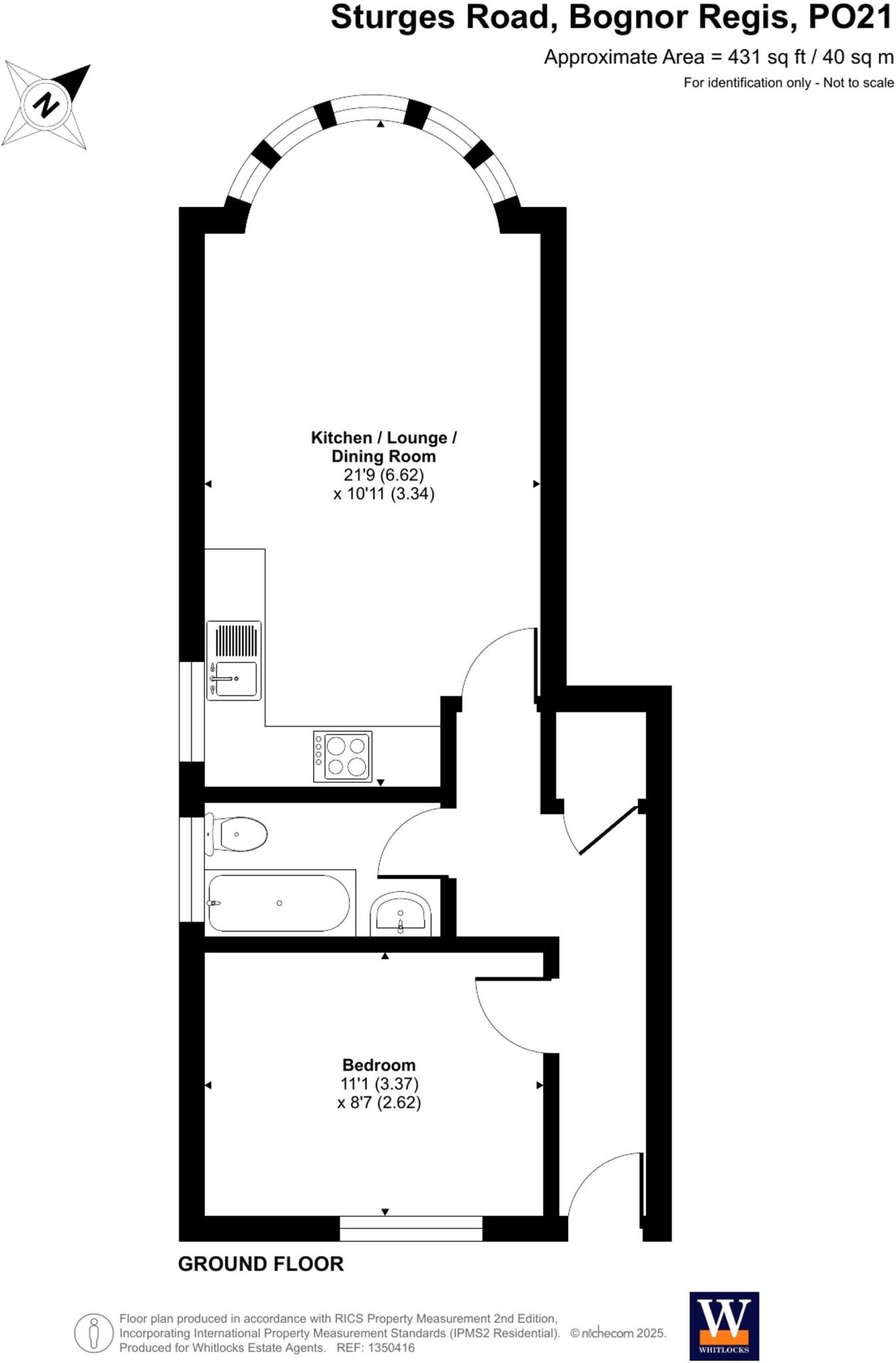
This is a one-bedroom apartment located on Sturges Road in Bognor Regis. The property benefits from its proximity to local amenities, including the train station and schools. The apartment itself appears to be in good condition, featuring a modern kitchen and bathroom, although some areas could use updating. A significant advantage is the inclusion of a garden, which is a desirable feature for apartment living. Considering the location, condition, and the inclusion of a garden, the asking price of £140,000 seems reasonable and could represent a good investment opportunity.
Therefore, we give this property 7 / 10. *Disclaimer: This is our option and does constitute a recommendation or financial advice. Do your own research. *
- Price
- 8
- Condition
- 7
- Location
- 7
- Land
- 6
- Bedrooms
- 1
- Bathrooms
- 1
- Sqft (est)
- 431.00
The heatmap indicates the level of crime in the area. The color of the heatmap indicates the crime severity and recency.
Metrics Year-on-Year
- Average area value
- 417,776.00 £Increased by 5.86 %
- Est sale value
- 231,878.00 £Increased by 29.95 %
- Average area rental value
- 1,253.00 £/moDecreased by 3.76 %
- Est letting value
- 431.00 £/moUnchanged by 0.00 %
- Est rental Yield
- 3.60 %Decreased by 9.09 %
- Crime Rate
- 25.00 %Unchanged by 0.00 %
Agent Activity
Whitlocks Estate Agents created the listing.
Nearby Schools
| Name | Type | Ofsted | Distance |
|---|---|---|---|
| Bognor Regis Nursery School | Local Authority Nursery School | Outstanding | 0.35 KM |
| Bognor Children And Family Centre | Children's Centre | 0.38 KM | |
| Edward Bryant School | Academy Converter | Good | 0.70 KM |
| St Mary'S Catholic Primary School | Voluntary Aided School | Good | 0.76 KM |
| South Bersted Cofe Primary School | Voluntary Controlled School | Good | 1.10 KM |
Images
Nearby Streets
| Name | Average Price | Average Sqft | Distance |
|---|---|---|---|
| Fletcher Way | £ 0 | 0 | 0.00 KM |
| Stanley Close | £ 90,000 | 0 | 0.00 KM |
| York Road | £ 0 | 0 | 0.00 KM |
| Gordon Avenue | £ 0 | 0 | 0.00 KM |
| Hawthorn Road | £ 265,000 | 0 | 0.00 KM |
Nearby Transport
| Name | NLC | TLC | Distance |
|---|---|---|---|
| Bognor Regis | 5253 | BOG | 0.26 KM |
| Barnham | 5252 | BAA | 6.53 KM |
Nearby Listings
| Address | Price | Type | Score | Distance |
|---|---|---|---|---|
| Sturges Road, Deal House, PO21 | £ 140,000 | BUY | 7 / 10 | 0.00 KM |
| Sturges Road, Bognor Regis | £ 385,000 | BUY | 6 / 10 | 0.02 KM |
| Sturges Road, Bognor Regis | £ 415,000 | BUY | 7 / 10 | 0.02 KM |
| Sturges Road, Bognor Regis | £ 440,000 | BUY | 8 / 10 | 0.03 KM |
| Ockley Road, Bognor Regis, West Sussex, PO21 | £ 200,000 | BUY | 5 / 10 | 0.04 KM |
Nearby Properties
| Address | Price | Distance |
|---|---|---|
| 4 Sturges Road | £ 305,000 | 0.04 KM |
| 18 Sturges Road | £ 410,000 | 0.04 KM |
| 20 Sturges Road | £ 500,000 | 0.04 KM |
| 1 Sturges Road | £ 149,950 | 0.04 KM |
| 9a Sturges Road | £ 155,000 | 0.04 KM |