Heath Park Avenue, Cardiff
HE

Heath Park Avenue, Cardiff

By Hern & Crabtree

£ 750,000

Reviews

4 out of 5 stars

Hern & Crabtree says ..

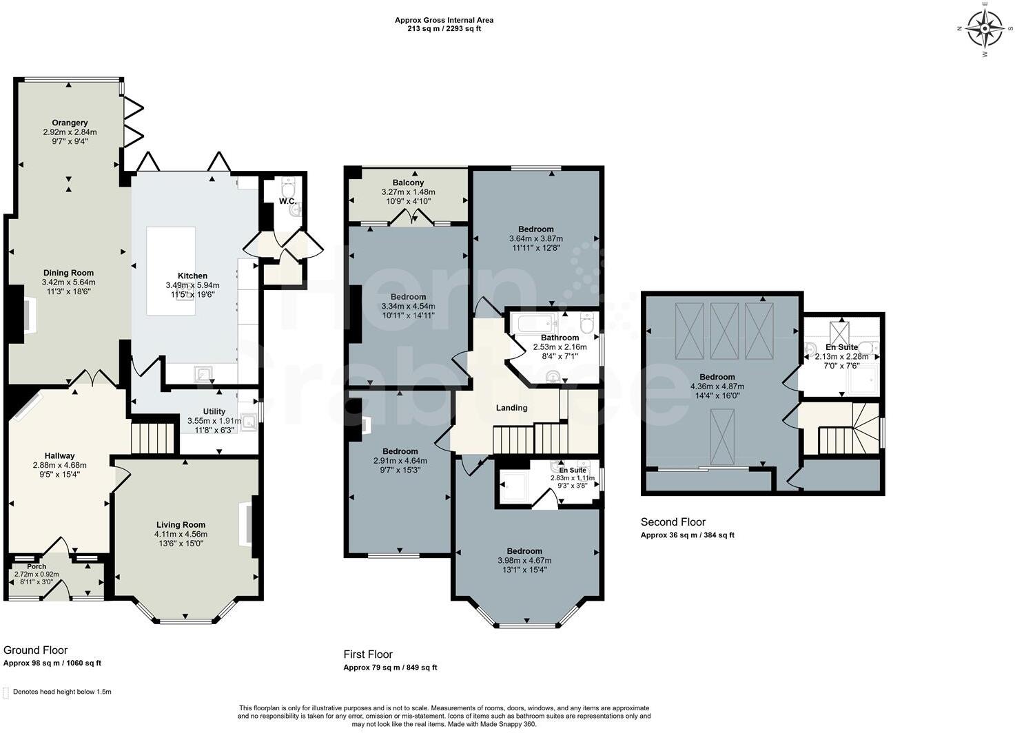
Situated on the highly sought-after Heath Park Avenue, this stunning semi-detached family home offers a perfect blend of space, character, and convenience. Just a short walk from Heath High and Low Level stations, commuting is effortless, while the University Hospital of Wales and the picturesque...

Property Oracle says ..

This property is located on Heath Park Avenue in Cardiff, a desirable area known for its proximity to Heath Park and good transport links. The property itself is a spacious family home that appears to be in excellent condition, having undergone recent renovations and extensions. The images show a modern, well-maintained interior with a newly fitted kitchen and updated bathrooms. The property also benefits from a large garden with a pizza oven and plenty of space for outdoor activities. Given the location, condition, and land size, the asking price of £750,000 appears to be in line with or slightly above the average price for the area, but comparable to similar properties in the immediate vicinity. However, the lack of square footage data makes a precise price per square foot comparison impossible.

Therefore, we give this property 8 / 10. *Disclaimer: This is our option and does constitute a recommendation or financial advice. Do your own research. *

Price
7
Condition
9
Location
9
Land
8
Bedrooms
5
Bathrooms
3
Lot (est)
2,293.00

The heatmap indicates the level of crime in the area. The color of the heatmap indicates the crime severity and recency.

Metrics Year-on-Year

Average area value
358,479.00 £
Decreased by 2.93 %
from 369,290.00 £
Average area rental value
1,595.00 £/mo
Increased by 2.84 %
from 1,551.00 £/mo
Est rental Yield
5.34 %
Increased by 5.95 %
from 5.04 %
Crime Rate
1.00 %
Unchanged by 0.00 %
from 1.00 %

Agent Activity

  • Hern & Crabtree marked this listing as sold.

  • Hern & Crabtree created the listing.

Nearby Schools

NameTypeOfstedDistance
Cardiff High SchoolWelsh Establishment0.98 KM
Rhydypenau Primary SchoolWelsh Establishment1.15 KM
Ton-Yr-Ywen Primary SchoolWelsh Establishment1.18 KM
Allensbank Primary SchoolWelsh Establishment1.35 KM
Lakeside Primary SchoolWelsh Establishment1.57 KM

Images

Heath-Park-Avenue-40.jpg Heath-Park-Avenue-14.jpg Heath-Park-Avenue-15.jpg Heath-Park-Avenue-06.jpg Heath-Park-Avenue-11.jpg Heath-Park-Avenue-09.jpg Heath-Park-Avenue-08.jpg Heath-Park-Avenue-07.jpg Heath-Park-Avenue-04.jpg Heath-Park-Avenue-37.jpg Heath-Park-Avenue-28.jpg Heath-Park-Avenue-29.jpg Heath-Park-Avenue-30.jpg Heath-Park-Avenue-23.jpg Heath-Park-Avenue-18.jpg Heath-Park-Avenue-16.jpg Heath-Park-Avenue-35.jpg Heath-Park-Avenue-21.jpg Heath-Park-Avenue-27.jpg Heath-Park-Avenue-38.jpg Heath-Park-Avenue-02.jpg Heath-Park-Avenue-01.jpg Heath-Park-Avenue-03.jpg Heath-Park-Avenue-13.jpg Heath-Park-Avenue-10.jpg Heath-Park-Avenue-05.jpg Heath-Park-Avenue-12.jpg Heath-Park-Avenue-17.jpg Heath-Park-Avenue-26.jpg Heath-Park-Avenue-22.jpg Heath-Park-Avenue-20.jpg Heath-Park-Avenue-19.jpg Heath-Park-Avenue-31.jpg Heath-Park-Avenue-25.jpg Heath-Park-Avenue-32.jpg Heath-Park-Avenue-33.jpg Heath-Park-Avenue-34.jpg Heath-Park-Avenue-36.jpg Heath-Park-Avenue-39.jpg Heath-Park-Avenue-41.jpg Heath-Park-Avenue-44.jpg Heath-Park-Avenue-24.jpg

Nearby Streets

NameAverage PriceAverage SqftDistance
King George V Drive £ 717,50000.00 KM
Mountbatten Close £ 433,33300.00 KM
Highfield Road £ 000.00 KM
Cunningham Close £ 810,00000.00 KM
Crystal Wood Road £ 685,00000.00 KM

Nearby Transport

NameNLCTLCDistance
Heath Low Level3908HLL0.21 KM
Heath High Level3845HHL0.30 KM
Ty Glas3817TGS1.77 KM
Llanishen3847LLS2.10 KM
Birchgrove3907BCG2.30 KM

Nearby Listings

AddressPriceTypeScoreDistance
Heath Park Avenue, Cardiff £ 750,000BUY8 / 100.00 KM
Heath Park Avenue, Cardiff £ 685,000BUY7 / 100.01 KM
King George V Drive North, Heath, Cardiff, CF14 £ 485,000BUY6 / 100.15 KM
Heath Park Drive, Cardiff(City), CF14 £ 364,950BUY6 / 100.15 KM
King George V Drive North, Heath, Cardiff £ 699,950BUY7 / 100.16 KM

Nearby Properties

AddressPriceDistance
32 Heath Park Drive £ 240,0000.15 KM
28 Heath Park Drive £ 75,0000.15 KM
40 Heath Park Drive £ 214,0000.15 KM
63 Heath Mead £ 490,0000.19 KM
95 Heath Park Avenue £ 507,5000.19 KM