Borough Road, Middlesbrough TS1 2ES
By Clarke Munro
£ 350,000
Reviews
2 out of 5 stars
Clarke Munro says ..
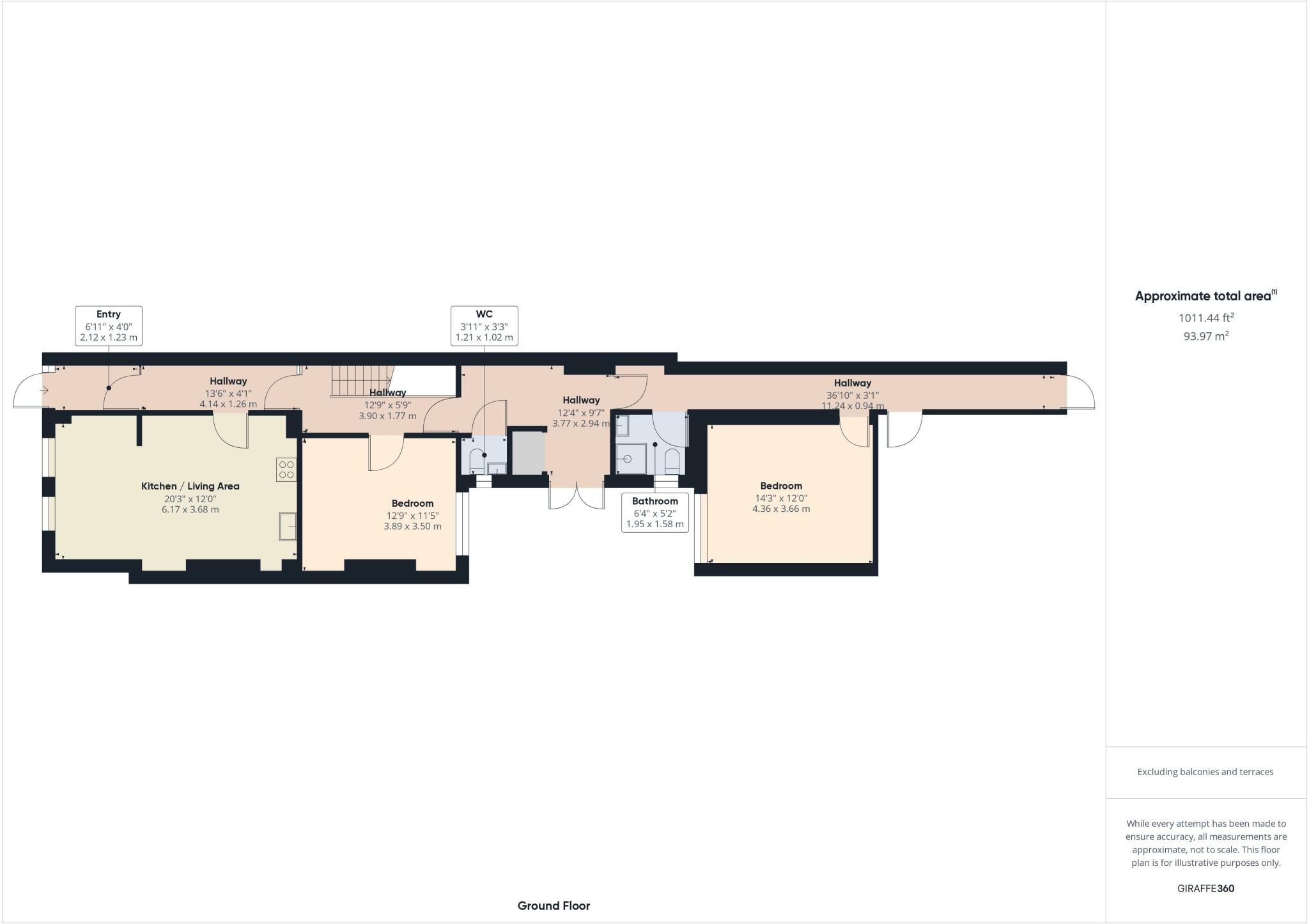
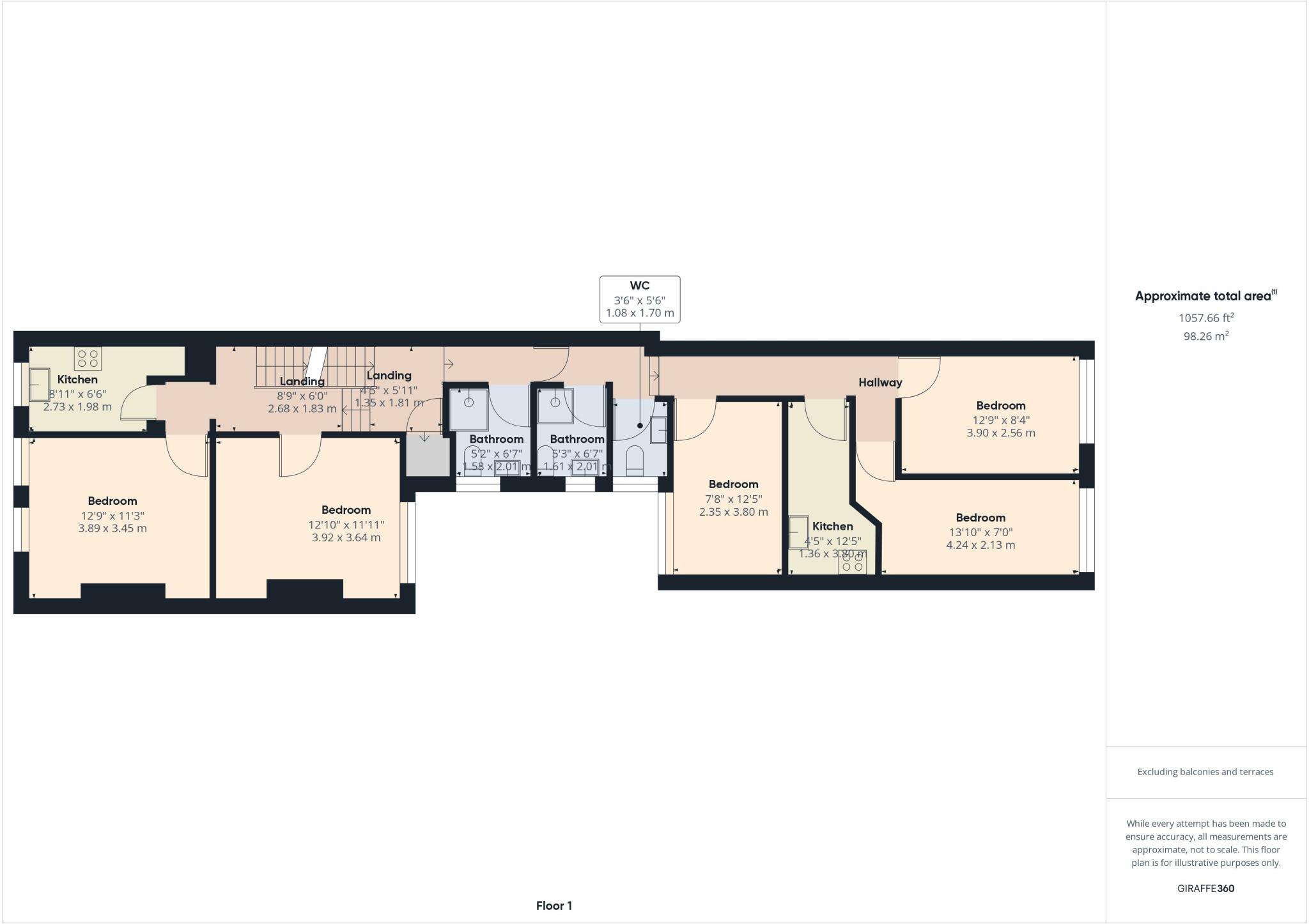
Clarke Munro are delighted to present this rare to the market student HMO investment property perfectly situated on Borough Road, located opposite the University Campus and within walking distance to the town centre. This building comprises of 10 spacious double bedrooms split across three stori...
Property Oracle says ..
This property on Borough Road, Middlesbrough, is a ten-bedroom, six-bathroom HMO (House of Multiple Occupancy) listed for £350,000. Its significant advantage is its location directly opposite Teesside University, making it very attractive to students. The internal photographs show functional rooms and bathrooms, mostly in decent condition but could benefit from some refurbishment for better visual appeal. The kitchen and communal areas appear adequate for the number of occupants it can accommodate. The property lacks a garden or any significant land. The price reflects its potential as a student HMO investment due to high rental demand in the area; however, a detailed survey of the structure and potential repairs would be necessary to fully assess its value.
Therefore, we give this property 5 / 10. *Disclaimer: This is our option and does constitute a recommendation or financial advice. Do your own research. *
- Price
- 7
- Condition
- 6
- Location
- 8
- Land
- 1
- Bedrooms
- 10
- Bathrooms
- 6
- Sqft (est)
- 2,478.93
The heatmap indicates the level of crime in the area. The color of the heatmap indicates the crime severity and recency.
Metrics Year-on-Year
- Average area value
- 487,124.00 £Increased by 94.35 %
- Est sale value
- 1,527,020.88 £Increased by 112.41 %
- Average area rental value
- 1,220.00 £/moIncreased by 6.46 %
- Est letting value
- 2,478.93 £/moUnchanged by 0.00 %
- Est rental Yield
- 3.01 %Decreased by 45.17 %
- Crime Rate
- 11.00 %Unchanged by 0.00 %
Agent Activity
Clarke Munro created the listing.
Nearby Schools
| Name | Type | Ofsted | Distance |
|---|---|---|---|
| Teesside University | Higher Education Institutions | Outstanding | 0.23 KM |
| Abingdon Children'S Centre | Children's Centre | 0.51 KM | |
| Abingdon Primary School | Foundation School | Good | 0.53 KM |
| Outwood Academy Riverside | Free Schools | 0.64 KM | |
| Middlesbrough College | Further Education | Good | 0.95 KM |
Images
Nearby Streets
| Name | Average Price | Average Sqft | Distance |
|---|---|---|---|
| Hazel Court | £ 0 | 0 | 0.00 KM |
| Bright Street | £ 223,333 | 0 | 0.00 KM |
| Albert Road | £ 0 | 0 | 0.00 KM |
| Davison Street | £ 0 | 0 | 0.00 KM |
| Oak Street | £ 0 | 0 | 0.00 KM |
Nearby Transport
| Name | NLC | TLC | Distance |
|---|---|---|---|
| Middlesbrough | 7929 | MBR | 0.74 KM |
| James Cook University Hospital | 9507 | JCH | 3.53 KM |
| Marton | 7947 | MTO | 4.94 KM |
| South Bank | 7953 | SBK | 6.32 KM |
| Billingham | 7910 | BIL | 6.35 KM |
Nearby Listings
| Address | Price | Type | Score | Distance |
|---|---|---|---|---|
| Borough Road, Middlesbrough TS1 2ES | £ 350,000 | BUY | 5 / 10 | 0.00 KM |
| Borough Road, Middlesbrough, TS1 | £ 450,000 | BUY | 5 / 10 | 0.00 KM |
| Montrose Street, Middlesbrough | £ 80,000 | BUY | 5 / 10 | 0.09 KM |
| Montrose Street, Middlesbrough | £ 79,950 | BUY | Unknown | 0.10 KM |
| Laurel Street, Middlesbrough, TS1 | £ 100,000 | BUY | 5 / 10 | 0.15 KM |
Nearby Properties
| Address | Price | Distance |
|---|---|---|
| 122 Borough Road | £ 160,000 | 0.03 KM |
| 138 Borough Road | £ 282,500 | 0.03 KM |
| 21 Boswell Street | £ 48,000 | 0.05 KM |
| 41 Boswell Street | £ 67,000 | 0.05 KM |
| 27 Boswell Street | £ 69,000 | 0.05 KM |