Scarcroft Road, South Bank. York, YO23 1NE
Hudson Moody logo

Scarcroft Road, South Bank. York, YO23 1NE

By Hudson Moody

£ 800,000

Reviews

4 out of 5 stars

Hudson Moody says ..

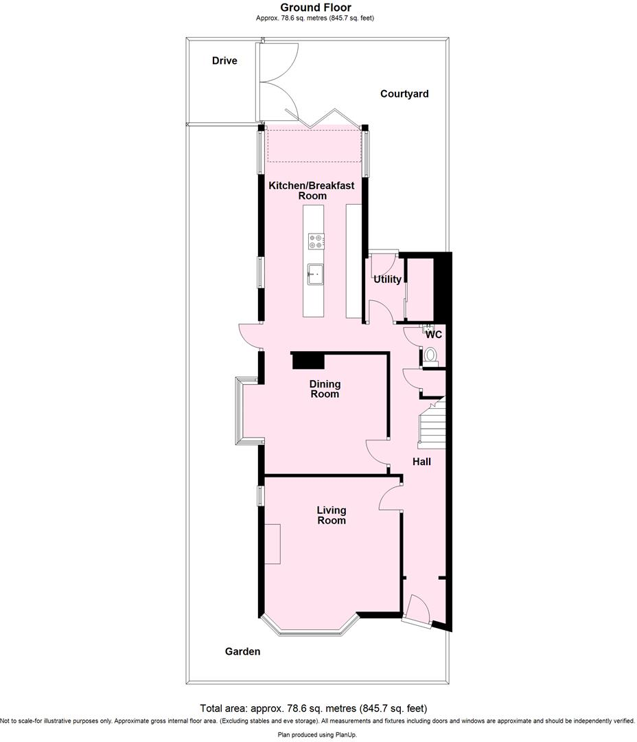
A Victorian terrace comprising spacious accommodation boasting open plan reception area, extended kitchen / dining with bi-fold doors out to the landscaped rear courtyard, two en-suite bedrooms and third double bedroom with adjoining shower room.

Property Oracle says ..

This property is a 3 bedroom, 3 bathroom end of terrace house located on Scarcroft Road in York. The property is in excellent condition and has been recently renovated to a high standard. The property benefits from a good size garden to the rear. The location is excellent, with good local schools and transport links nearby. The average price per sqft in the area is £426.00, and this property is listed at £800,000 with 1,516.20 sqft. This makes the price per sqft £528.00 which is slightly higher than the average. However, given the property’s condition, location, and size of the garden, the asking price is reasonable.

Therefore, we give this property 8 / 10. *Disclaimer: This is our option and does constitute a recommendation or financial advice. Do your own research. *

Price
7
Condition
10
Location
9
Land
8
Bedrooms
3
Bathrooms
3
Sqft (est)
1,516.20
Lot (est)
1,967.64

The heatmap indicates the level of crime in the area. The color of the heatmap indicates the crime severity and recency.

Metrics Year-on-Year

Average area value
542,496.00 £
Increased by 34.28 %
from 404,000.00 £
Est sale value
633,771.60 £
Increased by 33.55 %
from 474,570.60 £
Average area rental value
1,435.00 £/mo
Increased by 6.30 %
from 1,350.00 £/mo
Est letting value
1,516.20 £/mo
Unchanged by 0.00 %
from 1,516.20 £/mo
Est rental Yield
3.17 %
Decreased by 20.95 %
from 4.01 %
Crime Rate
7.00 %
Unchanged by 0.00 %
from 7.00 %

Agent Activity

  • Hudson Moody created the listing.

Nearby Schools

NameTypeOfstedDistance
Scarcroft Primary SchoolAcademy Converter0.21 KM
Millthorpe SchoolAcademy ConverterGood0.29 KM
Knavesmire Children'S CentreChildren's Centre0.77 KM
Knavesmire Primary SchoolAcademy Converter0.77 KM
The Mount School (York)Other Independent School0.96 KM

Images

EXTERNAL EXTERNAL KITCHEN DINING AREA LIVING AREA DINING AREA BEDROOM ONE BEDROOM TWO COURTYARD HALLWAY KITCHEN KITCHEN DINING AREA DINING AREA LIVING AREA DINING AREA EN-SUITE TWO BEDROOM ONE EN-SUITE ONE BEDROOM THREE EN-SUITE TWO COURTYARD COURTYARD EN-SUITE ONE CIELING WISTERIA KNAVESMIRE

Nearby Streets

NameAverage PriceAverage SqftDistance
Nunnery Lane £ 000.00 KM
Drake Street £ 180,00000.00 KM
Trinity Court £ 282,50000.00 KM
Riverside Lodge £ 000.00 KM
Barker Lane £ 2,950,00000.00 KM

Nearby Transport

NameNLCTLCDistance
York8263YRK0.89 KM
Poppleton8254POP7.13 KM

Nearby Listings

AddressPriceTypeScoreDistance
Scarcroft Road, South Bank. York, YO23 1NE £ 800,000BUY8 / 100.00 KM
Scarcroft Road, South Bank. York, YO23 1NE £ 780,000BUYUnknown0.00 KM
Scarcroft Road, York £ 450,000BUY4 / 100.05 KM
Scarcroft Road, York £ 925,000BUYUnknown0.06 KM
Upper Price Street, York, YO23 £ 575,000BUY7 / 100.06 KM

Nearby Properties

AddressPriceDistance
50 Scarcroft Road £ 497,5000.03 KM
28 Scarcroft Road £ 280,0000.03 KM
26 Scarcroft Road £ 450,0000.03 KM
36 Scarcroft Road £ 720,0000.03 KM
40 Scarcroft Road £ 440,0000.03 KM